MCarré Conseil est une agence spécialiste de l'immobilier d’entreprise du sud de l’Île-de-France (en Essonne et dans le sud de la Seine-et-Marne et du Val-De-Marne). Elle vous accompagne à chaque é ...
En savoir plus

452 m²
HT HC
Location activité/entrepôt - 452 m²
Palaiseau (91120)
Dernière mise à jour : Il y a 2 jours
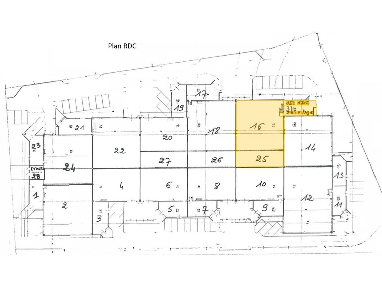
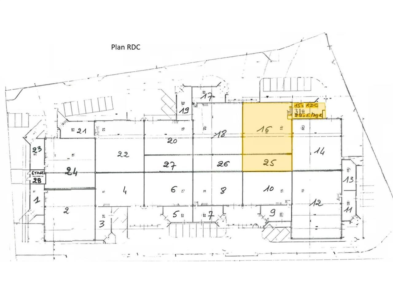
Situé dans le parc d'activité Les Glaises, nous vous proposons à la location une surface de 451 m² à usage d'activité avec bureaux d'accompagnement.
Impôt Foncier : 15 €/HT/m²/an
Régime Fiscal : TVA
Dépôt de garantie : 3 mois de loyer HT/HC
Honoraires : 15% HT du loyer annuel HT HC
Information sur le Bail :
Loyer annuel : 51 946 euros HT/HC
Prestations :
Accessibilité:
Autoroute Autoroute A6
Autoroute Autoroute A10
Route Nationales 20 et 188
Tgv TGV Gare de Massy
RER Palaiseau (B)
Bus Pierre Curie (Ligne 199), Ambroise Croizat (Ligne DM12, Ligne M153), Cosmonautes - Stalingrad (Ligne 14)
Les informations sur les risques auxquels ce bien est exposé sont disponibles sur le site Géorisques : www.georisques.gouv.fr
| Étage | Type | Surfaces | Dispo | Loyer | Charges | Type de bailRév. annuelle |
|---|---|---|---|---|---|---|
| Rdc | Activités | 435,7 | Indice ILAT | |||
| Rdc | Locaux sociaux | 16 | Indice ILAT | |||
| Total Cellule LOTS 16-25-31 | Activités | 451,7 | 31 mars 2026 | 115 m²/an HT HC | 11 HT/m²/an | 3/6/9 ansIndice ILAT |
Impôt Foncier : 15 €/HT/m²/an
Régime Fiscal : TVA
Dépôt de garantie : 3 mois de loyer HT/HC
Honoraires : 15% HT du loyer annuel HT HC
Information sur le Bail :
Loyer annuel : 51 946 euros HT/HC
Prestations :
- Restaurant d'entreprises à 50 m
- Fibre optique
- Surface RDC : 451 m²
- Haut. libre max. ss poutre : 6 m
- Résistance sol : 3,5 T/m²
- Accès bâtiment : Gros Porteurs
- Equipements entrepôts : RIA
- Chauffage : Aérothermes électriques
- Ossature : Béton
Accessibilité:
Autoroute Autoroute A6
Autoroute Autoroute A10
Route Nationales 20 et 188
Tgv TGV Gare de Massy
RER Palaiseau (B)
Bus Pierre Curie (Ligne 199), Ambroise Croizat (Ligne DM12, Ligne M153), Cosmonautes - Stalingrad (Ligne 14)
Les informations sur les risques auxquels ce bien est exposé sont disponibles sur le site Géorisques : www.georisques.gouv.fr
Voir plus
Afficher les consommations énergétiques
Localisation et transport aux alentours
Favoris
Exporter
Appeler
Contacter
Signaler cette annonce










