MALSH Realty accompagne les entreprises dans leurs projets immobiliers, qu’il s’agisse de locaux d’activités, de bureaux, de commerces, d’entrepôts ou de terrains. L’agence intervient aussi bien au ...
En savoir plus

207 m²
HT HC
Location activité/entrepôt - 207 m²
Lyon 7 (69007)
Dernière mise à jour : Il y a 2 jours
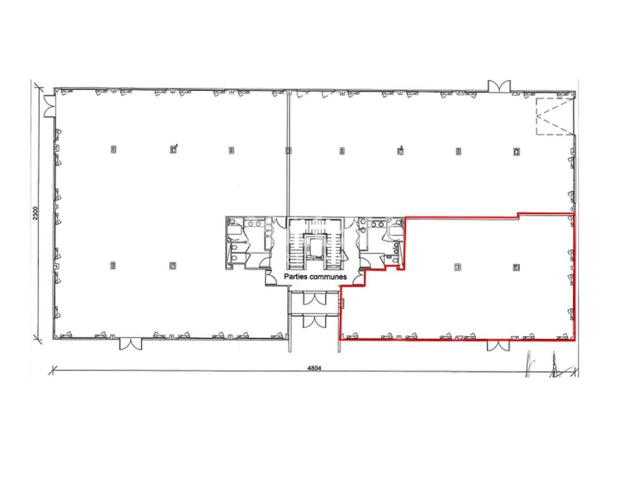
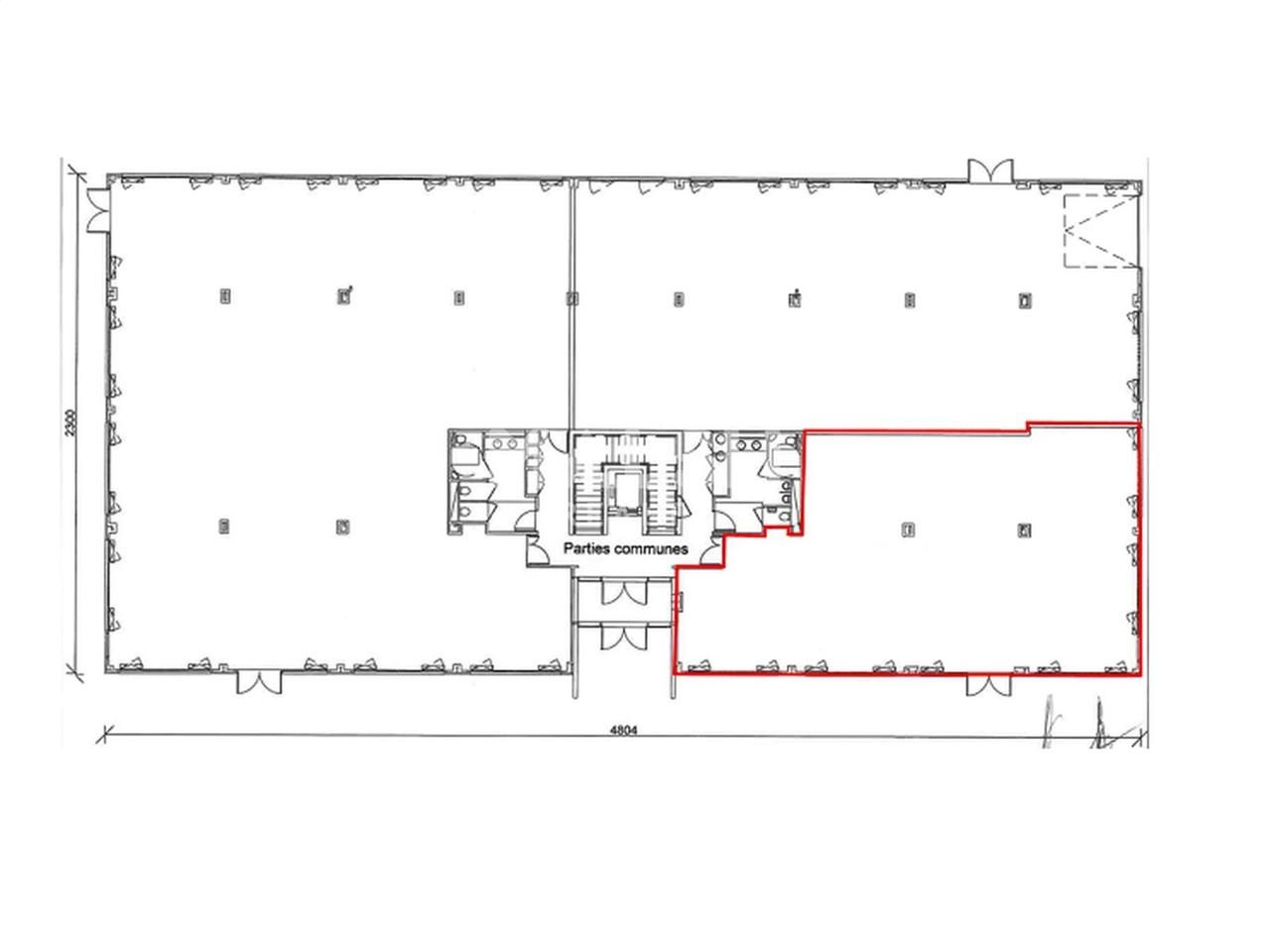
Local 207 m² - Bureaux et Activités (Petit stockage) à LYON 7ème - Gerland - A LOUER
Au coeur de Gerland, dans le 7ème arrondissement de Lyon, au sein d'un parc tertiaire sécurisé, nous vous proposons à la location, un local d'une surface totale d'environ 206,70 m² à usage de bureaux et de petite d'activité. Ce lot dispose de 3 places de parking.
Idéal pour du petit stockage.
Location Local 207 m² - Bureaux et Activités (Petit stockage) - Lyon 7ème (69007) - Gerland
Régime Fiscal : T.V.A. (20%)
Dépôt de garantie : 3 mois de loyer HT/HC
Honoraires : 15 % HT du loyer annuel HT/HC à la charge du preneur, payables à la signature du bail
Prestations :
Accessibilité:
Route A proximité immédiate du Boulevard Périphérique Laurent Bonnevay et de l'autoroute A7
Bus Bus TCL lignes 34, 60 et 64
Tram Tramway ligne T6 arrêt "Challemel Lacour"
Métro Métro ligne B station "Stade de Gerland"
Les informations sur les risques auxquels ce bien est exposé sont disponibles sur le site Géorisques : www.georisques.gouv.fr
Au coeur de Gerland, dans le 7ème arrondissement de Lyon, au sein d'un parc tertiaire sécurisé, nous vous proposons à la location, un local d'une surface totale d'environ 206,70 m² à usage de bureaux et de petite d'activité. Ce lot dispose de 3 places de parking.
Idéal pour du petit stockage.
Location Local 207 m² - Bureaux et Activités (Petit stockage) - Lyon 7ème (69007) - Gerland
| Étage | Type | Surfaces | Dispo | Loyer | Charges | Type de bailRév. annuelle |
|---|---|---|---|---|---|---|
| Activités | 206,7 | Immédiate | 167 HT/HC/m²/an | 12557 HT/an | commercial 3-6-9 ansILAT Indice des Loyers des Activités Tertiaires | |
| Parkings | Immédiate | 600 HT/HC/place/an | 220 HT/Unité/an | commercial 3-6-9 ansILAT Indice des Loyers des Activités Tertiaires |
Régime Fiscal : T.V.A. (20%)
Dépôt de garantie : 3 mois de loyer HT/HC
Honoraires : 15 % HT du loyer annuel HT/HC à la charge du preneur, payables à la signature du bail
Prestations :
- Portail électrique
- Digicode / Interphone
- Accès PMR
- Bureaux + Activités (petit stockage)
- Sanitaires en parties communes
- Climatisation réversible
- Stationnements : 3 places de parking privatives
Accessibilité:
Route A proximité immédiate du Boulevard Périphérique Laurent Bonnevay et de l'autoroute A7
Bus Bus TCL lignes 34, 60 et 64
Tram Tramway ligne T6 arrêt "Challemel Lacour"
Métro Métro ligne B station "Stade de Gerland"
Les informations sur les risques auxquels ce bien est exposé sont disponibles sur le site Géorisques : www.georisques.gouv.fr
Voir plus
Afficher les consommations énergétiques
Localisation et transport aux alentours
Favoris
Exporter
Appeler
Contacter
Signaler cette annonce










