Nous sommes Immprove, une grande équipe de plus de 200 experts en immobilier d’entreprise, implantés localement avec plus de 20 agences sur tout le territoire.Depuis 2009, notre proximité, notre ét ...
En savoir plus

965 m²
HT HC
Location activité/entrepôt - 965 m²
L'Haÿ-les-Roses (94240)
Dernière mise à jour : Il y a 3 jours
IMMPROVE, spécialiste de l'immobilier d'entreprises, vous propose une opportunité exceptionnelle à L'Hay les Roses : un entrepôt et locaux d'activités de 965 m² non divisibles, situés dans un parc d'activité et d'affaires sécurisé, clôturé et gardienné. Profitez d'une belle hauteur sous plafond de 7 mètres, une porte sectionnelle de plein pied ainsi que deux quais, un accès gros porteur et la possibilité de rackers sur trois niveaux. De plus, cette localisation stratégique vous place à moins de 10 minutes à pied du métro 14 "l'Hay les Roses". Ne manquez pas cette offre unique, contactez IMMPROVE dès maintenant pour organiser une visite!
Impôt Foncier : 8,53 €//m²/an/HT
Régime Fiscal : T.V.A. (20%)
Dépôt de garantie : 3 mois de loyer HT HC
Honoraires : 15% HT du loyer annuel HT HC à la charge du preneur
Taxe Bureau : 1,82 €/m²/an
Information sur le Bail :
Frais d'état des lieux par huissier : ECD
Prestations :
Accessibilité:
Bus MAIRIE DE CHEVILLY-LARUE (131, 192, 216, COLOMBE, V2)
Métro Ligne 7
RER Bourg La Reine (B)
Tram Moulin Vert (T7)
Train TGV Massy Palaiseau
Autoroute A6
Autoroute A10
Autoroute A86
Autoroute A106
Aéroport Orly
Les informations sur les risques auxquels ce bien est exposé sont disponibles sur le site Géorisques : www.georisques.gouv.fr
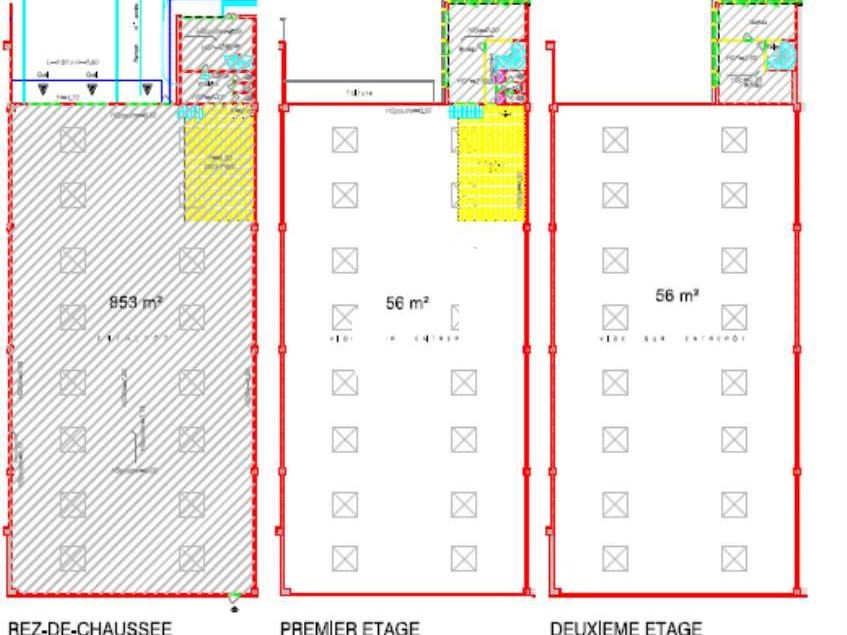
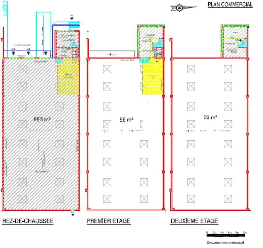
| Étage | Type | Surfaces | Dispo | Loyer | Charges | Type de bailRév. annuelle |
|---|---|---|---|---|---|---|
| 2 | Bureaux | 56 | Septembre 2025 | 160 m²/an HT HC | 36,1 m²/an HT | selon l'indice des loyers des activités tertiaires (ILAT) |
| 1 | Bureaux | 56 | Septembre 2025 | selon l'indice des loyers des activités tertiaires (ILAT) | ||
| RDC | Activités | 853 | Septembre 2025 | selon l'indice des loyers des activités tertiaires (ILAT) | ||
| Parkings | selon l'indice des loyers des activités tertiaires (ILAT) | |||||
| Total Cellule LOT K1 | Activités | 965 | Septembre 2025 | 160 m²/an HT HC | 36,1 m²/an HT | Bail Commercial 3-6-9 ansselon l'indice des loyers des activités tertiaires (ILAT) |
Impôt Foncier : 8,53 €//m²/an/HT
Régime Fiscal : T.V.A. (20%)
Dépôt de garantie : 3 mois de loyer HT HC
Honoraires : 15% HT du loyer annuel HT HC à la charge du preneur
Taxe Bureau : 1,82 €/m²/an
Information sur le Bail :
Frais d'état des lieux par huissier : ECD
Prestations :
- Façade en bardage metallique
- Accès véhicules légers
- Accès poids lourds
- Accès PMR
- Triple accès
- Aire de manoeuvre
- Aire de chargement
- Portail d'accès
- Contrôle d'accès
- Gardien
- Interphone
- Site clos
- Chauffage bâtiment au gaz
- Aire de stationnement pour visiteur
- Accueil
- Espace ouvert
- Bureaux cloisonnés
- Salle de réunion
- Locaux lumineux
- Décloisonnement possible
- Locaux rationnels et modulables
- Archives
- Câblage informatique et téléphonique
- Prises RJ45
- Chauffage par aérotherme gaz
- Rampe de plain-pied
- Quai : 2 QUAI
- Porte sectionnelle de plain-pied :
- Dimensions porte : 2.80 (H) x2.82 (L) m
- Surface RDC : 853 m²
Accessibilité:
Bus MAIRIE DE CHEVILLY-LARUE (131, 192, 216, COLOMBE, V2)
Métro Ligne 7
RER Bourg La Reine (B)
Tram Moulin Vert (T7)
Train TGV Massy Palaiseau
Autoroute A6
Autoroute A10
Autoroute A86
Autoroute A106
Aéroport Orly
Les informations sur les risques auxquels ce bien est exposé sont disponibles sur le site Géorisques : www.georisques.gouv.fr
Voir plus
Afficher les consommations énergétiques
Favoris
Exporter
Appeler
Contacter
Signaler cette annonce





