L’agence CBRE Lille conseille et accompagne les chefs d’entreprise dans leurs projets immobiliers quels que soient leur taille et leur secteur d’activité. Spécialistes de la transaction de bureaux, ...
En savoir plus

545 m²
HT HC
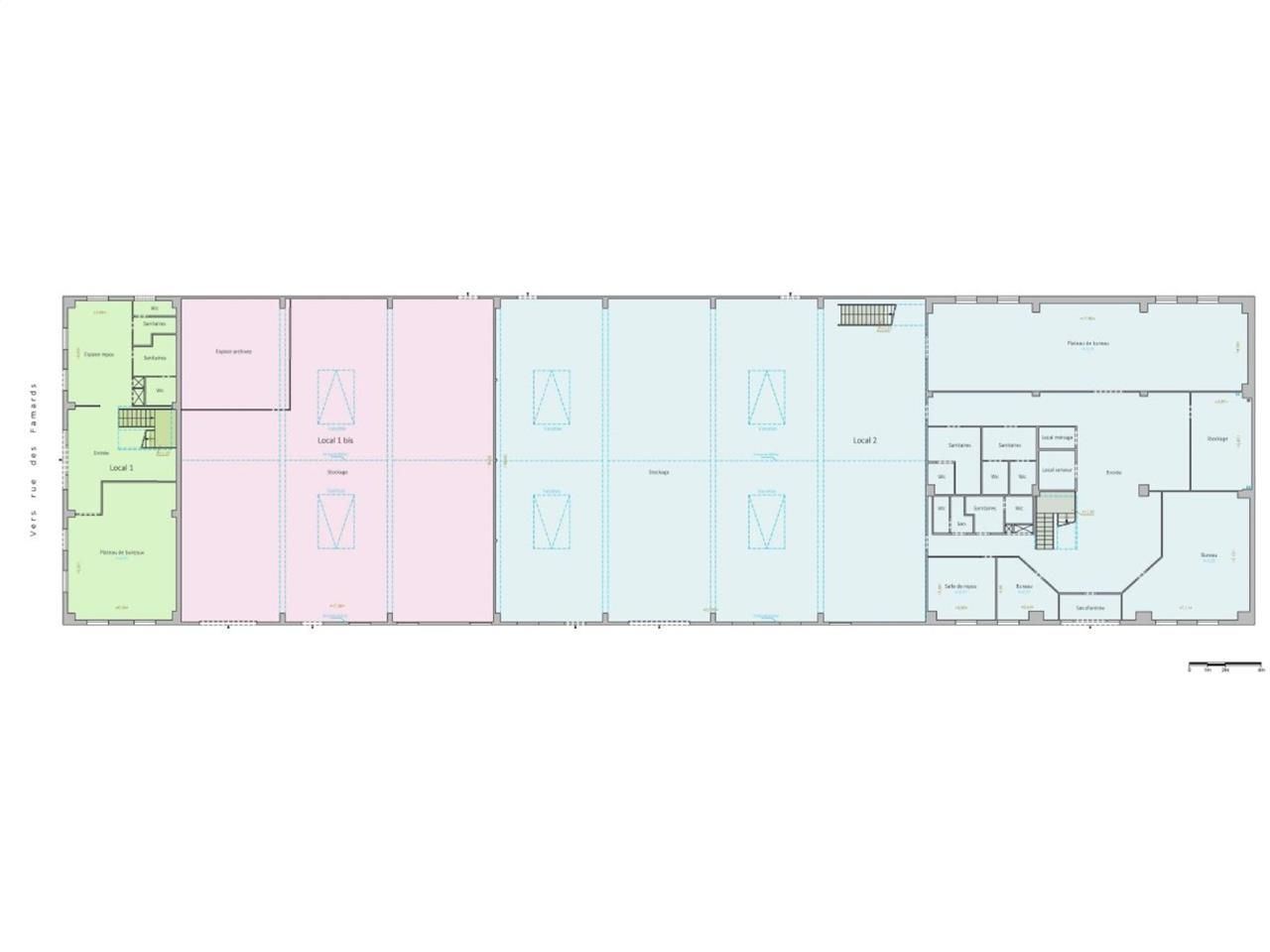
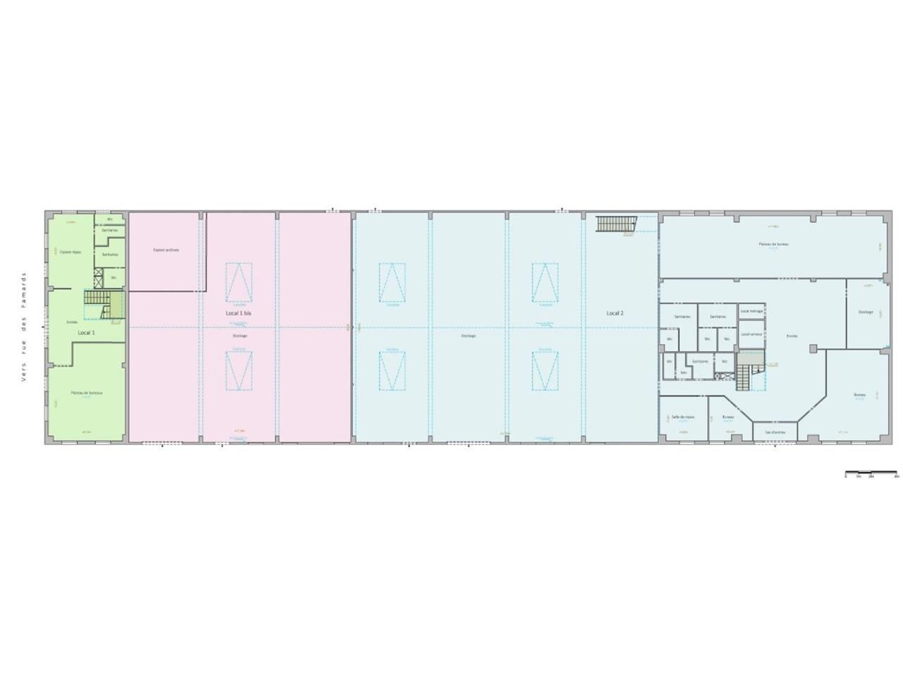
Location activité/entrepôt - 545 m²
Fretin (59273)
Dernière mise à jour : Hier
CBRE vous propose, à la location, une surface d'activités mixte au coeur du CRT 2.
Bureaux aménagés et places de parking disponibles avec la surface, à proximité des axes autoroutiers.
Si ce local d'activité à louer dans le CRT 2 vous intéresse ou si vous souhaitez obtenir plus d'informations, n'hésitez pas à me contacter aujourd'hui pour organiser une visite et bénéficier de toutes les informations nécessaires pour votre projet immobilier.
Impôt Foncier : 5198 €/HT/an
Régime Fiscal : T.V.A.
Dépôt de garantie : 3 mois de loyer HT/HC
Paiement Loyer : trimestriel
Honoraires : 15% HT du loyer annuel HT/HC à la charge du preneur
Prestations :
Accessibilité:
Autoroute A1/ A22/A23/A227
Bus Lignes Z2, Z8 arrêt : Petit Quinquin
Aeroport Lille Lesquin à 5 min
Les informations sur les risques auxquels ce bien est exposé sont disponibles sur le site Géorisques : www.georisques.gouv.fr
Bureaux aménagés et places de parking disponibles avec la surface, à proximité des axes autoroutiers.
Si ce local d'activité à louer dans le CRT 2 vous intéresse ou si vous souhaitez obtenir plus d'informations, n'hésitez pas à me contacter aujourd'hui pour organiser une visite et bénéficier de toutes les informations nécessaires pour votre projet immobilier.
| Étage | Type | Surfaces | Dispo | Loyer | Charges | Type de bailRév. annuelle |
|---|---|---|---|---|---|---|
| Activités | 332 | Immédiate | 8468 HT/an | 3-6-9 ansIndice ILAT | ||
| Bureaux | 213 | Immédiate | 8468 HT/an | 3-6-9 ansIndice ILAT |
Impôt Foncier : 5198 €/HT/an
Régime Fiscal : T.V.A.
Dépôt de garantie : 3 mois de loyer HT/HC
Paiement Loyer : trimestriel
Honoraires : 15% HT du loyer annuel HT/HC à la charge du preneur
Prestations :
- Immeuble indépendant
- Surface terrain : 0
- Accès bâtiment :
aire de manoeuvre
moyens porteurs
gros porteurs - Nbr de portes plain pied : 1
- Equipements entrepôts : . Bureaux cloisonnés
. Eclairage zénithal
. Sol béton
. 8 places de stationnement - Couverture : Bac acier
Accessibilité:
Autoroute A1/ A22/A23/A227
Bus Lignes Z2, Z8 arrêt : Petit Quinquin
Aeroport Lille Lesquin à 5 min
Les informations sur les risques auxquels ce bien est exposé sont disponibles sur le site Géorisques : www.georisques.gouv.fr
Voir plus
Afficher les consommations énergétiques
Favoris
Exporter
Appeler
Contacter
Signaler cette annonce










