A l’appui d’un réseau leader à l’international, I&L Solutions est une équipe de plus de 70 professionnels spécialisés en immobilier Logistique et Industriel au service des investisseurs, des propri ...
En savoir plus

370 m²
HT HC
Location activité/entrepôt - 370 m²
Courbevoie (92400)
Dernière mise à jour : Il y a 2 jours
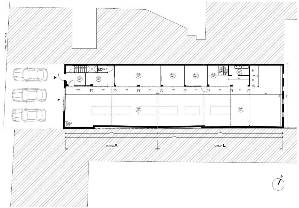
CBRE vous propose à louer, un local d'activités rénové situé sur la commune de Courbevoie dans le département des Hauts-de-Seine (92). À proximité des autoroutes A14, A86 et sur la ligne J du transilien d'Ile-de-France. Ce local dispose d'une porte sectionnelle, d'une grande hauteur et de places de parking. Belle surface de 370 m² non divisibles. Location entrepôt idéal pour le développement de vos activités professionnelles. Bail commercial. Disponible immédiatement.
Si cet entrepôt/local d'activités à louer dans le 92 vous intéresse ou si vous souhaitez obtenir plus de renseignements, n'hésitez pas à me contacter aujourd'hui pour organiser une visite et bénéficier de toutes les informations nécessaires pour votreprojet immobilier.
En tant qu'expert en immobilier professionnel/industriel, je suis à votre disposition pour vous aider à trouver le bien adapté à vos activités professionnelles et à votre coeur de métier.
Impôt Foncier : 6 €/an HT
Régime Fiscal : T.V.A.
Dépôt de garantie : 3 mois de loyer HT/HC
Honoraires : 15% HT du loyer annuel HT/HC à la charge du preneur
Prestations :
Accessibilité:
Transilien Bois Colombes (J), Bécon les Bruyères (L)
Metro Bécon-les-Bruyères (L15 Horizon 2030)
Autoroute A14, A86
Route N13
Les informations sur les risques auxquels ce bien est exposé sont disponibles sur le site Géorisques : www.georisques.gouv.fr
Si cet entrepôt/local d'activités à louer dans le 92 vous intéresse ou si vous souhaitez obtenir plus de renseignements, n'hésitez pas à me contacter aujourd'hui pour organiser une visite et bénéficier de toutes les informations nécessaires pour votreprojet immobilier.
En tant qu'expert en immobilier professionnel/industriel, je suis à votre disposition pour vous aider à trouver le bien adapté à vos activités professionnelles et à votre coeur de métier.
| Étage | Type | Surfaces | Dispo | Loyer | Charges | Type de bailRév. annuelle |
|---|---|---|---|---|---|---|
| RDC | Activités | 270 | Immédiate | 200 m²/an HT HC | Indice ILAT | |
| 1 | Bureaux | 100 | Immédiate | 200 m²/an HT HC | Indice ILAT | |
| Total Cellule 1 | Activités | 370 | Immédiate | 200 m²/an HT HC | 3-6-9 ansIndice ILAT |
Impôt Foncier : 6 €/an HT
Régime Fiscal : T.V.A.
Dépôt de garantie : 3 mois de loyer HT/HC
Honoraires : 15% HT du loyer annuel HT/HC à la charge du preneur
Prestations :
- WC
- Douche
- Cuisine
- Câblage informatique
- Baie de brassage
- Carrelage ultra résistant dans actis
- Moquette dans bureaux
- Bureaux en très bon état d'usage
- Bonne charge au sol
- Cour privative 50 m² pour déchargement ou parking
- Parking extérieur
- Immeuble indépendant
- Surface RDC : 270 m²
- Surface terrain : 0
- Haut. libre max. ss poutre : 5 m
- Résistance sol : 3 T/m²
- Accès bâtiment : . Accès piéton
Accessibilité:
Transilien Bois Colombes (J), Bécon les Bruyères (L)
Metro Bécon-les-Bruyères (L15 Horizon 2030)
Autoroute A14, A86
Route N13
Les informations sur les risques auxquels ce bien est exposé sont disponibles sur le site Géorisques : www.georisques.gouv.fr
Voir plus
Afficher les consommations énergétiques
Favoris
Exporter
Appeler
Contacter
Signaler cette annonce



