Nous sommes Immprove, une grande équipe de plus de 200 experts en immobilier d’entreprise, implantés localement avec plus de 20 agences sur tout le territoire.Depuis 2009, notre proximité, notre ét ...
En savoir plus



615 m²
HT HC
Location activité/entrepôt - 615 m²
Carquefou (44470)
Dernière mise à jour : Il y a 3 jours
LOCAL PROCHE BEAUJOIRE, PORTE CARQUEFOU
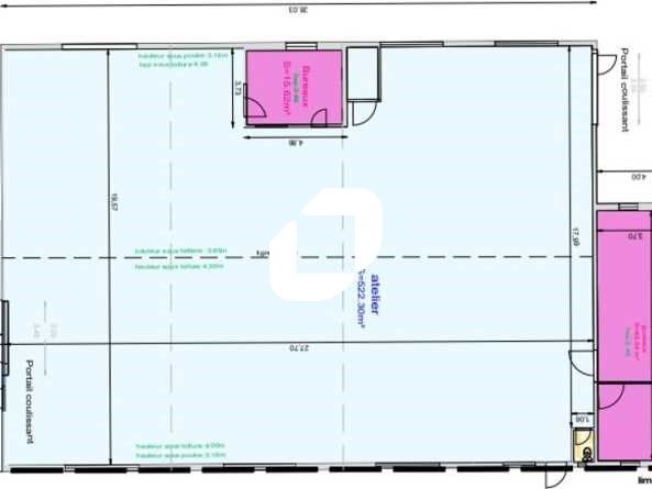
Immprove vous propose un local d'activité avec bureaux en bon état avec travaux à prévoir, proche route de Paris et proche de toutes les commodités.
Accès véhicules légers et poids lourds, équipé de la fibre optique.
Avec une hauteur mini sous bac de 4 mètres et une hauteur maxi sous bac de 4,20 mètres.
Equipé d'une porte coulissante en façade et de 2 portes coulissantes arrières.
Impôt Foncier : 6,21 €/m²/an HT HC
Régime Fiscal : T.V.A. (20%)
Dépôt de garantie : 3 mois de loyer HT HC
Honoraires : 25 % HT du loyer annuel HT HC à la charge du preneur
Prestations :
Les informations sur les risques auxquels ce bien est exposé sont disponibles sur le site Géorisques : www.georisques.gouv.fr
Immprove vous propose un local d'activité avec bureaux en bon état avec travaux à prévoir, proche route de Paris et proche de toutes les commodités.
Accès véhicules légers et poids lourds, équipé de la fibre optique.
Avec une hauteur mini sous bac de 4 mètres et une hauteur maxi sous bac de 4,20 mètres.
Equipé d'une porte coulissante en façade et de 2 portes coulissantes arrières.
| Étage | Type | Surfaces | Dispo | Loyer | Charges | Type de bailRév. annuelle |
|---|---|---|---|---|---|---|
| RDC | Activités | 555 | Indice ILAT | |||
| RDC | Bureaux | 60 | Indice ILAT | |||
| Total Cellule | Activités | 615 | Immédiate | 76,42 m²/an HT HC | Bail Commercial 3-6-9 ansIndice ILAT |
Impôt Foncier : 6,21 €/m²/an HT HC
Régime Fiscal : T.V.A. (20%)
Dépôt de garantie : 3 mois de loyer HT HC
Honoraires : 25 % HT du loyer annuel HT HC à la charge du preneur
Prestations :
- Bon état
- Sanitaires privatifs
- Hauteur mini sous bac : 4 m - Hauteur maxi sous bac : 4,20 m
- Porte coulissante en façade
- 2 x Portes coulissantes arrière
- Eclairage LED
- Compteur Linky 36 kva Triphasé
- 1 WC
- Stationnements
- Espace pour stockage extérieur
- Surface RDC : 615 m²
- Surface terrain : 0
Les informations sur les risques auxquels ce bien est exposé sont disponibles sur le site Géorisques : www.georisques.gouv.fr
Voir plus
Afficher les consommations énergétiques
Localisation et transport aux alentours
Favoris
Exporter
Appeler
Contacter
Signaler cette annonce










