Evolis, votre partenaire en immobilier d’entreprise! Que vous soyez une entreprise, utilisateur de locaux professionnels, investisseur, ou propriétaire, Evolis met à votre service son expertise ...
En savoir plus

400 m²
HT HC
Location activité/entrepôt - 400 m²
Bédarrides (84370)
Dernière mise à jour : Il y a 2 jours
400 m² A LOUER
EVOLIS propose à la location des locaux d'activité situés à Bédarrides, offrant un cadre idéal pour le développement de votre entreprise. Ces espaces polyvalents, conçus pour répondre aux exigences professionnelles, bénéficient d'une localisation stratégique et d'infrastructures modernes, assurant ainsi un environnement propice à la croissance de votre activité.
Impôt Foncier : 4,65 €/m²/an
Régime Fiscal : T.V.A.
Dépôt de garantie : 3 mois de loyer HT HC
Honoraires : A la charge du preneur
Information sur le Bail :
Honoraires Preneur 15 % HT du loyer annuel HT
Prestations :
Accessibilité:
Autoroute Echangeur A7 Orange sud 10 min
Autoroute Echangeur A9 Orange centre 15 min
Les informations sur les risques auxquels ce bien est exposé sont disponibles sur le site Géorisques : www.georisques.gouv.fr
EVOLIS propose à la location des locaux d'activité situés à Bédarrides, offrant un cadre idéal pour le développement de votre entreprise. Ces espaces polyvalents, conçus pour répondre aux exigences professionnelles, bénéficient d'une localisation stratégique et d'infrastructures modernes, assurant ainsi un environnement propice à la croissance de votre activité.
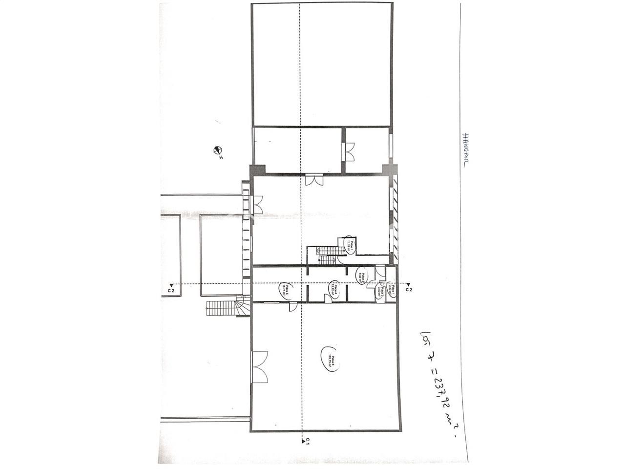
| Étage | Type | Surfaces | Dispo | Loyer | Charges | Type de bailRév. annuelle |
|---|---|---|---|---|---|---|
| RDC | Activités | 238 | Après accord | 66 m²/an HT HC | Bail commercial 3-6-9 ansILAT Indice des Loyers des Activités Tertiaires | |
| RDC | Bureaux | 162 | Après accord | 66 m²/an HT HC | Bail commercial 3-6-9 ansILAT Indice des Loyers des Activités Tertiaires |
Impôt Foncier : 4,65 €/m²/an
Régime Fiscal : T.V.A.
Dépôt de garantie : 3 mois de loyer HT HC
Honoraires : A la charge du preneur
Information sur le Bail :
Honoraires Preneur 15 % HT du loyer annuel HT
Prestations :
- Dans une zone d'Activités de 7 Ha proche des axes autoroutiers A7 et A9 et regroupant une trentaine d'entreprises, Evolis propose à la location un local d'Activité de 400 m² dont 160 m² environ de surface de bureaux rénovés.
- Surface terrain : 0
- Haut. libre min. ss poutre : 4,8 m
- Résistance sol : 1,5 T/m²
- Accès bâtiment : Moyens et gros porteurs
- Nbr de portes plain pied : 1
- Ossature : Métallique
- Murs périmétriques : Béton
- Couverture : Fibro
Accessibilité:
Autoroute Echangeur A7 Orange sud 10 min
Autoroute Echangeur A9 Orange centre 15 min
Les informations sur les risques auxquels ce bien est exposé sont disponibles sur le site Géorisques : www.georisques.gouv.fr
Voir plus
Afficher les consommations énergétiques
Localisation et transport aux alentours
Favoris
Exporter
Appeler
Contacter
Signaler cette annonce

