Depuis 2003, KEOPS Toulouse accompagne les entreprises dans leurs projets immobiliers sur toute l’aire urbaine toulousaine.Notre équipe de professionnels passionnés met à votre service sa connaissa ...
En savoir plus

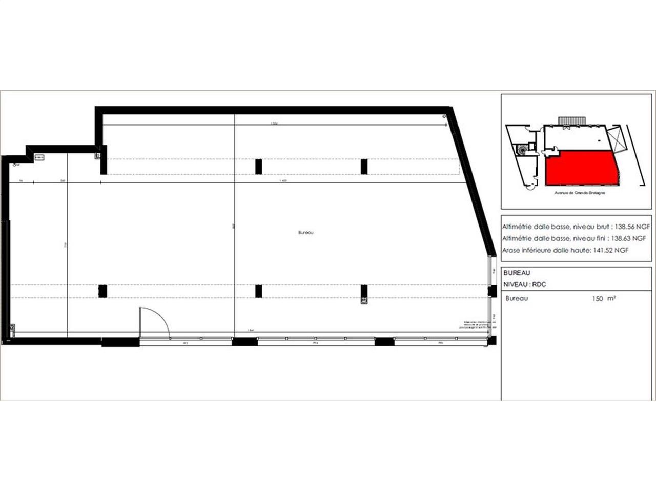
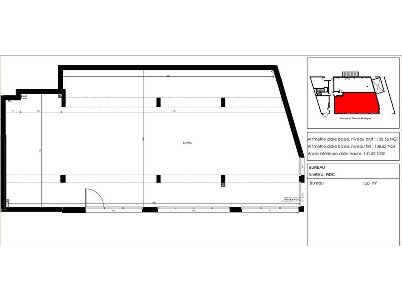
150 m²
REINE ELISABETH - Local commercial à vendre - 150 m²
Toulouse (31000)
Dernière mise à jour : Il y a 2 jours
Immeuble REINE ELISABETH
Local commercial neuf à la vente, sur le secteur de la Cartoucherie à Toulouse
Régime Fiscal : T.V.A.
Dépôt de garantie : 3 mois de loyer HT HC
Honoraires : 5 % HT en sus, du prix de vente
Prestations :
Accessibilité:
BUS 45 : ARRÊT TURENNE À 130M TRAMWAY : LIGNE T1 ET T2, ARRÊT ZÉNITH À 350 M MÉTRO : LIGNE A STATION PATTE D'OIE À 850 M GARE : SNCF TOULOUSE-MATABIAU À 4 KM AÉROPORT : TOULOUSE-BLAGNAC À 5,6 KM
Les informations sur les risques auxquels ce bien est exposé sont disponibles sur le site Géorisques : www.georisques.gouv.fr
Local commercial neuf à la vente, sur le secteur de la Cartoucherie à Toulouse
| Étage | Type | Surfaces | Dispo | Prix(m²) | Charges | Honoraires | Fiscal |
|---|---|---|---|---|---|---|---|
| RDC | Commerce | 150 | Immediate | 2483 HT HC/m² | n.c. | 5 % HT en sus, du prix de vente | T.V.A. |
Régime Fiscal : T.V.A.
Dépôt de garantie : 3 mois de loyer HT HC
Honoraires : 5 % HT en sus, du prix de vente
Prestations :
- Emplacement idéal sur l'Avenue de Grande Bretagne, la surface profite d'une excellente visibilité grace à un large linéaire vitrine Situé à proximité direct des transports en commun : tramway + bus
- Local commercial livré brut, fluides en attentes, vitrines possées Chappe à -7, pour passer l'ensemble des réseaux Compteur : 36kVA Triphasé
- Surface RDC : 150 m²
Accessibilité:
BUS 45 : ARRÊT TURENNE À 130M TRAMWAY : LIGNE T1 ET T2, ARRÊT ZÉNITH À 350 M MÉTRO : LIGNE A STATION PATTE D'OIE À 850 M GARE : SNCF TOULOUSE-MATABIAU À 4 KM AÉROPORT : TOULOUSE-BLAGNAC À 5,6 KM
Les informations sur les risques auxquels ce bien est exposé sont disponibles sur le site Géorisques : www.georisques.gouv.fr
Voir plus
Afficher les consommations énergétiques
Localisation et transport aux alentours
Favoris
Exporter
Appeler
Contacter
Signaler cette annonce










