Chez We Invest Pro, votre satisfaction est notre priorité. Nos agents immobiliers expérimentés et passionnés vous accompagnent à chaque étape de votre projet, en s'appuyant sur un réseau de partena ...
En savoir plus

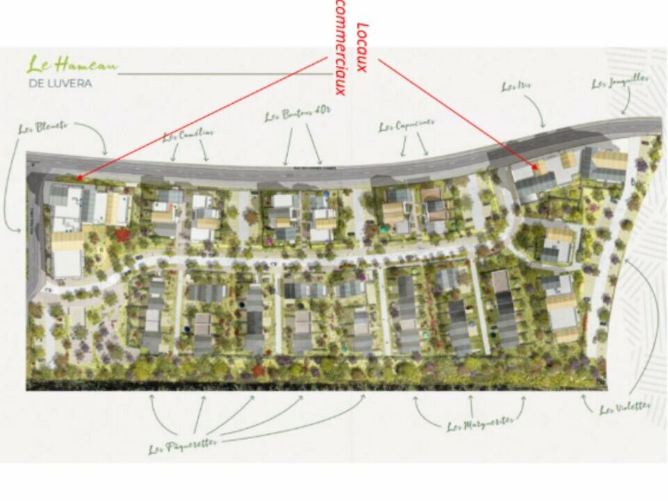
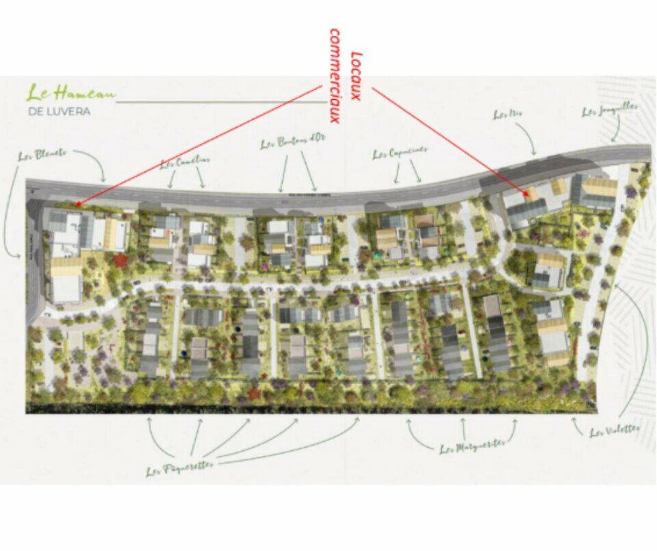
Location local commercial - 232 m²
À LOUER LOCAL COMMERCIAL NEUF LOUVRES (95380)
Surface : 232 m²
Type d'activité : toutes activités sauf restauration
Emplacement stratégique :
Situé au coeur d'un nouveau programme immobilier "LES IRIS", ce local commercial de 232 m² en rez-de-chaussée bénéficie d'un emplacement privilégié à Louvres, à proximité immédiate de la gare et au sein d'un environnement résidentiel dense et en plein développement.
L'emplacement offre une excellente visibilité en angle, avec facades sur la rue Paul Émile Victor et la rue des Grands Champs, garantissant un fort passage piéton et automobile.
Description du local :
Surface totale : 232 m²
Livré brut de béton, fluides en attente
3 gaines techniques prévues
Grandes vitrines en facade
Accès direct sur rue
Stationnements publics à proximité immédiate
Activités autorisées :
Toutes activités hors restauration (pas d'extraction possible).
Idéal pour :
Boulangerie / Pâtisserie
Boucherie / Charcuterie / Traiteur
Supérette ou commerce alimentaire de proximité
Pharmacie, para, pressing, salon, ou point de services de quartier
Points forts :
✅- Programme neuf normes actuelles
✅- Emplacement en pied d'immeuble forte fréquentation
✅- Quartier résidentiel dynamique
✅- Proche gare RER D et axes principaux
0764014548
Les informations sur les risques auxquels ce bien est exposé sont disponibles sur le site Géorisques : www.georisques.gouv.fr
Disponibilité : Immédiate
Loyer annuel : 58000 HT
Charges annuelles : 25 / m2
Honoraires à la charge du preneur : 15 % HT

