MALSH Realty accompagne les entreprises dans leurs projets immobiliers, qu’il s’agisse de locaux d’activités, de bureaux, de commerces, d’entrepôts ou de terrains. L’agence intervient aussi bien au ...
En savoir plus

280 m² divisible dès 111 m²
Local commercial à vendre - 280 m²
Villefranche-sur-Saône (69400)
Dernière mise à jour : Il y a 1 mois
Locaux commerciaux à VILLEFRANCHE SUR SAONE - A VENDRE OU A LOUER - 280 m² divisibles à partir de 110 m²
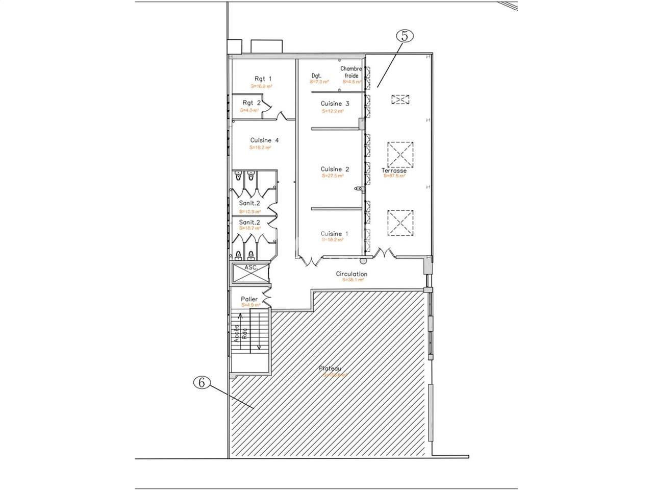
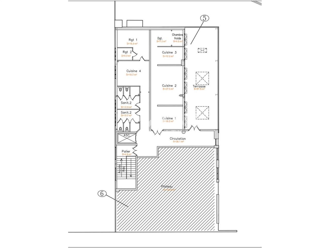
A 5 minutes de la sortie d'autoroute de Villefranche-sur-Saône, nous vous proposons à la vente ou à la location, un local commercial en R+1 d'une surface totale d'environ 280 m² divisibles en 2 lots à partir de 110 m². Ces locaux climatisés bénéficient d'une excellente visibilité depuis l'autoroute A6.
Vente ou Location Locaux commerciaux - Villefranche sur Saône (69400) - 280 m² divisibles à partir de 110 m²
Impôt Foncier : 3125 €//an
Régime Fiscal : TVA et Droits d'enregistrement
Dépôt de garantie : 3 mois de loyer HT/HC
Honoraires : 2,5 % HT du prix de vente HT/HDE, à la charge de l'acquéreur, payable à la signature de l'acte
Information sur le Bail :
Charges : 4 000 euros HT/an
Prestations :
Accessibilité:
Autoroute A proximité immédiate de l'autoroute A6 (sortie n° 31.2 Villefranche-sud à 3 min et sortie n° 31.1 Villefranche-nord à 6 min)
SNCF Gare SNCF de Villefranche-sur-Saône à 5 min en voiture
Bus Bus TCL lignes 151 et 154
Les informations sur les risques auxquels ce bien est exposé sont disponibles sur le site Géorisques : www.georisques.gouv.fr
A 5 minutes de la sortie d'autoroute de Villefranche-sur-Saône, nous vous proposons à la vente ou à la location, un local commercial en R+1 d'une surface totale d'environ 280 m² divisibles en 2 lots à partir de 110 m². Ces locaux climatisés bénéficient d'une excellente visibilité depuis l'autoroute A6.
Vente ou Location Locaux commerciaux - Villefranche sur Saône (69400) - 280 m² divisibles à partir de 110 m²
| Étage | Type | Surfaces | Dispo | Prix(m²) | Charges | Honoraires | Fiscal |
|---|---|---|---|---|---|---|---|
| Parties communes | 30 | n.c. | n.c. | 2,5 % HT du prix de vente HT/HDE, à la charge de l'acquéreur, payable à la signature de l'acte | TVA et Droits d'enregistrement | ||
| R+1 | Commerce | 140 | n.c. | n.c. | 2,5 % HT du prix de vente HT/HDE, à la charge de l'acquéreur, payable à la signature de l'acte | TVA et Droits d'enregistrement | |
| Parkings | n.c. | n.c. | 2,5 % HT du prix de vente HT/HDE, à la charge de l'acquéreur, payable à la signature de l'acte | TVA et Droits d'enregistrement | |||
| Total Cellule 1 | Locaux Commerciaux | 170 | Immédiate | 1088,24 HT/HDE/m² | n.c. | 2,5 % HT du prix de vente HT/HDE, à la charge de l'acquéreur, payable à la signature de l'acte | TVA et Droits d'enregistrement |
| Parties communes | 19,5 | n.c. | n.c. | 2,5 % HT du prix de vente HT/HDE, à la charge de l'acquéreur, payable à la signature de l'acte | TVA et Droits d'enregistrement | ||
| R+1 | Commerce | 91 | n.c. | n.c. | 2,5 % HT du prix de vente HT/HDE, à la charge de l'acquéreur, payable à la signature de l'acte | TVA et Droits d'enregistrement | |
| Parkings | n.c. | n.c. | 2,5 % HT du prix de vente HT/HDE, à la charge de l'acquéreur, payable à la signature de l'acte | TVA et Droits d'enregistrement | |||
| Total Cellule 2 | Locaux Commerciaux | 110,5 | Immédiate | 1176,47 HT/HDE/m² | n.c. | 2,5 % HT du prix de vente HT/HDE, à la charge de l'acquéreur, payable à la signature de l'acte | TVA et Droits d'enregistrement |
Impôt Foncier : 3125 €//an
Régime Fiscal : TVA et Droits d'enregistrement
Dépôt de garantie : 3 mois de loyer HT/HC
Honoraires : 2,5 % HT du prix de vente HT/HDE, à la charge de l'acquéreur, payable à la signature de l'acte
Information sur le Bail :
Charges : 4 000 euros HT/an
Prestations :
- Possibilité d'installer une enseigne visible depuis l'A6
- Accès indépendant avec hall, cage d'escalier et ascenseur
- Travaux à la charge du propriétaire si division en 2 lots :
- Lots livrés avec revêtement au sol (moquette ou PVC)
- Cloison de séparation (coupe-feu) des lots
- Séparation électrique, plomberie , climatisation, VMC.
- Blocs sanitaire
- Commerce / Bureaux
- Faux-plafond
- Luminaires encastrés
- Climatisation réversible
- Stationnements : 7 places de parking
Accessibilité:
Autoroute A proximité immédiate de l'autoroute A6 (sortie n° 31.2 Villefranche-sud à 3 min et sortie n° 31.1 Villefranche-nord à 6 min)
SNCF Gare SNCF de Villefranche-sur-Saône à 5 min en voiture
Bus Bus TCL lignes 151 et 154
Les informations sur les risques auxquels ce bien est exposé sont disponibles sur le site Géorisques : www.georisques.gouv.fr
Voir plus
Afficher les consommations énergétiques
Localisation et transport aux alentours
Favoris
Exporter
Appeler
Contacter
Signaler cette annonce










