Avec près de 80 implantations en France, Arthur Loyd est le premier réseau National de professionnels de Conseil en Immobilier d’Entreprise. Nous vous accompagnons dans vos projets sur l’ensemble d ...
En savoir plus

77 m²
Local commercial à vendre - 77 m²
Évreux (27000)
Dernière mise à jour : Hier
Locaux centre ville idéal profession libérale, assurance, mutuelle dans un environnement compatible.
Une offre proposée par l'agence Arthur Loyd Evreux - 973 route de Paris 27930 Le Vieil-Evreux - 02 35 600 400 - www.arthur-loyd-evreux.com
Impôt Foncier : 1984 €//an
Régime Fiscal : Droits de mutation
Honoraires : 6 % HT du prix NV à la charge de l'acquéreur
Prestations :
Accessibilité:
Le bien est situé au Nord du centre-ville à 500m environ. Il s'agit d'un secteur mixte, avec souvent des commerces en pied d'immeuble. Dans cette zone le stationnement est aisé, offrant ainsi une bonne accessibilité aux commerces.
Les informations sur les risques auxquels ce bien est exposé sont disponibles sur le site Géorisques : www.georisques.gouv.fr
Une offre proposée par l'agence Arthur Loyd Evreux - 973 route de Paris 27930 Le Vieil-Evreux - 02 35 600 400 - www.arthur-loyd-evreux.com
| Étage | Type | Surfaces | Dispo | Prix(m²) | Charges | Honoraires | Fiscal |
|---|---|---|---|---|---|---|---|
| RDC | Commerce | 77 | n.c. | n.c. | 6 % HT du prix NV à la charge de l'acquéreur | Droits de mutation |
Impôt Foncier : 1984 €//an
Régime Fiscal : Droits de mutation
Honoraires : 6 % HT du prix NV à la charge de l'acquéreur
Prestations :
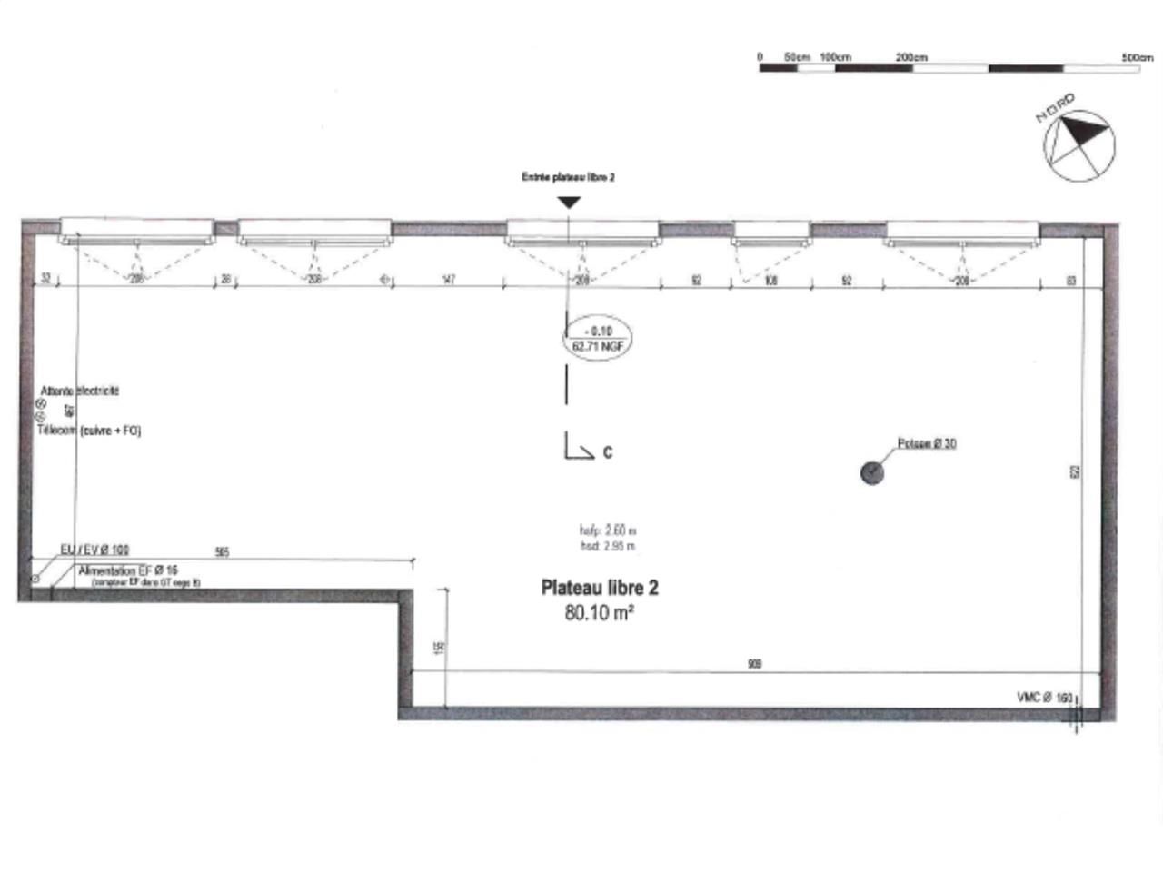
- Local situé en RDC d'un immeuble mixte.
- Sol carrelage, faux-plafond, chauffage électrique, courant faible/courant fort
- Vitrine
- Sanitaire et coin cuisine
- Accessibilité PMR
- Hauteur sous faux plafond de 2,60 m et sous dalle 2,95 m
- Accessible depuis la rue Borville Dupuis par une grande ouverture sur sa partie centrale et plusieurs autres ouvertures sur le reste de la façade, lui offrant une bonne visibilité.
- Possibilité d'une place de parking privée en extérieur.
- Activités interdites : Tous commerces sauf restauration
- Surface RDC : 77 m²
Accessibilité:
Le bien est situé au Nord du centre-ville à 500m environ. Il s'agit d'un secteur mixte, avec souvent des commerces en pied d'immeuble. Dans cette zone le stationnement est aisé, offrant ainsi une bonne accessibilité aux commerces.
Les informations sur les risques auxquels ce bien est exposé sont disponibles sur le site Géorisques : www.georisques.gouv.fr
Voir plus
Afficher les consommations énergétiques
Localisation et transport aux alentours
Favoris
Exporter
Appeler
Contacter
Signaler cette annonce






