Prolocaux est un acteur de l'immobilier d'entreprise spécialisé dans la location, la vente et l'acquisition de biens professionnels en région.Présents depuis 2015 en Normandie, dans les Hauts-de-Fr ...
En savoir plus

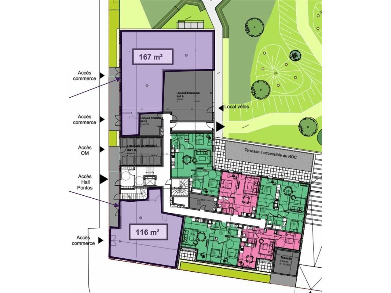
283 m² divisible dès 116 m²
Local commercial à vendre - 283 m²
Colombelles (14460)
Dernière mise à jour : Il y a 8 jours
À VENDRE – Locaux commerciaux en VEFA – Colombelles
Les informations sur les risques auxquels ce bien est exposé sont disponibles sur le site Géorisques : www.georisques.gouv.fr
Agent commercial PROLOCAUX - inscrit au RSAC de Rouen sour le numéro 994 377 547
A vendre, local commercial d'environ 283 m² divisible à partir de 116 m²
• Locaux livrés bruts
• Fluides en attente
• Vitrines en attente
• Accès indépendants
• 4 stationnements en sous-sol
• Construction neuve
• Livraison prévisionnelle : 3ème trimestre 2026
• Possibilité d'adaptation des façades vitrées selon projet
Disponibilité : 3ème trimestre 2026
Prix de vente : 492800 € NET VENDEUR
Honoraires à la charge de l'acquéreur : 8 % HT
Au sein d'un programme neuf en cours de construction, deux cellules commerciales vendues en VEFA, situées dans un environnement en plein développement à proximité immédiate des axes principaux.
Surface totale possible d'environ 283 m², divisible à partir de 116 m².
Deux surfaces disponibles : 167 m² et 116 m².
Il est encore possible de fusionner les deux locaux pour former un seul espace en modifiant l'implantation du local vélos.
Les cellules sont situées en rez-de-chaussée d'un ensemble immobilier neuf à usage mixte.
Ces locaux vous sont proposés à la vente par PROLOCAUX.
Les informations sur les risques auxquels ce bien est exposé sont disponibles sur le site Géorisques : www.georisques.gouv.fr
Agent commercial PROLOCAUX - inscrit au RSAC de Rouen sour le numéro 994 377 547
A vendre, local commercial d'environ 283 m² divisible à partir de 116 m²
• Locaux livrés bruts
• Fluides en attente
• Vitrines en attente
• Accès indépendants
• 4 stationnements en sous-sol
• Construction neuve
• Livraison prévisionnelle : 3ème trimestre 2026
• Possibilité d'adaptation des façades vitrées selon projet
Disponibilité : 3ème trimestre 2026
Prix de vente : 492800 € NET VENDEUR
Honoraires à la charge de l'acquéreur : 8 % HT
Voir plus
Afficher les consommations énergétiques
Favoris
Exporter
Appeler
Contacter
Signaler cette annonce
