Prolocaux est un acteur de l'immobilier d'entreprise spécialisé dans la location, la vente et l'acquisition de biens professionnels en région.Présents depuis 2015 en Normandie, dans les Hauts-de-Fr ...
En savoir plus

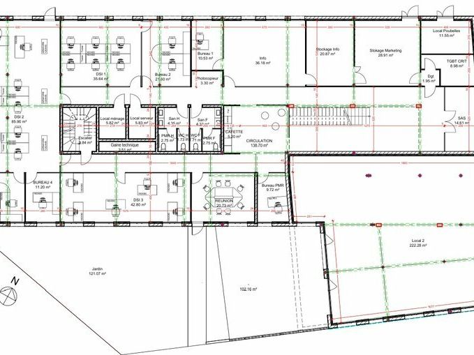
221 m²
HT HC
Location local commercial - 221 m²
Val-de-Reuil (27100)
Dernière mise à jour : Il y a 2 jours
A louer local commercial de 220m², une opportunité rare avec une visibilité exceptionnelle!
Les informations sur les risques auxquels ce bien est exposé sont disponibles sur le site Géorisques : www.georisques.gouv.fr
Sofia OLIVEIRA, agent commercial PROLOCAUX - inscrite au RSAC d'EVREUX sour le numéro 838 485 571
Local de 221m² livré brut de béton, fluides en attente:
- grande facade vitrée
- luminosité naturelle
- emplacement en angle
- accessibilité PMR
- stationnement à proximité
Disponibilité : MI OCTOBRE 2025
Loyer annuel : 39780 € HT
Type de bail : Commercial
Dépôt de garantie : 2 mois
Honoraires à la charge du preneur : 15 % HT
Situé au RDC, ce local commercial de 221m² bénéficie d'un emplacement stratégique en angle, avec une double exposition sur une rue et un rond-point très fréquenté.
Idéal pour une crèche, un espace de services ou toute autre activité nécessitant de la visibilité et de l'accessibilité.
Proche des écoles, habitations et axes routiers.
Les informations sur les risques auxquels ce bien est exposé sont disponibles sur le site Géorisques : www.georisques.gouv.fr
Sofia OLIVEIRA, agent commercial PROLOCAUX - inscrite au RSAC d'EVREUX sour le numéro 838 485 571
Local de 221m² livré brut de béton, fluides en attente:
- grande facade vitrée
- luminosité naturelle
- emplacement en angle
- accessibilité PMR
- stationnement à proximité
Disponibilité : MI OCTOBRE 2025
Loyer annuel : 39780 € HT
Type de bail : Commercial
Dépôt de garantie : 2 mois
Honoraires à la charge du preneur : 15 % HT
Voir plus
Afficher les consommations énergétiques
Localisation et transport aux alentours
Favoris
Exporter
Appeler
Contacter
Signaler cette annonce


