Lamy Bureaux & Commerces est un cabinet de conseil en immobilier d'entreprise spécialiste de la commercialisation d'offres de bureaux et de locaux commerciaux à Paris et en région parisienne.
En savoir plus

351 m²
HT HC
Location local commercial - 351 m²
Paris 14 (75014)
Dernière mise à jour : Il y a 18 jours
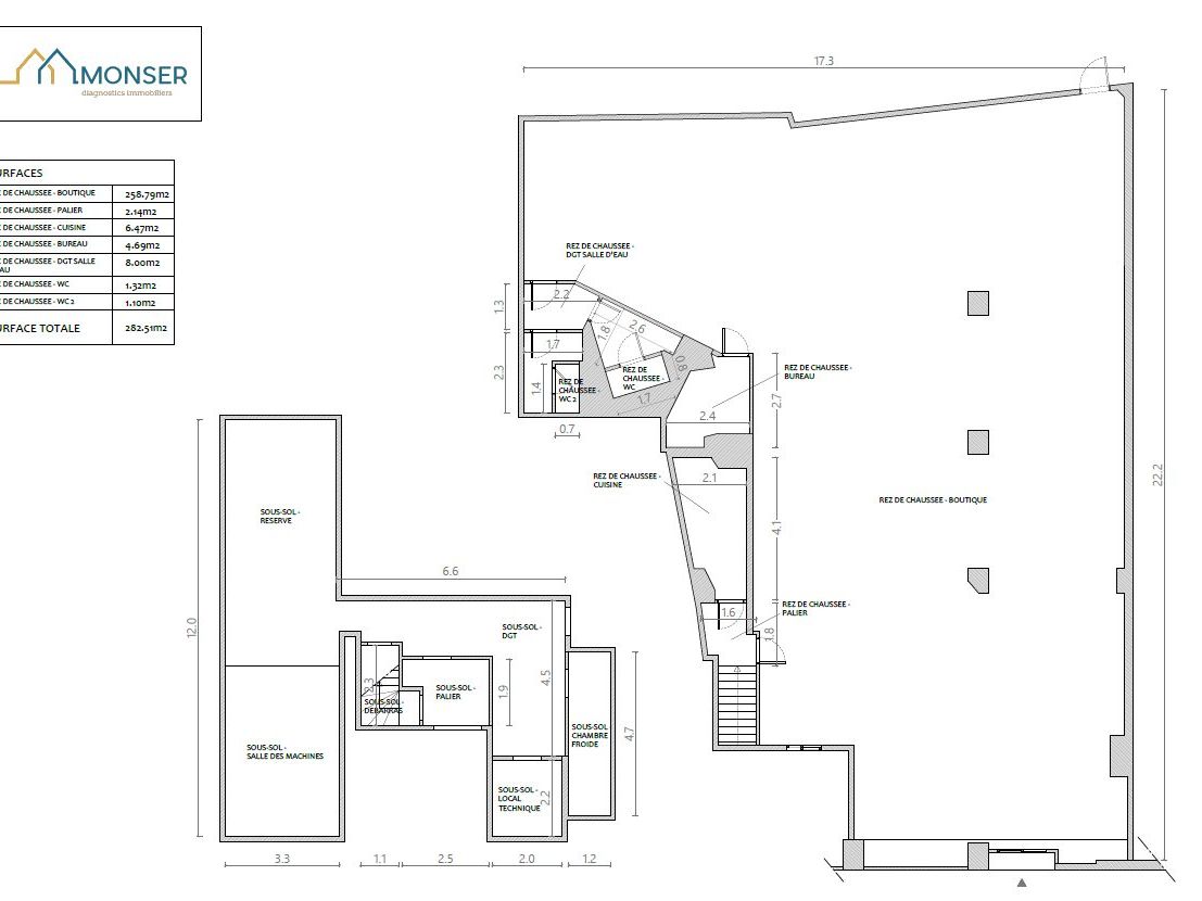
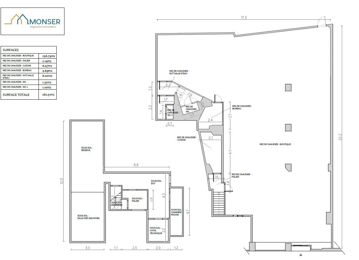
Edgar Quinet - Local commercial 282 m²
Lamy vous propose à la location dans le quartier très animé d'Edgar Quinet :
Une belle boutique sur deux niveaux avec un beau linéaire facade d'environ 8 mètres.
Situé en rez-de-chaussée d'un bel immeuble, elle nous offre une belle visibilité dans un quartier très dynamique face au Square Gaston Baty.
Au niveau de la disposition du local commercial, il se compose comme suit deux niveaux : Au rez-de-chaussée, une belle surface de vente avec très peu de porteurs, un monte-charge, une cuisine, un bureau et un coin le personnel (WC, douche, vestiaire).
Au sous-sol, accessible directement depuis le RDC, on y retrouve la salle des machines, une réserve, le local technique et la chambre froide.
DISPONIBILITE IMMEDIATE
ABSENCE D'EXTRACTION = RESTAURATION INTERDITE
Honoraires de 33 453 € HT à la charge du locataire. Provision sur charges 209 € HT/mois, régularisation annuelle. Dépôt de garantie 27 878 €. DPE en cours. Les informations sur les risques auxquels ce bien est exposé sont disponibles sur le site Géorisques : georisques.gouv.fr.
Lamy vous propose à la location dans le quartier très animé d'Edgar Quinet :
Une belle boutique sur deux niveaux avec un beau linéaire facade d'environ 8 mètres.
Situé en rez-de-chaussée d'un bel immeuble, elle nous offre une belle visibilité dans un quartier très dynamique face au Square Gaston Baty.
Au niveau de la disposition du local commercial, il se compose comme suit deux niveaux : Au rez-de-chaussée, une belle surface de vente avec très peu de porteurs, un monte-charge, une cuisine, un bureau et un coin le personnel (WC, douche, vestiaire).
Au sous-sol, accessible directement depuis le RDC, on y retrouve la salle des machines, une réserve, le local technique et la chambre froide.
DISPONIBILITE IMMEDIATE
ABSENCE D'EXTRACTION = RESTAURATION INTERDITE
Honoraires de 33 453 € HT à la charge du locataire. Provision sur charges 209 € HT/mois, régularisation annuelle. Dépôt de garantie 27 878 €. DPE en cours. Les informations sur les risques auxquels ce bien est exposé sont disponibles sur le site Géorisques : georisques.gouv.fr.
Voir plus
Afficher les consommations énergétiques
Localisation et transport aux alentours
- Paris-Montparnasse36m (1min à pied)N
- Gaîté431m (6min à pied)13
- Falguière465m (7min à pied)12
- Montparnasse-Bienvenüe506m (8min à pied)461213
Favoris
Exporter
Appeler
Contacter
Signaler cette annonce










