Nous sommes Immprove, une grande équipe de plus de 200 experts en immobilier d’entreprise, implantés localement avec plus de 20 agences sur tout le territoire.Depuis 2009, notre proximité, notre ét ...
En savoir plus

650 m²
HT HC
Location local commercial - 650 m²
Oullins (69600)
Dernière mise à jour : Hier
RARE A LA VENTE SECTEUR OULLINS
Rare à Oullins découvrez un vaste plateau de bureaux à vendre ou à louer, à proximité immédiate de la gare d'Oullins et des transports.
Les locaux sont ERP et très facilement modulables.
Ces locaux sont disponibles immédiatement.
Impôt Foncier : 16,54 €/m²/an HT
Régime Fiscal : T.V.A. (20%)
Dépôt de garantie : 3 mois de loyer HT HC
Honoraires : 15 % HT du loyer annuel HT à la charge du preneur, payables à la signature du bail
Information sur le Bail :
Charges : 11,08 euros/m²/an HT
Prestations :
Accessibilité:
Métro Ligne B
Bus Lignes 11 / 12 / 14 / 18 / 78 / 88
SNCF Gare d'Oullins
Autoroute A7
Les informations sur les risques auxquels ce bien est exposé sont disponibles sur le site Géorisques : www.georisques.gouv.fr
Rare à Oullins découvrez un vaste plateau de bureaux à vendre ou à louer, à proximité immédiate de la gare d'Oullins et des transports.
Les locaux sont ERP et très facilement modulables.
Ces locaux sont disponibles immédiatement.
| Étage | Type | Surfaces | Dispo | Loyer | Charges | Type de bailRév. annuelle |
|---|---|---|---|---|---|---|
| RDC | Bureaux | 650 | Immédiate | 138,46 HT/HC/m²/an | Bail Commercial 3-6-9 ansIndice ILAT | |
| RDC | Parkings | Immédiate | 600 HT/HC/place/an | Bail Commercial 3-6-9 ansIndice ILAT |
Impôt Foncier : 16,54 €/m²/an HT
Régime Fiscal : T.V.A. (20%)
Dépôt de garantie : 3 mois de loyer HT HC
Honoraires : 15 % HT du loyer annuel HT à la charge du preneur, payables à la signature du bail
Information sur le Bail :
Charges : 11,08 euros/m²/an HT
Prestations :
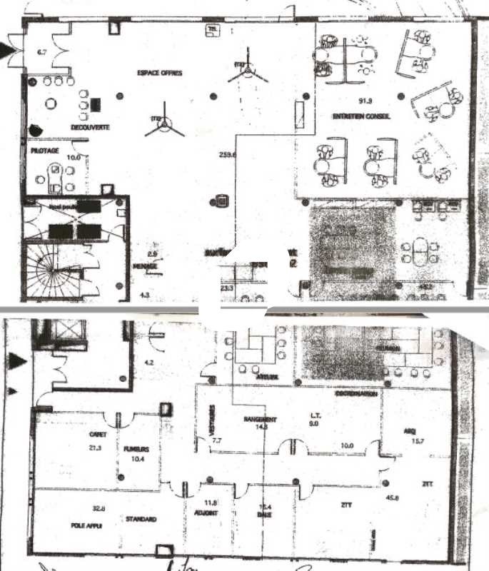
- Immeuble mixte
- Accès véhicules légers
- Accès PMR
- Double accès dont un privatif sur rue
- Climatisation réversible
- Fibre optique
- Local aménagé :
- Accueil
- Espace ouvert
- Bureaux cloisonnés
- Salle de réunion
- Espace détente
- Local technique
- Cuisine
- Sanitaires privatifs
- Belle hauteur sous plafond
- Locaux traversants
- Décloisonnement possible
- Locaux rationnels et modulables
- Archives
- Carrelage
- Câblage informatique et téléphonique
- Prises RJ45
- ERP
- Climatisation réversible
- Vestiaires
Accessibilité:
Métro Ligne B
Bus Lignes 11 / 12 / 14 / 18 / 78 / 88
SNCF Gare d'Oullins
Autoroute A7
Les informations sur les risques auxquels ce bien est exposé sont disponibles sur le site Géorisques : www.georisques.gouv.fr
Voir plus
Afficher les consommations énergétiques
Localisation et transport aux alentours
Favoris
Exporter
Appeler
Contacter
Signaler cette annonce






