ImoseoPro est un cabinet de conseil en immobilier d'entreprise spécialiste de l'ensemble de l'agglomération bordelaise du bassin d'Arcachon ainsi que de la côte basque. Les collaborateurs d'ImoseoP ...
En savoir plus

446 m²
HT HC
Location local commercial - 446 m²
Biganos (33380)
Dernière mise à jour : Il y a 2 jours
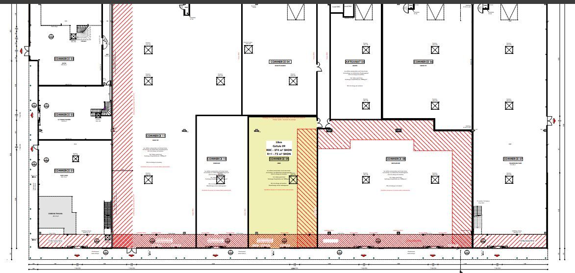
Local commercial à louer Bassin d'Arcachon Local commercial à louer BIGANOS/ 446m2
Situé à proximité de la sortie 2 de l'A660, en direction du Bassin d'Arcachon, dans une zone commerciale importante, proche du Auchan et Leroy Merlin, local commercial d'environ 450m2. Tous commerces. Très grand parking à proximité.
Tableau des surfaces:
Aspects financiers :
Indexation annuelle :
Dépôt de garantie :
Régime fiscal location :
Taxe foncière : 6700 €
Situé à proximité de la sortie 2 de l'A660, en direction du Bassin d'Arcachon, dans une zone commerciale importante, proche du Auchan et Leroy Merlin, local commercial d'environ 450m2. Tous commerces. Très grand parking à proximité.
Tableau des surfaces:
| Niveau | Nom | Surface | Commentaires | Loyer | Prix |
| Local Commercial | 446 m² | ||||
Aspects financiers :
Indexation annuelle :
Dépôt de garantie :
Régime fiscal location :
Taxe foncière : 6700 €
Voir plus
Afficher les consommations énergétiques
Localisation et transport aux alentours
Favoris
Exporter
Appeler
Contacter
Signaler cette annonce
