Depuis 2003, KEOPS Toulouse accompagne les entreprises dans leurs projets immobiliers sur toute l’aire urbaine toulousaine.Notre équipe de professionnels passionnés met à votre service sa connaissa ...
En savoir plus

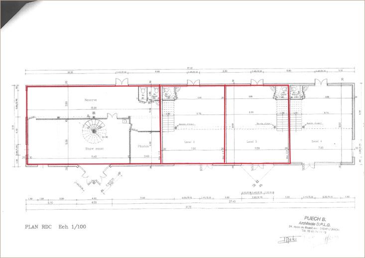
318 m² divisible dès 93 m²
Loyer sur demande
Location local commercial - 318 m²
Aucamville (31140)
Dernière mise à jour : Il y a 5 mois
Locaux commerciaux / professionnels et bureaux à louer idéalement situé au cœur d'Aucamville à proximité directe des commerces et services.
Aucamville - Proximité commerces et services Périphérique : sortie n° 33 "Lalande" Aéroport : 15 min Gare :Matabiau : 20 min
Au cœur de la commune d'Aucamville, nous vous proposons une surface professionnelle à usage de bureaux bénéficiant d'une excellente visibilité depuis l'axe routier principalPlusieurs lots disponibles pouvant être louer séparément ou dans l'ensemble : - 225m2 dont 50m2 de stockage - 93m2 Détails des loyers séparés sur demande. Les lots sont répartie sur 2 niveaux : RDC et 1er étage avec rochellePlateaux de bon standing Aménagement : showroom, salle de réunion, bureaux, open space, local de stockageSystème de climatisation réversible Places de parking privatives
(1) loyer en Euros HT HC / m² / an (5) charges en Euros HT / m² / an
Aucamville - Proximité commerces et services Périphérique : sortie n° 33 "Lalande" Aéroport : 15 min Gare :Matabiau : 20 min
Au cœur de la commune d'Aucamville, nous vous proposons une surface professionnelle à usage de bureaux bénéficiant d'une excellente visibilité depuis l'axe routier principalPlusieurs lots disponibles pouvant être louer séparément ou dans l'ensemble : - 225m2 dont 50m2 de stockage - 93m2 Détails des loyers séparés sur demande. Les lots sont répartie sur 2 niveaux : RDC et 1er étage avec rochellePlateaux de bon standing Aménagement : showroom, salle de réunion, bureaux, open space, local de stockageSystème de climatisation réversible Places de parking privatives
| Surface | Surface Totale | Type de locaux | Loyer(1) | Charges(5) | Disponibilité |
|---|---|---|---|---|---|
| 93,00 m² | 305 m² | Commerce | 154,83 | 21,93 | Immédiate |
| 90,00 m² | 305 m² | Commerce | 153,33 | 20,00 | Immédiate |
| 122,00 m² | 305 m² | Commerce | 122,95 | 16,72 | Immédiate |
Voir plus
Afficher les consommations énergétiques
Localisation et transport aux alentours
Favoris
Exporter
Appeler
Contacter
Signaler cette annonce
