Conseil en immobilier d'entreprise, Cushman & Wakefield est un acteur incontournable au rayonnement international. Cushman & Wakefield offre des solutions dans toutes les étapes que comporte un p ...
En savoir plus



905 m²
Activité/Entrepôt à vendre - 905 m²
Saint-Vulbas (01150)
Dernière mise à jour : Il y a 2 jours
À vendre - Immeuble d''activités avec bureaux - 905 m² non divisibles - Saint-Vulbas (01150)
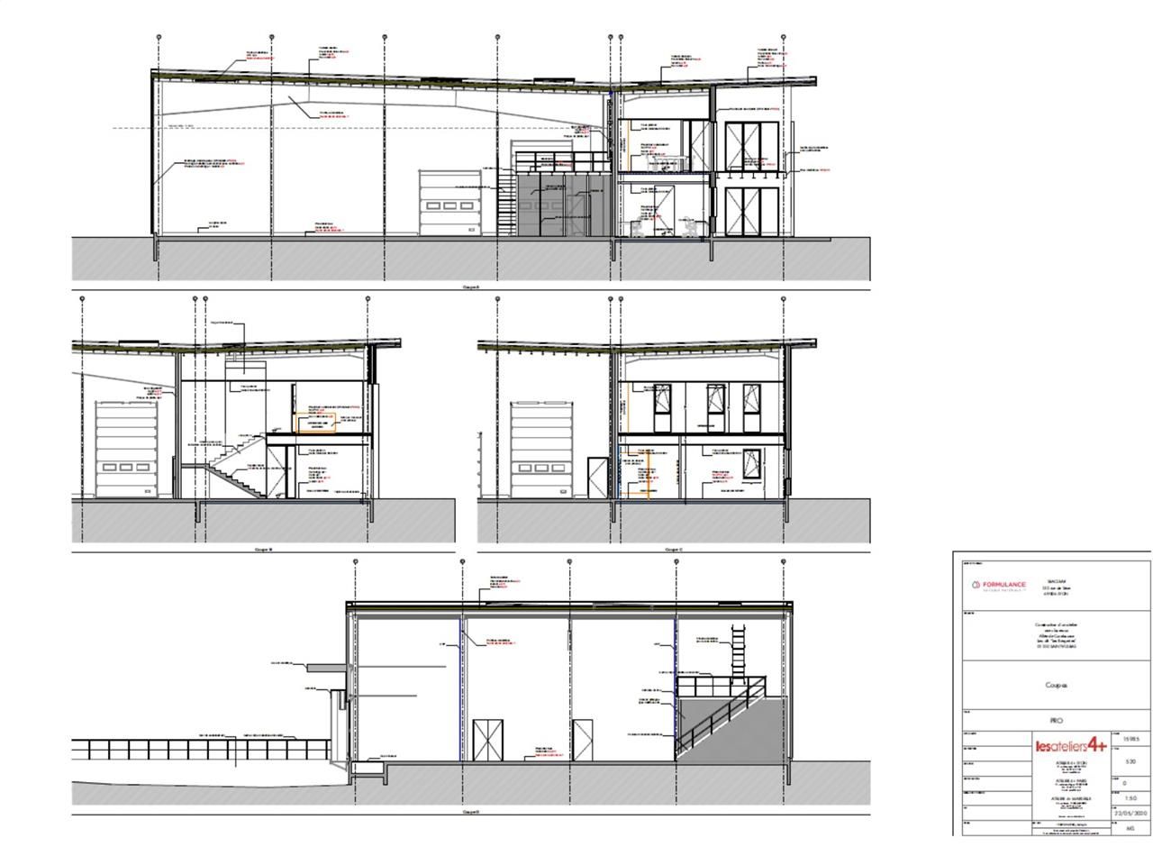
Situé au coeur de la zone industrielle de Saint-Vulbas, ce bâtiment indépendant de 905 m², construit en 2022, est implanté sur un terrain clos de 5 000 m². Il offre une configuration complète avec bureaux, atelier, mezzanine de stockage et terrasse.
Ce bien rare sur le secteur est immédiatement disponible et propose un cadre de travail moderne, sécurisé et performant.
Le bâtiment est conçu pour répondre aux exigences industrielles et tertiaires : bardage double peau isolé, dalle béton 5T/m², quai niveleur, portes sectionnelles (3x3 m à quai et 3x4,5 m de plain-pied), puissance électrique de 42 kVA, chauffage par aérothermes et déstratificateurs. Les bureaux sont équipés d'un ascenseur, de cloisons vitrées, de faux plafonds, de pavés LED, de sols souples et carrelés, ainsi que d'un système gainable pour le chauffage et le rafraîchissement.
La zone industrielle de Saint-Vulbas bénéficie d'une desserte particulièrement efficace grâce au Parc Industriel de la Plaine de l'Ain (PIPA), reconnu pour la qualité de ses infrastructures et son accessibilité. Deux lignes de transport à la demande, A10 et A11, opérées par la Région Auvergne-Rhône-Alpes, relient directement le parc à Ambérieu-en-Bugey et à Meximieux, du lundi au samedi, avec une large amplitude horaire et jusqu'à 14 allers-retours quotidiens.
Le parc profite également d'un maillage routier stratégique?: l'axe principal D124 traverse la zone et permet de rejoindre rapidement Meximieux puis l'autoroute A42, offrant un accès fluide vers Lyon et les grands axes régionaux.
Atout supplémentaire, l'aéroport Lyon-Saint-Exupéry se situe à seulement 30 minutes de la zone, facilitant les déplacements nationaux et internationaux des collaborateurs et partenaires.
L'extérieur est aménagé avec voirie lourde, aire de manoeuvre pour poids lourds, bornes de recharge pour véhicules électriques, portail coulissant motorisé, parkings VL et PL, et stockage extérieur sur terre-plein.
Contactez nous pour toutes questions complémentaires ou pour une éventuelle visite.
Régime Fiscal : Droits d'enregistrement
Honoraires : 3 % HT du prix à la charge de l'acquéreur
Prestations :
Accessibilité:
Accès routier A42
Accès routier D124
Les informations sur les risques auxquels ce bien est exposé sont disponibles sur le site Géorisques : www.georisques.gouv.fr
Situé au coeur de la zone industrielle de Saint-Vulbas, ce bâtiment indépendant de 905 m², construit en 2022, est implanté sur un terrain clos de 5 000 m². Il offre une configuration complète avec bureaux, atelier, mezzanine de stockage et terrasse.
Ce bien rare sur le secteur est immédiatement disponible et propose un cadre de travail moderne, sécurisé et performant.
Le bâtiment est conçu pour répondre aux exigences industrielles et tertiaires : bardage double peau isolé, dalle béton 5T/m², quai niveleur, portes sectionnelles (3x3 m à quai et 3x4,5 m de plain-pied), puissance électrique de 42 kVA, chauffage par aérothermes et déstratificateurs. Les bureaux sont équipés d'un ascenseur, de cloisons vitrées, de faux plafonds, de pavés LED, de sols souples et carrelés, ainsi que d'un système gainable pour le chauffage et le rafraîchissement.
La zone industrielle de Saint-Vulbas bénéficie d'une desserte particulièrement efficace grâce au Parc Industriel de la Plaine de l'Ain (PIPA), reconnu pour la qualité de ses infrastructures et son accessibilité. Deux lignes de transport à la demande, A10 et A11, opérées par la Région Auvergne-Rhône-Alpes, relient directement le parc à Ambérieu-en-Bugey et à Meximieux, du lundi au samedi, avec une large amplitude horaire et jusqu'à 14 allers-retours quotidiens.
Le parc profite également d'un maillage routier stratégique?: l'axe principal D124 traverse la zone et permet de rejoindre rapidement Meximieux puis l'autoroute A42, offrant un accès fluide vers Lyon et les grands axes régionaux.
Atout supplémentaire, l'aéroport Lyon-Saint-Exupéry se situe à seulement 30 minutes de la zone, facilitant les déplacements nationaux et internationaux des collaborateurs et partenaires.
L'extérieur est aménagé avec voirie lourde, aire de manoeuvre pour poids lourds, bornes de recharge pour véhicules électriques, portail coulissant motorisé, parkings VL et PL, et stockage extérieur sur terre-plein.
Contactez nous pour toutes questions complémentaires ou pour une éventuelle visite.
| Étage | Type | Surfaces | Dispo | Prix(m²) | Charges | Honoraires | Fiscal |
|---|---|---|---|---|---|---|---|
| Terrasse | 43 | n.c. | n.c. | 3 % HT du prix à la charge de l'acquéreur | Droits d'enregistrement | ||
| R+1 | Bureaux | 173 | n.c. | n.c. | 3 % HT du prix à la charge de l'acquéreur | Droits d'enregistrement | |
| RdC | Activités | 528 | n.c. | n.c. | 3 % HT du prix à la charge de l'acquéreur | Droits d'enregistrement | |
| RdC | Bureaux | 161 | n.c. | n.c. | 3 % HT du prix à la charge de l'acquéreur | Droits d'enregistrement | |
| Total Cellule | Activités | 905 | 1823,2 /m² HD.HT | n.c. | 3 % HT du prix à la charge de l'acquéreur | Droits d'enregistrement |
Régime Fiscal : Droits d'enregistrement
Honoraires : 3 % HT du prix à la charge de l'acquéreur
Prestations :
- Bâtiment récent de 2022 de 905 m² en R+1
- Terrain indépendant de 5000 m²
- Atelier:
- 2 Portes sectionnelles:
- Porte accès à quai de 3 X 3 m
- Porte Plain pied de 3 X 4,5 m
- Bardage double peau isolé
- Dalle 5T/m²
- Quai niveleur
- Aérothermes et déstratificateur
- Bureaux:
- Ascenseur
- Cloisons vitrées
- Faux plafonds
- Carrelage
- Sol souple
- Pavés LED
- Chauffage et rafraichissement via Gainable/caissettes
- Extérieur:
- Voirie lourde
- Bornes de recharge pour véhicules électriques
- Clôtures et Portail coulissant motorisé
- Parkings VL
- Immeuble indépendant
- Surface RDC : 0 m²
- Surface terrain : 5000
- Accès bâtiment : Accès VL
Accès poids lourds
Aire de Manoeuvre
Chaussée lourde
Alarme périmétrique
Gros Porteurs
Moyens et gros porteurs
Parking PL
Parking VL
Voie Pietonne Séparée
Portail automatique - Nbr de portes à quai : 1
- Ossature : Métallique
- Murs périmétriques : Double bardage
- Couverture : Bac acier
Accessibilité:
Accès routier A42
Accès routier D124
Les informations sur les risques auxquels ce bien est exposé sont disponibles sur le site Géorisques : www.georisques.gouv.fr
Voir plus
Afficher les consommations énergétiques
Localisation et transport aux alentours
Favoris
Exporter
Appeler
Contacter
Signaler cette annonce









