A l’appui d’un réseau leader à l’international, I&L Solutions est une équipe de plus de 70 professionnels spécialisés en immobilier Logistique et Industriel au service des investisseurs, des propri ...
En savoir plus

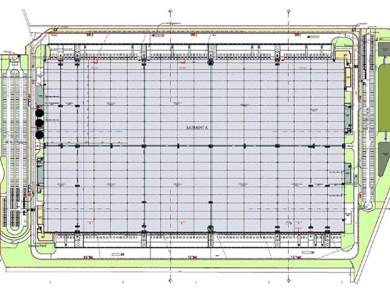
111 365 m²
HT HC
Location activité/entrepôt - 111365 m²
Ressons-sur-Matz (60490)
Dernière mise à jour : Hier
Idéalement implanté au coeur de la dorsale et desservant les marchés du Nord de la France et de l'Europe du Nord, la commune de Ressons-sur-Matz se trouve aux portes de l'autoroute A1 et à 18 km de Compiègne. CBRE, vous propose un entrepôt XXL à développer de 111 365 m². PC et ICPE obtenus. Nombreuses ICPE.
L'actif se situe à proximité du parc d'activité de la Vallée du Matz. Environnement économique de premier choix.
Régime Fiscal : T.V.A.
Honoraires : 15 % HT d'un loyer annuel HT/HC à la charge du preneur
Information sur le Bail :
Bâtiment A Loyer entrepôt : 52,00 euros/m²/an HT HC (6 ans) Loyer entrepôt : 50,00 euros/m²/an HT HC (9 ans) Taxe Foncière : 5,50 euros/m²/an
Prestations :
Accessibilité:
Autoroute A1 (accès direct) raccordement à la RN31/E46 et la DRD 934
SNCF SNCF : Gare TGV Haute Picardie sur la commune de Estrées-Deniécourt à 46 km
SNCF Gare TGV de Paris-Charles-de-Gaulle à 69 km
Aeroport Paris Roissy-Charles-de-Gaulle (69 km)
Les informations sur les risques auxquels ce bien est exposé sont disponibles sur le site Géorisques : www.georisques.gouv.fr
L'actif se situe à proximité du parc d'activité de la Vallée du Matz. Environnement économique de premier choix.
| Étage | Type | Surfaces | Dispo | Loyer | Charges | Type de bailRév. annuelle |
|---|---|---|---|---|---|---|
| Entrepôts | 107200 | 12 mois ap. déb. trx | 52 m²/an HT HC | 6-9-12 ansIndice ILAT | ||
| Entrepôts | 2802 | 12 mois ap. déb. trx | 52 m²/an HT HC | 6-9-12 ansIndice ILAT | ||
| Entrepôts | 1010 | 12 mois ap. déb. trx | 52 m²/an HT HC | 6-9-12 ansIndice ILAT | ||
| Entrepôts | 353 | 12 mois ap. déb. trx | 52 m²/an HT HC | 6-9-12 ansIndice ILAT |
Régime Fiscal : T.V.A.
Honoraires : 15 % HT d'un loyer annuel HT/HC à la charge du preneur
Information sur le Bail :
Bâtiment A Loyer entrepôt : 52,00 euros/m²/an HT HC (6 ans) Loyer entrepôt : 50,00 euros/m²/an HT HC (9 ans) Taxe Foncière : 5,50 euros/m²/an
Prestations :
- Immeuble indépendant
- Surface RDC : 0 m²
- Surface terrain : 0
- Equipements entrepôts : Dernier bâtiment XXL sur l'axe A1
Bâtiment certifié BREEAM et HQE
PC et ICPE obtenus en 02/2022
Bâtiment indépendant
Site clos et sécurisé
Local gardien à l'entrée du site
STRUCTURE :
Structure béton
Photovoltaïques sur le toit
Hauteur libre 12 m
Charge au sol : 5 t/m²
Parkings VL / PL
EQUIPEMENTS :
120 portes à quai - Bâtiment A
Rampe d'accès
Hauteur libre 10 m
Aire de manoeuvre de 35 m
Sprinkler type ESFR
RIA - ICPE :
- Autorisations : 1510,4331
- Déclarations : 2910,2925,4320,4321
- Bâtiment classe :A
Accessibilité:
Autoroute A1 (accès direct) raccordement à la RN31/E46 et la DRD 934
SNCF SNCF : Gare TGV Haute Picardie sur la commune de Estrées-Deniécourt à 46 km
SNCF Gare TGV de Paris-Charles-de-Gaulle à 69 km
Aeroport Paris Roissy-Charles-de-Gaulle (69 km)
Les informations sur les risques auxquels ce bien est exposé sont disponibles sur le site Géorisques : www.georisques.gouv.fr
Voir plus
Afficher les consommations énergétiques
Favoris
Exporter
Appeler
Contacter
Signaler cette annonce
