L’agence CBRE Lille conseille et accompagne les chefs d’entreprise dans leurs projets immobiliers quels que soient leur taille et leur secteur d’activité. Spécialistes de la transaction de bureaux, ...
En savoir plus

11 331 m²
HT HC
Location activité/entrepôt - 11331 m²
Fretin (59273)
Dernière mise à jour : Hier
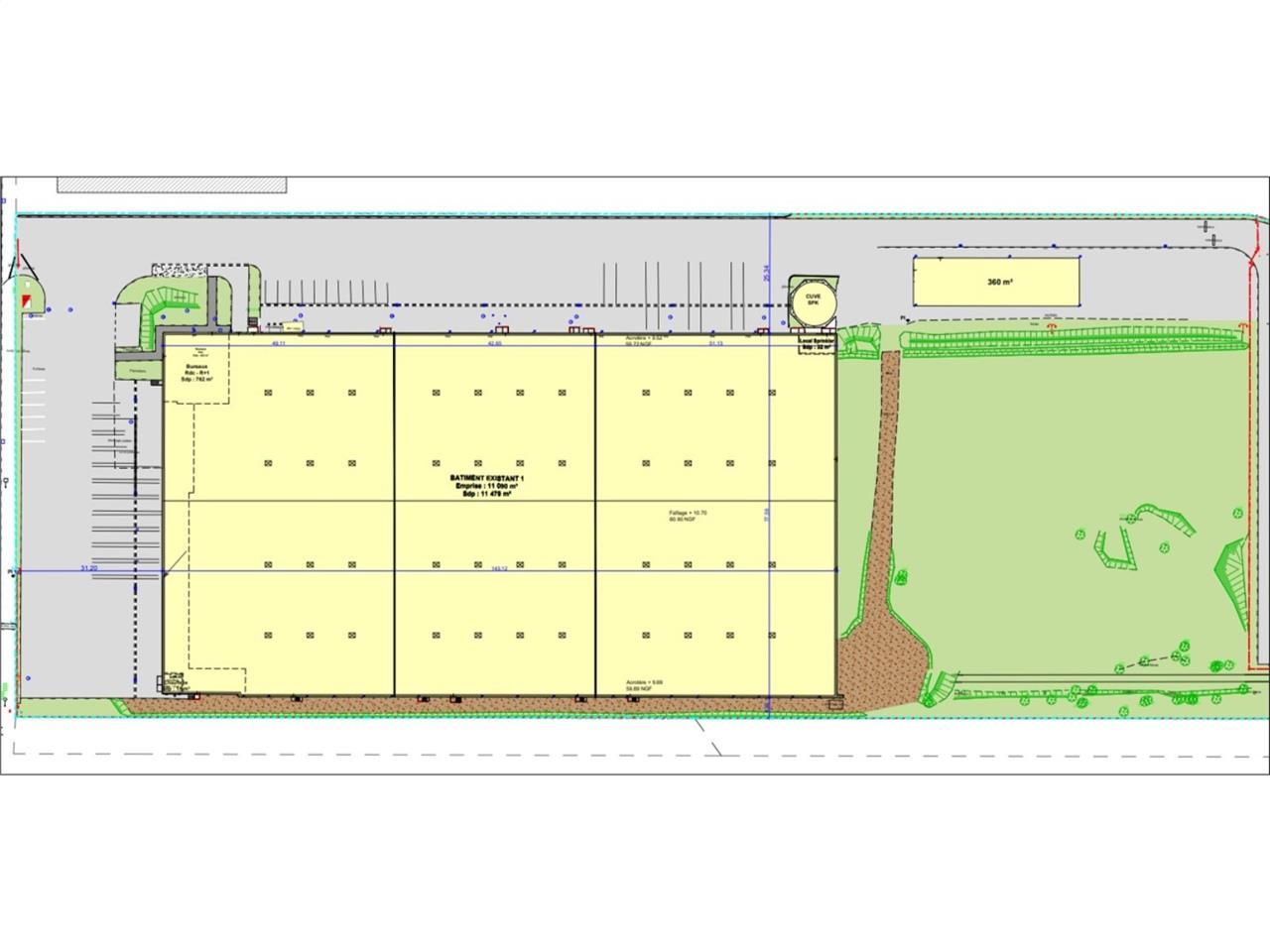
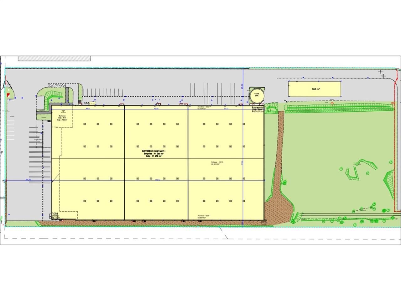
CBRE Lille spécialiste de l'immobilier d'entreprise, vous propose à la location un entrepôt logistique indépendant de 11 479 m² idéalement situé au coeur du CRT de Lesquin. Cet ensemble bénéficie de 28 quais PL et 1 porte de plain-pied. Un permis de construire obtenu permet une extension de 4514 m² soit un site potentiel de 15 993 m².
Impôt Foncier : 5 €/m²/an
Régime Fiscal : T.V.A.
Dépôt de garantie : 3 mois de loyer HT/HC
Honoraires : 15% HT du loyer annuel HT/HC à la charge du preneur
Prestations :
Accessibilité:
Metro Wazemmes (1), Montebello (2)
Les informations sur les risques auxquels ce bien est exposé sont disponibles sur le site Géorisques : www.georisques.gouv.fr
| Étage | Type | Surfaces | Dispo | Loyer | Charges | Type de bailRév. annuelle |
|---|---|---|---|---|---|---|
| RDC | Bureaux | 186 | Immédiate | 53 m²/an HT HC | 6 HT/m²/an | 3-6-9 ansIndice ILAT |
| 1 | Entrepôts | 549 | Immédiate | 53 m²/an HT HC | 6 HT/m²/an | 3-6-9 ansIndice ILAT |
| Entrepôts | 10596 | Immédiate | 53 m²/an HT HC | 6 HT/m²/an | 3-6-9 ansIndice ILAT |
Impôt Foncier : 5 €/m²/an
Régime Fiscal : T.V.A.
Dépôt de garantie : 3 mois de loyer HT/HC
Honoraires : 15% HT du loyer annuel HT/HC à la charge du preneur
Prestations :
- Sol béton
- Surface RDC : 186 m²
- Surface terrain : 0
- Haut. libre max. ss poutre : 8,5 m
- Résistance sol : 3 T/m²
- Accès bâtiment : moyens porteurs
gros porteurs - Nbr de portes à quai : 28
- Nbr de portes plain pied : 1
- ICPE :
- Autorisations : 1510,2925
Accessibilité:
Metro Wazemmes (1), Montebello (2)
Les informations sur les risques auxquels ce bien est exposé sont disponibles sur le site Géorisques : www.georisques.gouv.fr
Voir plus
Afficher les consommations énergétiques
Favoris
Exporter
Appeler
Contacter
Signaler cette annonce










