L’agence CBRE Lille conseille et accompagne les chefs d’entreprise dans leurs projets immobiliers quels que soient leur taille et leur secteur d’activité. Spécialistes de la transaction de bureaux, ...
En savoir plus

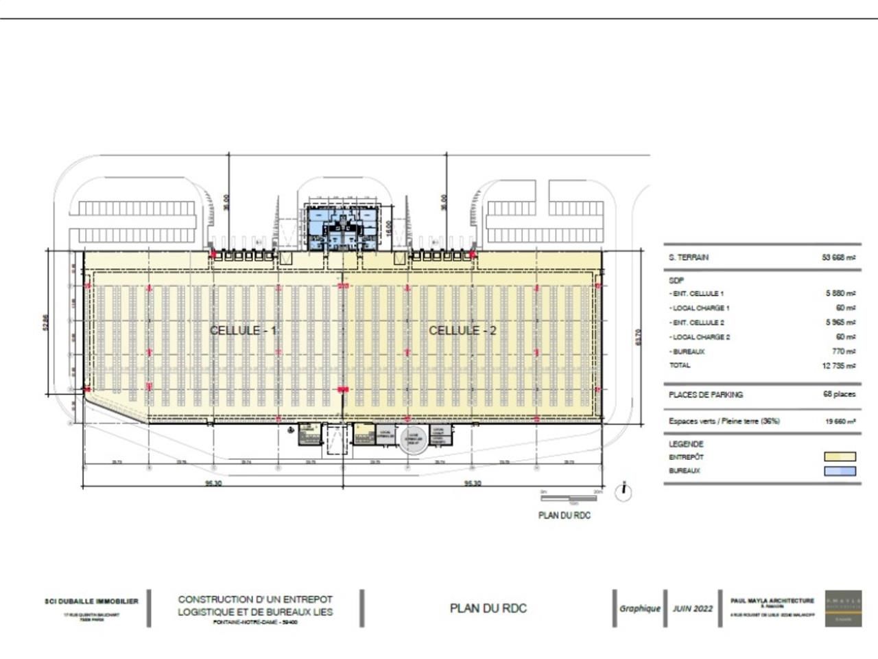
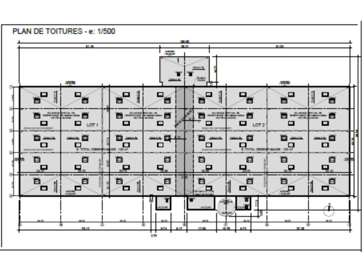
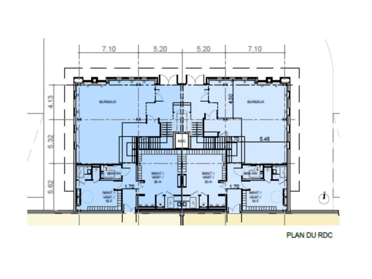
12 735 m²
HT HC
Location activité/entrepôt - 12735 m²
Fontaine-Notre-Dame (59400)
Dernière mise à jour : Hier
CBRE Lille vous propose à l'acquisition ou à la location un entrepôt logistique d'une surface totale de 12 735 m² sur un foncier de 5.3 hectares à Fontaine-Notre-Dame (Cambrai). Cet entrepôt neuf à construire se compose de 2 cellules de stockage, locaux techniques et bureaux. Permis de construire ICPE en cours d'instruction, site disponible 12 mois après début des travaux.
Régime Fiscal : T.V.A.
Dépôt de garantie : 3 mois de loyer HT/HC
Honoraires : 15% HT du loyer annuel HT HC à la charge du preneur
Prestations :
Accessibilité:
Autoroute A2
SNCF Gare TER : Cambrai
Les informations sur les risques auxquels ce bien est exposé sont disponibles sur le site Géorisques : www.georisques.gouv.fr
| Étage | Type | Surfaces | Dispo | Loyer | Charges | Type de bailRév. annuelle |
|---|---|---|---|---|---|---|
| RDC | Entrepôts | 5965 | 12 mois ap. déb. trx | 6-9 ansIndice ILAT | ||
| RDC | Entrepôts | 5880 | 12 mois ap. déb. trx | 6-9 ansIndice ILAT | ||
| RDC | Entrepôts | 770 | 12 mois ap. déb. trx | 6-9 ansIndice ILAT | ||
| RDC | Entrepôts | 60 | 12 mois ap. déb. trx | 6-9 ansIndice ILAT | ||
| RDC | Entrepôts | 60 | 12 mois ap. déb. trx | 6-9 ansIndice ILAT |
Régime Fiscal : T.V.A.
Dépôt de garantie : 3 mois de loyer HT/HC
Honoraires : 15% HT du loyer annuel HT HC à la charge du preneur
Prestations :
- Surface RDC : 12735 m²
- Surface terrain : 53668
- Haut. libre max. ss poutre : 10,63 m
- Résistance sol : 5 T/m²
- Accès bâtiment : aire de manoeuvre
moyens porteurs
gros porteurs - Equipements entrepôts : . Accueil
. Alarme
. Bureaux climatisés
. Contrôle d'accès
. Dalle béton
. RIA
. RIE
. Sprinkler
. 68 places de stationnement extérieur - ICPE :
- Autorisations : 1510,2663,2662,1530,1532,2925
- Ossature : Structure Béton
- Couverture : Bac acier isolé étanchéité multicouche
Accessibilité:
Autoroute A2
SNCF Gare TER : Cambrai
Les informations sur les risques auxquels ce bien est exposé sont disponibles sur le site Géorisques : www.georisques.gouv.fr
Voir plus
Afficher les consommations énergétiques
Favoris
Exporter
Appeler
Contacter
Signaler cette annonce



