A l’appui d’un réseau leader à l’international, I&L Solutions est une équipe de plus de 70 professionnels spécialisés en immobilier Logistique et Industriel au service des investisseurs, des propri ...
En savoir plus

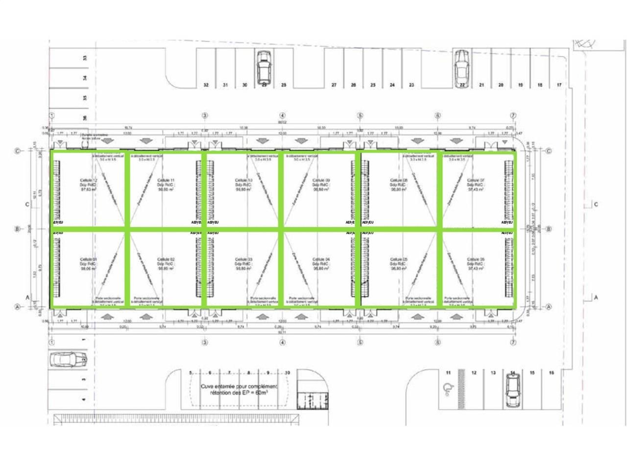
1 750 m² divisible dès 144 m²
Activité/Entrepôt à vendre - 1750 m²
Saint-Fargeau-Ponthierry (77310)
Dernière mise à jour : Il y a 4 mois
CBRE vous propose à vendre des cellules d'activités neuves situées au sein de la ZAC de la Mare aux Loups sur la commune de Saint-Fargeau-Ponthierry dans le département de Seine-et-Marne (77). Localisation idéale, accessible depuis Paris via l'autoroute A6 et à proximité immédiate de la Départementale D607, plusieurs lignes de bus desservent efficacement le site. Ce local industriel dispose de 12 portes sectionnelles. Belle surface de 1 749 m² sur une parcelle de 3 750 m². Entrepôt en vente idéal pour le développement de vos activités professionnelles. Disponibilité nous consulter.
Mener à bien son projet d'implantation pour une activité industrielle doit passer par des locaux adaptés à ses besoins. Si cet entrepôt/local d'activités à vendre dans le 77 vous intéresse ou si vous souhaitez obtenir plus de renseignements, n'hésitez pas à me contacter aujourd'hui pour organiser une visite et bénéficier de toutes les informations nécessaires pour votreprojet immobilier.
En tant qu'expert en immobilier industriel, je suis à votre disposition pour vous aider à trouver le bien disponible à la vente ou à la location, adapté à vos activités professionnelles et à votre coeur de métier, que ce soit un entrepôt, un local industriel, de stockage ou bien un local d'activités.
Régime Fiscal : T.V.A.
Honoraires : 7% HT du prix de vente à la charge de l'acquéreur
Prestations :
Accessibilité:
Autoroute A6 - N337 - D606
SNCF Ligne R Arrêt "Gare Thiers"
Bus Depuis la gare lignes 3604 ou 3632 Arrêt "ZA Bruxelles"
Les informations sur les risques auxquels ce bien est exposé sont disponibles sur le site Géorisques : www.georisques.gouv.fr
Mener à bien son projet d'implantation pour une activité industrielle doit passer par des locaux adaptés à ses besoins. Si cet entrepôt/local d'activités à vendre dans le 77 vous intéresse ou si vous souhaitez obtenir plus de renseignements, n'hésitez pas à me contacter aujourd'hui pour organiser une visite et bénéficier de toutes les informations nécessaires pour votreprojet immobilier.
En tant qu'expert en immobilier industriel, je suis à votre disposition pour vous aider à trouver le bien disponible à la vente ou à la location, adapté à vos activités professionnelles et à votre coeur de métier, que ce soit un entrepôt, un local industriel, de stockage ou bien un local d'activités.
| Étage | Type | Surfaces | Dispo | Prix(m²) | Charges | Honoraires | Fiscal |
|---|---|---|---|---|---|---|---|
| RDC | Activités | 73,2 | 12 mois ap. déb. trx | 1699,99 m² HT | n.c. | 7% HT du prix de vente à la charge de l'acquéreur | T.V.A. |
| RDC | Activités | 25,6 | 12 mois ap. déb. trx | 1699,99 m² HT | n.c. | 7% HT du prix de vente à la charge de l'acquéreur | T.V.A. |
| 1 | Activités | 47,6 | 12 mois ap. déb. trx | 1699,99 m² HT | n.c. | 7% HT du prix de vente à la charge de l'acquéreur | T.V.A. |
| Total Cellule 02 | Activités | 146,4 | 12 mois ap. déb. trx | 1699,99 m² HT | n.c. | 7% HT du prix de vente à la charge de l'acquéreur | T.V.A. |
| RDC | Activités | 73,2 | 12 mois ap. déb. trx | 1699,99 m² HT | n.c. | 7% HT du prix de vente à la charge de l'acquéreur | T.V.A. |
| RDC | Activités | 25,6 | 12 mois ap. déb. trx | 1699,99 m² HT | n.c. | 7% HT du prix de vente à la charge de l'acquéreur | T.V.A. |
| 1 | Activités | 47,6 | 12 mois ap. déb. trx | 1699,99 m² HT | n.c. | 7% HT du prix de vente à la charge de l'acquéreur | T.V.A. |
| Total Cellule 03 | Activités | 146,4 | 12 mois ap. déb. trx | 1699,99 m² HT | n.c. | 7% HT du prix de vente à la charge de l'acquéreur | T.V.A. |
| RDC | Activités | 73,2 | 12 mois ap. déb. trx | 1699,99 m² HT | n.c. | 7% HT du prix de vente à la charge de l'acquéreur | T.V.A. |
| RDC | Activités | 25,6 | 12 mois ap. déb. trx | 1699,99 m² HT | n.c. | 7% HT du prix de vente à la charge de l'acquéreur | T.V.A. |
| 1 | Activités | 47,6 | 12 mois ap. déb. trx | 1699,99 m² HT | n.c. | 7% HT du prix de vente à la charge de l'acquéreur | T.V.A. |
| Total Cellule 04 | Activités | 146,4 | 12 mois ap. déb. trx | 1699,99 m² HT | n.c. | 7% HT du prix de vente à la charge de l'acquéreur | T.V.A. |
| RDC | Activités | 73,2 | 12 mois ap. déb. trx | 1699,99 m² HT | n.c. | 7% HT du prix de vente à la charge de l'acquéreur | T.V.A. |
| RDC | Activités | 25,6 | 12 mois ap. déb. trx | 1699,99 m² HT | n.c. | 7% HT du prix de vente à la charge de l'acquéreur | T.V.A. |
| 1 | Activités | 47,6 | 12 mois ap. déb. trx | 1699,99 m² HT | n.c. | 7% HT du prix de vente à la charge de l'acquéreur | T.V.A. |
| Total Cellule 05 | Activités | 146,4 | 12 mois ap. déb. trx | 1699,99 m² HT | n.c. | 7% HT du prix de vente à la charge de l'acquéreur | T.V.A. |
| RDC | Activités | 73,2 | 12 mois ap. déb. trx | 1699,99 m² HT | n.c. | 7% HT du prix de vente à la charge de l'acquéreur | T.V.A. |
| RDC | Activités | 25,6 | 12 mois ap. déb. trx | 1699,99 m² HT | n.c. | 7% HT du prix de vente à la charge de l'acquéreur | T.V.A. |
| 1 | Activités | 47,6 | 12 mois ap. déb. trx | 1699,99 m² HT | n.c. | 7% HT du prix de vente à la charge de l'acquéreur | T.V.A. |
| Total Cellule 08 | Activités | 146,4 | 12 mois ap. déb. trx | 1699,99 m² HT | n.c. | 7% HT du prix de vente à la charge de l'acquéreur | T.V.A. |
| RDC | Activités | 73,2 | 12 mois ap. déb. trx | 1699,99 m² HT | n.c. | 7% HT du prix de vente à la charge de l'acquéreur | T.V.A. |
| RDC | Activités | 25,6 | 12 mois ap. déb. trx | 1699,99 m² HT | n.c. | 7% HT du prix de vente à la charge de l'acquéreur | T.V.A. |
| 1 | Activités | 47,6 | 12 mois ap. déb. trx | 1699,99 m² HT | n.c. | 7% HT du prix de vente à la charge de l'acquéreur | T.V.A. |
| Total Cellule 09 | Activités | 146,4 | 12 mois ap. déb. trx | 1699,99 m² HT | n.c. | 7% HT du prix de vente à la charge de l'acquéreur | T.V.A. |
| RDC | Activités | 73,2 | 12 mois ap. déb. trx | 1699,99 m² HT | n.c. | 7% HT du prix de vente à la charge de l'acquéreur | T.V.A. |
| RDC | Activités | 25,6 | 12 mois ap. déb. trx | 1699,99 m² HT | n.c. | 7% HT du prix de vente à la charge de l'acquéreur | T.V.A. |
| 1 | Activités | 47,6 | 12 mois ap. déb. trx | 1699,99 m² HT | n.c. | 7% HT du prix de vente à la charge de l'acquéreur | T.V.A. |
| Total Cellule 10 | Activités | 146,4 | 12 mois ap. déb. trx | 1699,99 m² HT | n.c. | 7% HT du prix de vente à la charge de l'acquéreur | T.V.A. |
| RDC | Activités | 73,2 | 12 mois ap. déb. trx | 1699,99 m² HT | n.c. | 7% HT du prix de vente à la charge de l'acquéreur | T.V.A. |
| RDC | Activités | 25,6 | 12 mois ap. déb. trx | 1699,99 m² HT | n.c. | 7% HT du prix de vente à la charge de l'acquéreur | T.V.A. |
| 1 | Activités | 47,6 | 12 mois ap. déb. trx | 1699,99 m² HT | n.c. | 7% HT du prix de vente à la charge de l'acquéreur | T.V.A. |
| Total Cellule 11 | Activités | 146,4 | 12 mois ap. déb. trx | 1699,99 m² HT | n.c. | 7% HT du prix de vente à la charge de l'acquéreur | T.V.A. |
| RDC | Activités | 73,19 | 12 mois ap. déb. trx | 1699,99 m² HT | n.c. | 7% HT du prix de vente à la charge de l'acquéreur | T.V.A. |
| RDC | Activités | 25,44 | 12 mois ap. déb. trx | 1699,99 m² HT | n.c. | 7% HT du prix de vente à la charge de l'acquéreur | T.V.A. |
| 1 | Activités | 46,74 | 12 mois ap. déb. trx | 1699,99 m² HT | n.c. | 7% HT du prix de vente à la charge de l'acquéreur | T.V.A. |
| Total Cellule 12 | Activités | 145,37 | 12 mois ap. déb. trx | 1699,99 m² HT | n.c. | 7% HT du prix de vente à la charge de l'acquéreur | T.V.A. |
| RDC | Activités | 72,53 | 12 mois ap. déb. trx | 1699,99 m² HT | n.c. | 7% HT du prix de vente à la charge de l'acquéreur | T.V.A. |
| RDC | Activités | 25,53 | 12 mois ap. déb. trx | 1699,99 m² HT | n.c. | 7% HT du prix de vente à la charge de l'acquéreur | T.V.A. |
| 1 | Activités | 47 | 12 mois ap. déb. trx | 1699,99 m² HT | n.c. | 7% HT du prix de vente à la charge de l'acquéreur | T.V.A. |
| Total Cellule 01 | Activités | 145,06 | 12 mois ap. déb. trx | 1699,99 m² HT | n.c. | 7% HT du prix de vente à la charge de l'acquéreur | T.V.A. |
| RDC | Activités | 72,05 | 12 mois ap. déb. trx | 1699,99 m² HT | n.c. | 7% HT du prix de vente à la charge de l'acquéreur | T.V.A. |
| RDC | Activités | 25,38 | 12 mois ap. déb. trx | 1699,99 m² HT | n.c. | 7% HT du prix de vente à la charge de l'acquéreur | T.V.A. |
| 1 | Activités | 46,67 | 12 mois ap. déb. trx | 1699,99 m² HT | n.c. | 7% HT du prix de vente à la charge de l'acquéreur | T.V.A. |
| Total Cellule 06 | Activités | 144,1 | 12 mois ap. déb. trx | 1699,99 m² HT | n.c. | 7% HT du prix de vente à la charge de l'acquéreur | T.V.A. |
| RDC | Activités | 72,05 | 12 mois ap. déb. trx | 1699,99 m² HT | n.c. | 7% HT du prix de vente à la charge de l'acquéreur | T.V.A. |
| RDC | Activités | 25,38 | 12 mois ap. déb. trx | 1699,99 m² HT | n.c. | 7% HT du prix de vente à la charge de l'acquéreur | T.V.A. |
| 1 | Activités | 46,67 | 12 mois ap. déb. trx | 1699,99 m² HT | n.c. | 7% HT du prix de vente à la charge de l'acquéreur | T.V.A. |
| Total Cellule 07 | Activités | 144,1 | 12 mois ap. déb. trx | 1699,99 m² HT | n.c. | 7% HT du prix de vente à la charge de l'acquéreur | T.V.A. |
Régime Fiscal : T.V.A.
Honoraires : 7% HT du prix de vente à la charge de l'acquéreur
Prestations :
- Surface parcelle: 3 750 m²
- Portes sectionnelles : 1 par lot
- Toiture bac acier isolé
- Structure métallique
- Bardage double peau
- Normes RT 2012
- Résistance dalle 3T/m²
- Hauteur sous plafond : 7 mètres
- Porte sectionnelle de plain-pied : 3m x 3,5m
- Surface RDC : 1181,95 m²
- Surface terrain : 0
Accessibilité:
Autoroute A6 - N337 - D606
SNCF Ligne R Arrêt "Gare Thiers"
Bus Depuis la gare lignes 3604 ou 3632 Arrêt "ZA Bruxelles"
Les informations sur les risques auxquels ce bien est exposé sont disponibles sur le site Géorisques : www.georisques.gouv.fr
Voir plus
Afficher les consommations énergétiques
Favoris
Exporter
Appeler
Contacter
Signaler cette annonce
