A l’appui d’un réseau leader à l’international, I&L Solutions est une équipe de plus de 70 professionnels spécialisés en immobilier Logistique et Industriel au service des investisseurs, des propri ...
En savoir plus

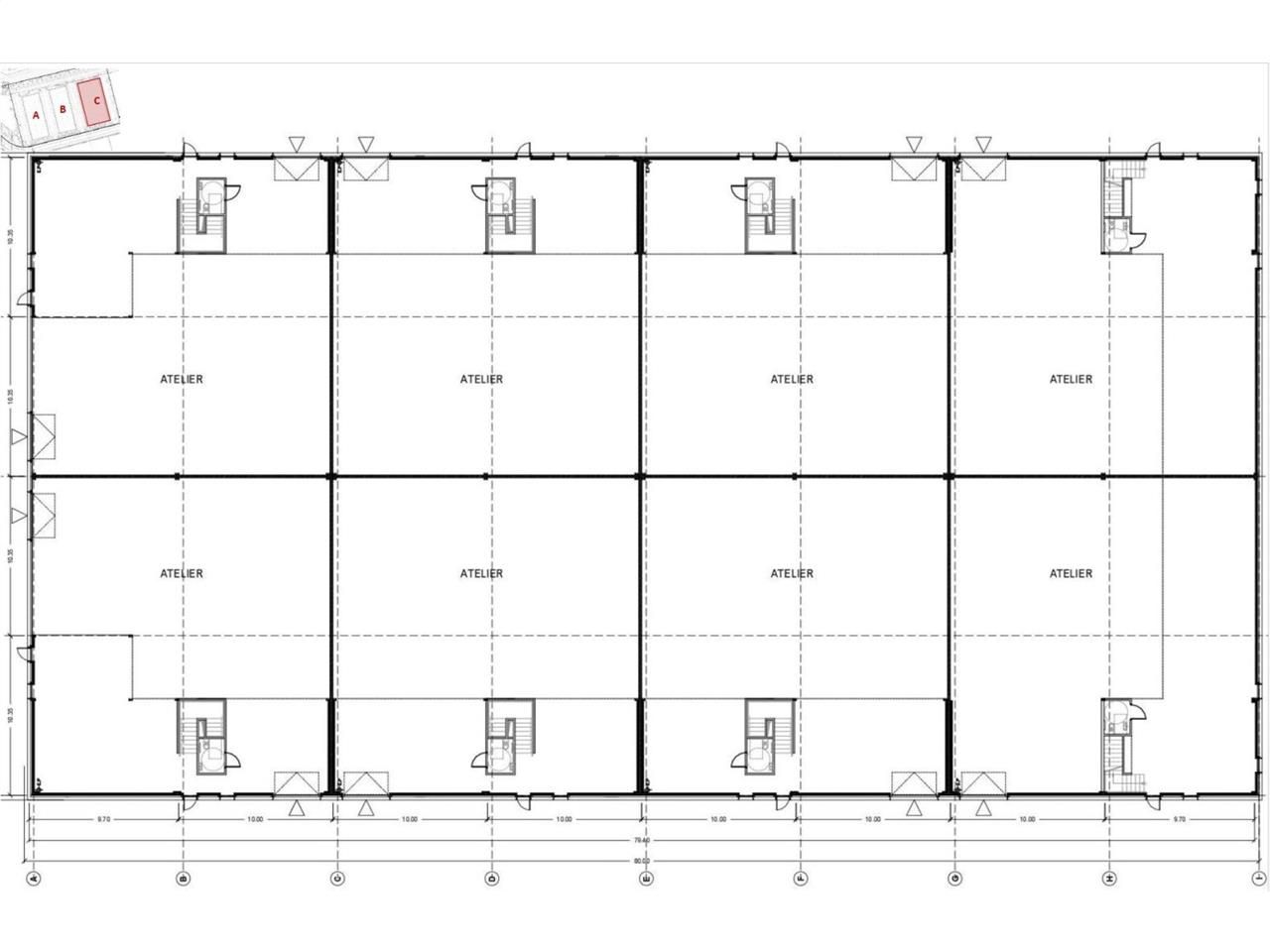
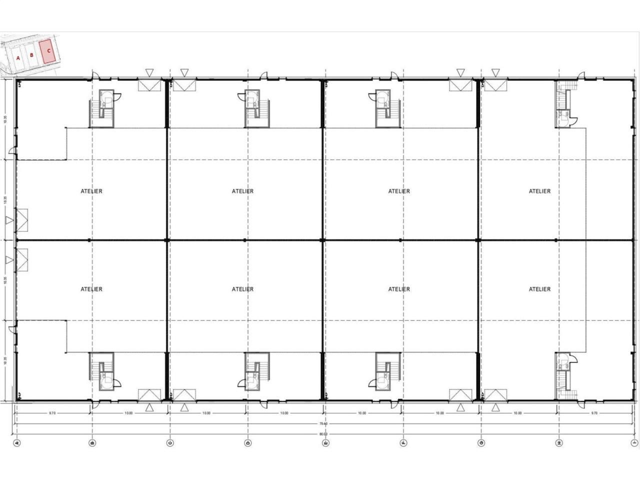
4 228 m² divisible dès 519 m²
Prix sur demande
Activité/Entrepôt à vendre - 4228 m²
Persan (95340)
Dernière mise à jour : Il y a 2 mois
CBRE vous propose à vendre, des cellules neuves d'activités situées sur la commune de Persan dans le département du Val d'Oise (95). A proximité de l'autoroute A16, de la départementale D4 et sur la ligne H du RER d'Ile-de-France. Elles disposent d'une aire de manoeuvre ainsi que d'emplacements de parking. Belle surface de 4228 m² divisibles à partir de 519 m². Entrepôt en vente idéal pour le développement de vos activités professionnelles. Disponibilité mars 2027.
Mener à bien son projet d'implantation pour une activité industrielle doit passer par des locaux adaptés à ses besoins. Si cet entrepôt/local d'activités à vendre dans le 95 vous intéresse ou si vous souhaitez obtenir
plus de renseignements, n'hésitez pas à me contacter aujourd'hui pour organiser une visite et bénéficier de toutes les informations nécessaires pour votre projet immobilier.
En tant qu'expert en immobilier industriel, je suis à votre disposition pour vous aider à trouver le bien disponible à la vente ou à la location, adapté à vos activités professionnelles et à votre coeur de métier, que
ce soit un entrepôt, un local industriel, de stockage ou bien un local d'activités.
Régime Fiscal : Droits d'enregistrement
Honoraires : A la charge de l'acquéreur
Prestations :
Accessibilité:
Transilien Chambly (SNCF), Persan-Beaumont (H)
Autoroute A16
Route D4
Les informations sur les risques auxquels ce bien est exposé sont disponibles sur le site Géorisques : www.georisques.gouv.fr
Mener à bien son projet d'implantation pour une activité industrielle doit passer par des locaux adaptés à ses besoins. Si cet entrepôt/local d'activités à vendre dans le 95 vous intéresse ou si vous souhaitez obtenir
plus de renseignements, n'hésitez pas à me contacter aujourd'hui pour organiser une visite et bénéficier de toutes les informations nécessaires pour votre projet immobilier.
En tant qu'expert en immobilier industriel, je suis à votre disposition pour vous aider à trouver le bien disponible à la vente ou à la location, adapté à vos activités professionnelles et à votre coeur de métier, que
ce soit un entrepôt, un local industriel, de stockage ou bien un local d'activités.
| Étage | Type | Surfaces | Dispo | Prix(m²) | Charges | Honoraires | Fiscal |
|---|---|---|---|---|---|---|---|
| RDC | Activités | 405 | Mars 2027 | n.c. | n.c. | A la charge de l'acquéreur | Droits d'enregistrement |
| 1 | Bureaux | 141 | Mars 2027 | n.c. | n.c. | A la charge de l'acquéreur | Droits d'enregistrement |
| Total Cellule C7 | Activités | 546 | Mars 2027 | n.c. | n.c. | A la charge de l'acquéreur | Droits d'enregistrement |
| RDC | Activités | 405 | Mars 2027 | n.c. | n.c. | A la charge de l'acquéreur | Droits d'enregistrement |
| 1 | Bureaux | 141 | Mars 2027 | n.c. | n.c. | A la charge de l'acquéreur | Droits d'enregistrement |
| Total Cellule C8 | Activités | 546 | Mars 2027 | n.c. | n.c. | A la charge de l'acquéreur | Droits d'enregistrement |
| RDC | Activités | 390 | Mars 2027 | n.c. | n.c. | A la charge de l'acquéreur | Droits d'enregistrement |
| 1 | Bureaux | 140 | Mars 2027 | n.c. | n.c. | A la charge de l'acquéreur | Droits d'enregistrement |
| Total Cellule C1 | Activités | 530 | Mars 2027 | n.c. | n.c. | A la charge de l'acquéreur | Droits d'enregistrement |
| RDC | Activités | 390 | Mars 2027 | n.c. | n.c. | A la charge de l'acquéreur | Droits d'enregistrement |
| 1 | Bureaux | 140 | Mars 2027 | n.c. | n.c. | A la charge de l'acquéreur | Droits d'enregistrement |
| Total Cellule C2 | Activités | 530 | Mars 2027 | n.c. | n.c. | A la charge de l'acquéreur | Droits d'enregistrement |
| RDC | Activités | 403 | Mars 2027 | n.c. | n.c. | A la charge de l'acquéreur | Droits d'enregistrement |
| 1 | Bureaux | 116 | Mars 2027 | n.c. | n.c. | A la charge de l'acquéreur | Droits d'enregistrement |
| Total Cellule C3 | Activités | 519 | Mars 2027 | n.c. | n.c. | A la charge de l'acquéreur | Droits d'enregistrement |
| RDC | Activités | 403 | Mars 2027 | n.c. | n.c. | A la charge de l'acquéreur | Droits d'enregistrement |
| 1 | Bureaux | 116 | Mars 2027 | n.c. | n.c. | A la charge de l'acquéreur | Droits d'enregistrement |
| Total Cellule C4 | Activités | 519 | Mars 2027 | n.c. | n.c. | A la charge de l'acquéreur | Droits d'enregistrement |
| RDC | Activités | 403 | Mars 2027 | n.c. | n.c. | A la charge de l'acquéreur | Droits d'enregistrement |
| 1 | Bureaux | 116 | Mars 2027 | n.c. | n.c. | A la charge de l'acquéreur | Droits d'enregistrement |
| Total Cellule C5 | Activités | 519 | Mars 2027 | n.c. | n.c. | A la charge de l'acquéreur | Droits d'enregistrement |
| RDC | Activités | 403 | Mars 2027 | n.c. | n.c. | A la charge de l'acquéreur | Droits d'enregistrement |
| 1 | Bureaux | 116 | Mars 2027 | n.c. | n.c. | A la charge de l'acquéreur | Droits d'enregistrement |
| Total Cellule C6 | Activités | 519 | Mars 2027 | n.c. | n.c. | A la charge de l'acquéreur | Droits d'enregistrement |
Régime Fiscal : Droits d'enregistrement
Honoraires : A la charge de l'acquéreur
Prestations :
- VEFA
- Garantie décennale sur l'ouvrage conférée aux acquéreurs
- PARKING :
- 12 emplacements par cellule
- LES EXTERIEURS :
- Voirie lourde pour les aires de manoeuvre et de circulation
- Voirie légère pour les emplacements de stationnement
- Circulation piétonne PMR
- Fourreaux en attente pour rechargement de véhicules électriques
- Espace deux roues couvert
- LES FACADES :
- ; Bardage double peau isolé
- Soubassement brique
- Menuiserie double vitrage à rupture de pont thermique et châssis vitrés
- Toiture composée d'une isolation ainsi que d'un bac acier étanchéité multicouche, lanterneau de désenfumage suivant réglementation
- Eclairage de façade
- ACTIVITES :
- Hauteur libre de 7,6 m et 4,5 m sous mezzanine
- Porte sectionnelle de 3,5 m (h)x3m (l) de plain-pied
- Porte sectionnelle à quai en option
- Electricité : 36 KVA (380V) (Tarif jaune en option)
- Dallage en béton surfacé quartz 3T/m²
- Murs mitoyens en parpaing
- Skydôme
- Eclairage industriel
- Arrivée d'eau et évacuation en attente
- Escalier hélicoïdale métallique
- MEZZANINE :
- Plancher béton 350 kg/m²
- Garde-corps métallique
- Accès par escalier métallique
- Skydôme de désenfumage
- Fenêtre aluminium oscillo-battante
- Immeuble indépendant
- Surface RDC : 3202 m²
- Surface terrain : 0
Accessibilité:
Transilien Chambly (SNCF), Persan-Beaumont (H)
Autoroute A16
Route D4
Les informations sur les risques auxquels ce bien est exposé sont disponibles sur le site Géorisques : www.georisques.gouv.fr
Voir plus
Afficher les consommations énergétiques
Favoris
Exporter
Appeler
Contacter
Signaler cette annonce










