L’agence CBRE Nantes conseille et accompagne les chefs d’entreprise dans leurs projets immobiliers quels que soient leur taille et leur secteur d’activité. Spécialistes de la transaction de bureaux ...
En savoir plus

626 m² divisible dès 209 m²
Activité/Entrepôt à vendre - 626 m²
Grandchamps-des-Fontaines (44119)
Dernière mise à jour : Il y a 23 jours
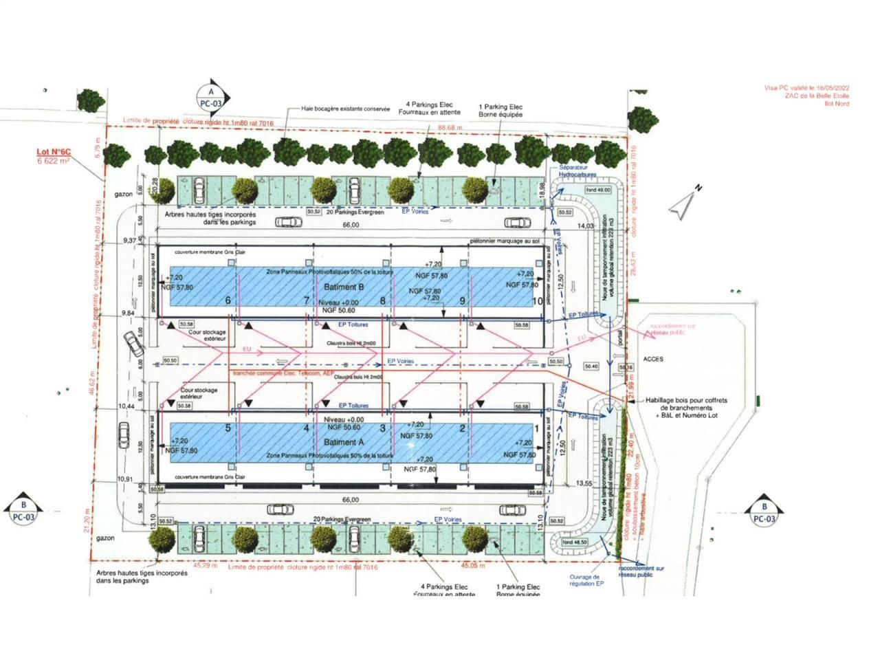
Dans une zone d'activités au nord de l'agglomération, CBRE vous proposed es cellules d'activités neuves à vendre. Les locaux sont divisibles et livrés brut de béton fluides en attente. Chaque cellule dispose de places de parking privatives, d'une surface de stockage et d'une surface en mezzanine pour l'aménagement de bureaux. Rare sur ce type de programme, chaque cellule comprend une surface de stockage extérieure privative !
Situé au sein d'une zone d'activité d'activités proche des axes routiers majeurs de l'agglomération, ce site offre un emplacement stratégique pour le développement d'une activité commerciale. Ce parc d'activités proposent des cellules neuves avec une grande modularité de surfaces, idéales pour une activité artisanale, TPE et PME.
Régime Fiscal : T.V.A.
Honoraires : 5% HT du prix de vente à la charge de l'acquéreur
Prestations :
Accessibilité:
Route N137, axe Nantes/Rennes à 10km
SNCF Gare SNCF à 24 km
Aeroport Aéroport Nantes Atlantique à 28 km
Les informations sur les risques auxquels ce bien est exposé sont disponibles sur le site Géorisques : www.georisques.gouv.fr
Situé au sein d'une zone d'activité d'activités proche des axes routiers majeurs de l'agglomération, ce site offre un emplacement stratégique pour le développement d'une activité commerciale. Ce parc d'activités proposent des cellules neuves avec une grande modularité de surfaces, idéales pour une activité artisanale, TPE et PME.
| Étage | Type | Surfaces | Dispo | Prix(m²) | Charges | Honoraires | Fiscal |
|---|---|---|---|---|---|---|---|
| R1 | Activités | 208,7 | 12 mois ap. déb. trx | 1380 m² HD | n.c. | 5% HT du prix de vente à la charge de l'acquéreur | T.V.A. |
| R1 | Activités | 208,7 | 12 mois ap. déb. trx | 1380 m² HD | n.c. | 5% HT du prix de vente à la charge de l'acquéreur | T.V.A. |
| R1 | Activités | 208,7 | 12 mois ap. déb. trx | 1380 m² HD | n.c. | 5% HT du prix de vente à la charge de l'acquéreur | T.V.A. |
Régime Fiscal : T.V.A.
Honoraires : 5% HT du prix de vente à la charge de l'acquéreur
Prestations :
- Bâtiments Neufs
- Locaux livrés brut de béton fluides en attente
- Surface en mezzanine pour stockage ou aménagement de bureaux
- Entrepôt double peau
- Parkings et aire de stockage extérieure privatifs
- Possibilité de regrouper les cellules
- Hauteur à 7.2 m
- Toiture Bac Acier
- Porte sectionnelle 3x3
- Charge au sol : 1.5T/m2 et 250kg/m2 pour la surface mezzanine
- Site clos et fermé par portail électrique
- Immeuble indépendant
- Surface terrain : 0
Accessibilité:
Route N137, axe Nantes/Rennes à 10km
SNCF Gare SNCF à 24 km
Aeroport Aéroport Nantes Atlantique à 28 km
Les informations sur les risques auxquels ce bien est exposé sont disponibles sur le site Géorisques : www.georisques.gouv.fr
Voir plus
Afficher les consommations énergétiques
Favoris
Exporter
Appeler
Contacter
Signaler cette annonce
