Arthur Loyd est implantée depuis 1986 à Orléans, soit 35 ans de présence au quotidien sur le terrain et auprès des acteurs économiques du Loiret.Nous accompagnons les porteurs de projet, quelles qu ...
En savoir plus

726 m² divisible dès 170 m²
HT HC
Location activité/entrepôt - 726 m²
Saint-Denis-en-Val (45560)
Dernière mise à jour : Il y a 1 mois
Cellules d'activités neuves à louer ! de 170 m2 à 190 m2 - Sud Orléans
Sur le sud de la Métropole d'Orléans, sur l'axe passant de la route départementale RD951 (8000 passages VL / jour), Arthur Loyd Orléans vous propose dans un projet en cours de réalisation un ensemble de cellules neuves à usage de bureaux d'activités disponibles et adaptables selon vos besoins :
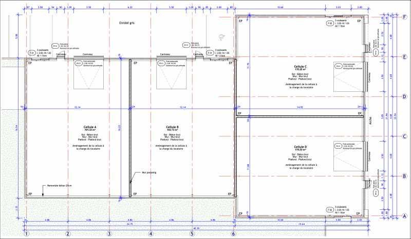
- Cellule A : 191 m2
- Cellule B : 194 m2
- Cellule C : 170 m2
- Cellule D : 170 m2
Ces cellules bénéficient d'une importante aire de stationnement commune d'environ 28 places.
L'ensemble est livré brut de béton et fluides en attentes. Les aménagements seront à étudier selon les besoins et candidatures.
Régime Fiscal : T.V.A.
Dépôt de garantie : 1 trimestre de loyer
Honoraires : 15% HT du loyer annuel HT à la charge du preneur
Prestations :
Accessibilité:
Autoroute A71 - sortie 2 : Olivet
Autoroute A10 / A71 : échangeur autoroutier
RD / RN RD 951
RD / RN RD 2020
Transports en commun Rue Creuse (Bus 5)
Transports en commun Gaston Galloux (Bus 7, 22 et 70)
Les informations sur les risques auxquels ce bien est exposé sont disponibles sur le site Géorisques : www.georisques.gouv.fr
Sur le sud de la Métropole d'Orléans, sur l'axe passant de la route départementale RD951 (8000 passages VL / jour), Arthur Loyd Orléans vous propose dans un projet en cours de réalisation un ensemble de cellules neuves à usage de bureaux d'activités disponibles et adaptables selon vos besoins :
- Cellule A : 191 m2
- Cellule B : 194 m2
- Cellule C : 170 m2
- Cellule D : 170 m2
Ces cellules bénéficient d'une importante aire de stationnement commune d'environ 28 places.
L'ensemble est livré brut de béton et fluides en attentes. Les aménagements seront à étudier selon les besoins et candidatures.
| Étage | Type | Surfaces | Dispo | Loyer | Charges | Type de bailRév. annuelle |
|---|---|---|---|---|---|---|
| RDC | Activités | 191,33 | ILC Indice des Locaux Commerciaux | |||
| Total Cellule CELLULE A | Activités | 191,33 | 1er mars 2026 | 90 m²/an HT HC | Bail commercial 3/6/9ILC Indice des Locaux Commerciaux | |
| RDC | Activités | 193,73 | ILC Indice des Locaux Commerciaux | |||
| Total Cellule CELLULE B | Activités | 193,73 | 1er mars 2026 | 90 m²/an HT HC | Bail commercial 3/6/9ILC Indice des Locaux Commerciaux | |
| RDC | Activités | 170,25 | ILC Indice des Locaux Commerciaux | |||
| Total Cellule CELLULE C | Activités | 170,25 | 1er mars 2026 | 90 m²/an HT HC | Bail commercial 3/6/9ILC Indice des Locaux Commerciaux | |
| RDC | Activités | 170,33 | ILC Indice des Locaux Commerciaux | |||
| Total Cellule CELLULE D | Activités | 170,33 | 1er mars 2026 | 90 m²/an HT HC | Bail commercial 3/6/9ILC Indice des Locaux Commerciaux |
Régime Fiscal : T.V.A.
Dépôt de garantie : 1 trimestre de loyer
Honoraires : 15% HT du loyer annuel HT à la charge du preneur
Prestations :
- Site : clos, portail coulissant.
- Bâtiment : ossature métallique, habillage en bardage métallique, toiture bac acier isolé, mur coupe feu 1h.
- Cellules : portes sectionnelles (3,50 x 3,50), hauteur : 6 m.
- Aire de stationnement commune de 28 places.
- Surface RDC : 725,64 m²
- Surface terrain : 3962
Accessibilité:
Autoroute A71 - sortie 2 : Olivet
Autoroute A10 / A71 : échangeur autoroutier
RD / RN RD 951
RD / RN RD 2020
Transports en commun Rue Creuse (Bus 5)
Transports en commun Gaston Galloux (Bus 7, 22 et 70)
Les informations sur les risques auxquels ce bien est exposé sont disponibles sur le site Géorisques : www.georisques.gouv.fr
Voir plus
Afficher les consommations énergétiques
Localisation et transport aux alentours
Favoris
Exporter
Appeler
Contacter
Signaler cette annonce

