L’agence CBRE Nantes conseille et accompagne les chefs d’entreprise dans leurs projets immobiliers quels que soient leur taille et leur secteur d’activité. Spécialistes de la transaction de bureaux ...
En savoir plus

574 m² divisible dès 274 m²
Activité/Entrepôt à vendre - 574 m²
Dernière mise à jour : Il y a 2 mois
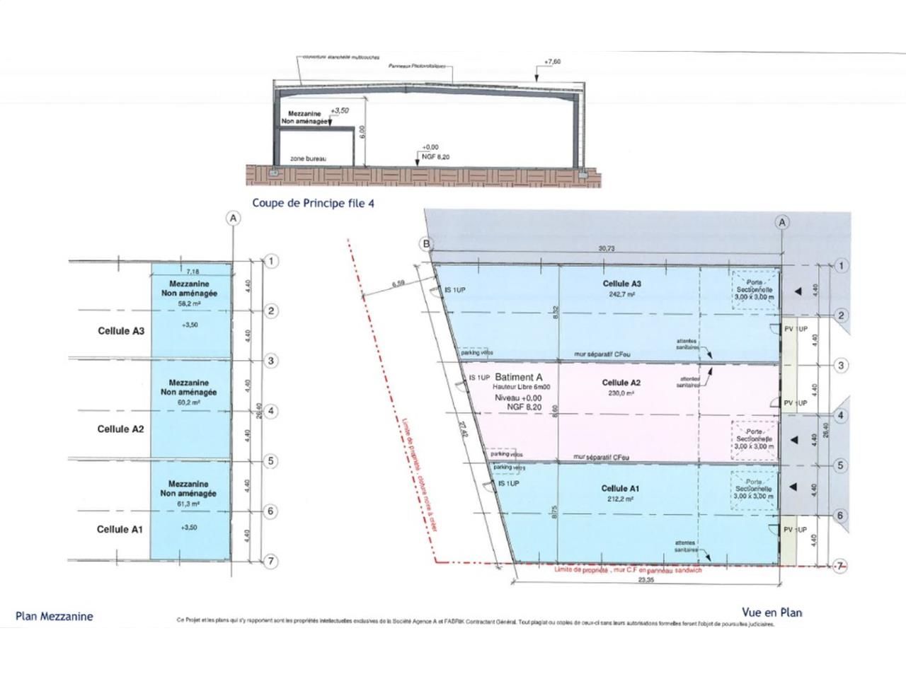
CBRE vous propose à l'achat en VEFA plusieurs cellules d'Activités situées au sein du parc d'activités de Gesvrine, à La Chapelle-sur-Erdre. Cellules neuves livrées brut de béton à partir de 236m². Possibilité de réunir plusieurs cellules.
Une mezzanine avec plancher collaborant accompagne chacune des cellules, ainsi que 2 places de parking.
Livraison brut de béton, fluides en attentes. Ossature métallique avec couverture bac acier et bardage double peau. Terrain bitumé et clôturé avec portail électrique à l'entrée.
Livraison des cellules prévue pour fin 2023.
Régime Fiscal : T.V.A.
Honoraires : 7% du prix de vente HD/HH à la charge de l'acquéreur
Prestations :
Accessibilité:
Bus Babinière (66)
Les informations sur les risques auxquels ce bien est exposé sont disponibles sur le site Géorisques : www.georisques.gouv.fr
Une mezzanine avec plancher collaborant accompagne chacune des cellules, ainsi que 2 places de parking.
Livraison brut de béton, fluides en attentes. Ossature métallique avec couverture bac acier et bardage double peau. Terrain bitumé et clôturé avec portail électrique à l'entrée.
Livraison des cellules prévue pour fin 2023.
| Étage | Type | Surfaces | Dispo | Prix(m²) | Charges | Honoraires | Fiscal |
|---|---|---|---|---|---|---|---|
| MEZ | Activités | 61,3 | Immédiate | n.c. | n.c. | 7% du prix de vente HD/HH à la charge de l'acquéreur | T.V.A. |
| RDC | Activités | 212,2 | Immédiate | n.c. | n.c. | 7% du prix de vente HD/HH à la charge de l'acquéreur | T.V.A. |
| Total Cellule A1 | Activités | 273,5 | Immédiate | 1686,56 m² HD | n.c. | 7% du prix de vente HD/HH à la charge de l'acquéreur | T.V.A. |
| MEZ | Activités | 58,2 | Immédiate | n.c. | n.c. | 7% du prix de vente HD/HH à la charge de l'acquéreur | T.V.A. |
| RDC | Activités | 242,7 | Immédiate | n.c. | n.c. | 7% du prix de vente HD/HH à la charge de l'acquéreur | T.V.A. |
| Total Cellule A3 | Activités | 300,9 | Immédiate | 1683,23 m² HD | n.c. | 7% du prix de vente HD/HH à la charge de l'acquéreur | T.V.A. |
Régime Fiscal : T.V.A.
Honoraires : 7% du prix de vente HD/HH à la charge de l'acquéreur
Prestations :
- Ossature : métallique
- Couverture : Bac Acier
- Bardage : double peau
- Hauteur sous faîtage : 5 mètres
- Résistance au sol : 1.5 tonnes/m²
- Porte sectionnelle : 3x3 plain pied
- Mezzanine : Plancher collaborant
- Transformateur EDF
- Aire de manoeuvre
- Accès Gros Porteurs
- Surface RDC : 454,9 m²
Accessibilité:
Bus Babinière (66)
Les informations sur les risques auxquels ce bien est exposé sont disponibles sur le site Géorisques : www.georisques.gouv.fr
Voir plus
Afficher les consommations énergétiques
Favoris
Exporter
Appeler
Contacter
Signaler cette annonce










