Evolis, votre partenaire en immobilier d’entreprise! Que vous soyez une entreprise, utilisateur de locaux professionnels, investisseur, ou propriétaire, Evolis met à votre service son expertise ...
En savoir plus

10 postes max
Loyer sur demande
Coworking - 10 postes max.
Paris 10 (75010)
Dernière mise à jour : Il y a 2 jours
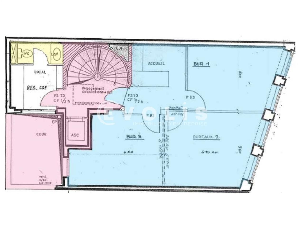
Nous proposons à la location des bureaux prestigieux situés au coeur de Paris, offrant un cadre professionnel exceptionnel. Ces espaces, conçus pour répondre aux exigences des entreprises modernes, allient élégance et fonctionnalité. Profitez d'une adresse de choix pour optimiser votre activité dans un environnement dynamique et inspirant.
Régime Fiscal : T.V.A.
Dépôt de garantie : 3 mois de loyer HT HC
Honoraires : 10% HT du montant du contrat HT à la charge du preneur
Prestations :
Accessibilité:
Bus Poissonnière - Bonne Nouvelle (20, 32, 39)
Métro Bonne Nouvelle (8, 9)
SNCF Paris-Est (Gare SNCF)
Les informations sur les risques auxquels ce bien est exposé sont disponibles sur le site Géorisques : www.georisques.gouv.fr
| Étage | Type | Surfaces | Dispo | Loyer | Charges | Type de bailRév. annuelle |
|---|---|---|---|---|---|---|
| Bureaux | 70 | Immédiate | 350 poste/mois HT CC | Contrat de prestation de servicesILAT Indice des Loyers des Activités Tertiaires |
Régime Fiscal : T.V.A.
Dépôt de garantie : 3 mois de loyer HT HC
Honoraires : 10% HT du montant du contrat HT à la charge du preneur
Prestations :
- Surface aménagée en 1 espace ouvert, 2 bureaux, 1 salle de réunion, kitchenette et sanitaire
- Bureaux lumineux et calmes
- Locaux entièrement refaits à neuf et équipés
- Câblage informatique existant
- Fibre optique dans l'immeuble
- Chauffage électrique
- Contrôle d'accès
- Prestations comprises : mobilier, internet, eau, chauffage, électricité
Accessibilité:
Bus Poissonnière - Bonne Nouvelle (20, 32, 39)
Métro Bonne Nouvelle (8, 9)
SNCF Paris-Est (Gare SNCF)
Les informations sur les risques auxquels ce bien est exposé sont disponibles sur le site Géorisques : www.georisques.gouv.fr
Voir plus
Afficher les consommations énergétiques
Localisation et transport aux alentours
Favoris
Exporter
Appeler
Contacter
Signaler cette annonce










