Evolis, votre partenaire en immobilier d’entreprise! Que vous soyez une entreprise, utilisateur de locaux professionnels, investisseur, ou propriétaire, Evolis met à votre service son expertise ...
En savoir plus

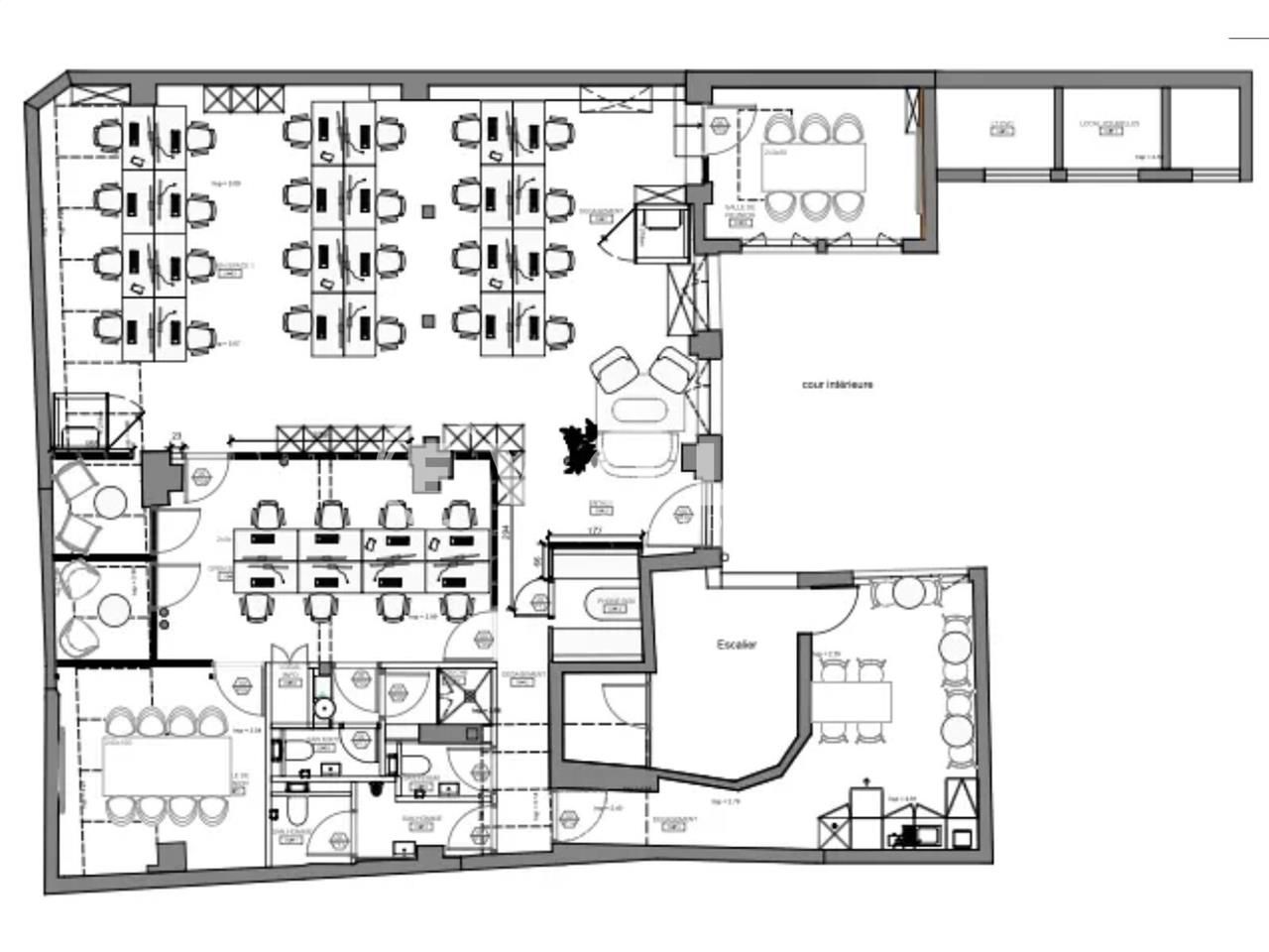
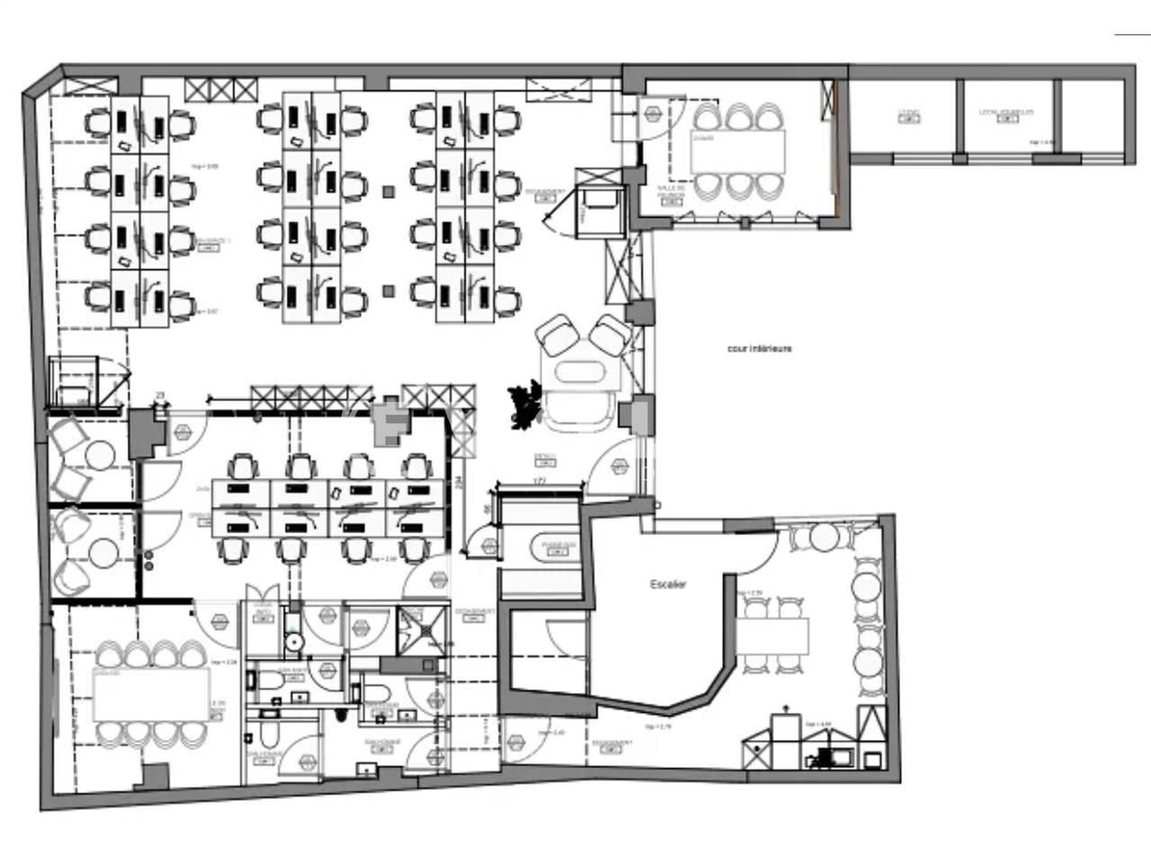
32 postes max
Loyer sur demande
Coworking - 32 postes max.
Paris 10 (75010)
Dernière mise à jour : Il y a 8 jours
Bureaux à louer
Situé dans le 10ème arrondissement de Paris et à proximité immédiate de Gare de l'Est, EVOLIS vous propose à la location une surface de 200 m² pouvant accueillir jusqu'à 32 postes.
Régime Fiscal : T.V.A.
Honoraires : 1 mois de loyer HT CC
Information sur le Bail :
- Le loyer comprend les charges immeubles, les charges privatives, le mobilier, les équipements, la fiscalité, les consommables et les prestations communes La surface indiquée ne prend en compte que la surface privative. Les surfaces de salles de réunion communes, couloirs, sanitaires, cuisine, accueil, et divers espaces communs ne sont pas comptabilisées
Prestations :
Accessibilité:
Bus Gare de l'Est (31, 46, N44, N42, N45, N43, N41, N01, N140, N141, N142, N143, B, N146), Magenta - Saint-Martin (38, 91, N14), Magenta - Gare de l'Est (56), Paris Gare de l'Est (N148), Faubourg Saint-Denis (32)
Métro Gare de l'Est (5, 7), Château d'Eau (4)
RER Gare du Nord (D, B), Gare de l'Est (E)
SNCF Paris-Est (Gare SNCF)
Transilien Paris Gare du Nord (TER), Gare du Nord (TER), Gare de l'Est (TER)
Transilien Gare du Nord (H, K), Gare de l'Est (P)
Les informations sur les risques auxquels ce bien est exposé sont disponibles sur le site Géorisques : www.georisques.gouv.fr
Situé dans le 10ème arrondissement de Paris et à proximité immédiate de Gare de l'Est, EVOLIS vous propose à la location une surface de 200 m² pouvant accueillir jusqu'à 32 postes.
| Étage | Type | Surfaces | Dispo | Loyer | Charges | Type de bailRév. annuelle |
|---|---|---|---|---|---|---|
| RDC | Bureaux | 200 | 1er janvier 2026 | 500 poste/mois HT CC | Contrat de prestation de servicesILAT Indice des Loyers des Activités Tertiaires |
Régime Fiscal : T.V.A.
Honoraires : 1 mois de loyer HT CC
Information sur le Bail :
- Le loyer comprend les charges immeubles, les charges privatives, le mobilier, les équipements, la fiscalité, les consommables et les prestations communes La surface indiquée ne prend en compte que la surface privative. Les surfaces de salles de réunion communes, couloirs, sanitaires, cuisine, accueil, et divers espaces communs ne sont pas comptabilisées
Prestations :
- Accès 24/ 7
- Espace de vie
- Contrôle d'accès
- Internet fibre pro dédiée
- Open spaces
- Bureaux fermeŽs
- Salles de reŽunions
- Espace cuisine équipée
- Espace équipe
- Phones boxes individuelles
- Surface RDC : 200 m²
Accessibilité:
Bus Gare de l'Est (31, 46, N44, N42, N45, N43, N41, N01, N140, N141, N142, N143, B, N146), Magenta - Saint-Martin (38, 91, N14), Magenta - Gare de l'Est (56), Paris Gare de l'Est (N148), Faubourg Saint-Denis (32)
Métro Gare de l'Est (5, 7), Château d'Eau (4)
RER Gare du Nord (D, B), Gare de l'Est (E)
SNCF Paris-Est (Gare SNCF)
Transilien Paris Gare du Nord (TER), Gare du Nord (TER), Gare de l'Est (TER)
Transilien Gare du Nord (H, K), Gare de l'Est (P)
Les informations sur les risques auxquels ce bien est exposé sont disponibles sur le site Géorisques : www.georisques.gouv.fr
Voir plus
Afficher les consommations énergétiques
Localisation et transport aux alentours
Favoris
Exporter
Appeler
Contacter
Signaler cette annonce










