RCG Bordeaux est un cabinet de conseil en immobilier d'entreprise est située au cœur du quartier des Chartrons au 107 cours Balguerie Stuttenberg à Bordeaux. Cette agence propose un large choix de ...
En savoir plus

1 763 m² divisible dès 336 m²
Bureau à vendre - 1763 m²
Pessac (33600)
Dernière mise à jour : Il y a 4 mois
A VENDRE A LOUER - BUREAUX NEUFS 1763 M² DIVISIBLES A PARTIR DE 336 M² - PESSAC EUROPARC
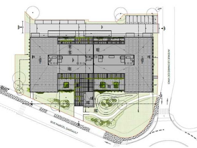
Immeuble INSPIRATIO
A proximité de la rocade et de l'A63, bénéficiant d'une bonne accessibilité et visibilité, RCG vous propose à la vente ou à la location des bureaux neufs au sein du programme INSPIRATIO qui développe 5 542 m2 dans un bâtiment édifié en R+4.
Il propose 3 niveaux à usage de bureaux (R+2, R+3, R+4) construits sur un socle à usage de stationnement (RDC et R+1).
Terrasses privatives du R+2 au R+4.
Impôt Foncier : 15 €/m²/an
Dépôt de garantie : 3 mois de loyer HT/ HC
Honoraires : 5% HT du prix de vente HT à la charge de l'acquéreur
Information sur le Bail :
- Loyer bureaux : 170 euros/m²/an HT HC - Loyer parking couvert : 1.200 euros HT HC/U /an - Loyer parking aérien : 500 euros HT HC/U/an
Prestations :
Accessibilité:
Bus Léonard de Vinci (BUS-24)
Tram Hôpital Haut-Lévêque (TRAMWAY-B)
Autoroute Accès direct à la rocade par la sortie 14
Autoroute Accès direct à l' A63 vers Bayonne
Autoroute Accès A 62 vers Toulouse ( 10 min en voiture )
Aéroport À 10 min de l'aéroport
Les informations sur les risques auxquels ce bien est exposé sont disponibles sur le site Géorisques : www.georisques.gouv.fr
Immeuble INSPIRATIO
A proximité de la rocade et de l'A63, bénéficiant d'une bonne accessibilité et visibilité, RCG vous propose à la vente ou à la location des bureaux neufs au sein du programme INSPIRATIO qui développe 5 542 m2 dans un bâtiment édifié en R+4.
Il propose 3 niveaux à usage de bureaux (R+2, R+3, R+4) construits sur un socle à usage de stationnement (RDC et R+1).
Terrasses privatives du R+2 au R+4.
| Étage | Type | Surfaces | Dispo | Prix(m²) | Charges | Honoraires | Fiscal |
|---|---|---|---|---|---|---|---|
| 4 | Bureaux | 543 | Immédiate | 2850 m² HT | n.c. | 5% HT du prix de vente HT à la charge de l'acquéreur | |
| 4 | Bureaux | 543 | Immédiate | 2850 m² HT | n.c. | 5% HT du prix de vente HT à la charge de l'acquéreur | |
| 4 | Bureaux | 341 | Immédiate | 2850 m² HT | n.c. | 5% HT du prix de vente HT à la charge de l'acquéreur | |
| 4 | Bureaux | 336 | Immédiate | 2850 m² HT | n.c. | 5% HT du prix de vente HT à la charge de l'acquéreur |
Impôt Foncier : 15 €/m²/an
Dépôt de garantie : 3 mois de loyer HT/ HC
Honoraires : 5% HT du prix de vente HT à la charge de l'acquéreur
Information sur le Bail :
- Loyer bureaux : 170 euros/m²/an HT HC - Loyer parking couvert : 1.200 euros HT HC/U /an - Loyer parking aérien : 500 euros HT HC/U/an
Prestations :
- Immeuble neuf code du travail : 535 pers
- Plateaux de bureaux livrés en Open Space, prêts à cloisonner
- Certification BREEAM Very Good
- Une démarche bas carbone
- 2 ascenseurs
- Ventilation double flux / Climatisation réversible (DRV 3 tubes)
- Faux plancher technique - Moquette
- Plafonds laissés apparents pour garder une grande hauteur sous plafond
- Terrasses privatives à chaque étage du R+2 au R+4
- 191 places de parking (17 aériennes + 174 en RDC/R+1) = ratio de 1 place/30m2 de bureaux
- 4 bornes électriques doubles sur le parking aérien, soit 8 places équipées
- 20% de places pré-équipées dans le parking couvert
- 3 locaux vélos au RDC
- Deux vestiaires équipés de casiers / douches au R+1
Accessibilité:
Bus Léonard de Vinci (BUS-24)
Tram Hôpital Haut-Lévêque (TRAMWAY-B)
Autoroute Accès direct à la rocade par la sortie 14
Autoroute Accès direct à l' A63 vers Bayonne
Autoroute Accès A 62 vers Toulouse ( 10 min en voiture )
Aéroport À 10 min de l'aéroport
Les informations sur les risques auxquels ce bien est exposé sont disponibles sur le site Géorisques : www.georisques.gouv.fr
Voir plus
Afficher les consommations énergétiques
Favoris
Exporter
Appeler
Contacter
Signaler cette annonce










