L’agence CBRE Nantes conseille et accompagne les chefs d’entreprise dans leurs projets immobiliers quels que soient leur taille et leur secteur d’activité. Spécialistes de la transaction de bureaux ...
En savoir plus

141 m²
Bureau à vendre - 141 m²
Saint-Herblain (44800)
Dernière mise à jour : Il y a 3 jours
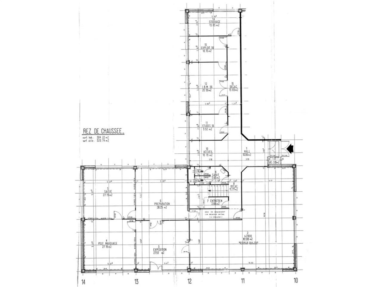
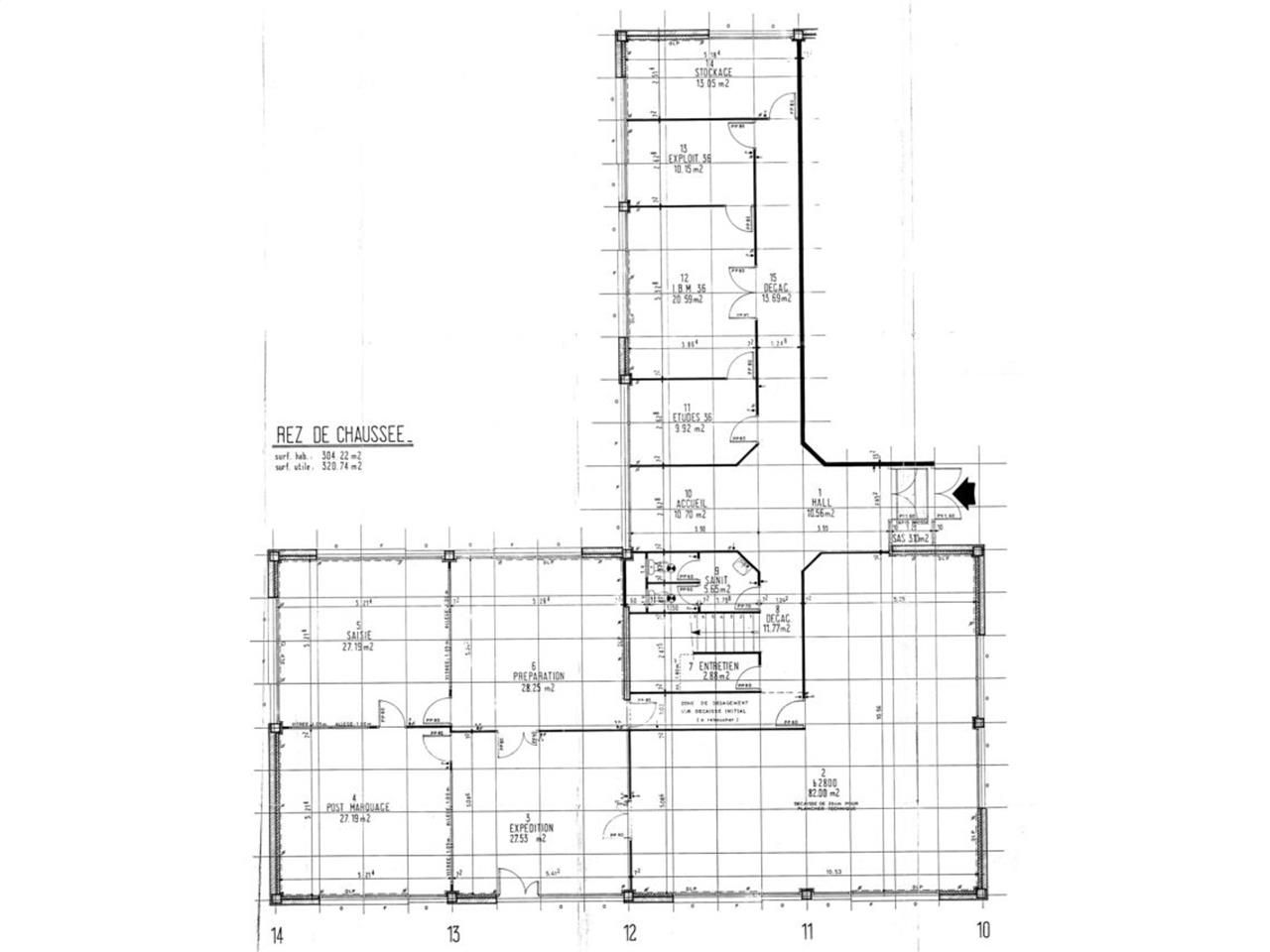
A 2 minutes à pied du Tramway et avec un accès immédiat au périphérique. CBRE NANTES vous propose à la vente une surface de bureaux de 150 m² environ en rez-de-chaussée, entièrement modulable et très économique. L'environnement est très vivant avec de nombreux magasins et services de restauration.
Les locaux bénéficient d'une triple exposition et bénéficieront d'une belle luminosité après travaux. Vous bénéficierez également de 9 parkings aériens.
Impôt Foncier : 24 €/m²/an HT
Régime Fiscal : Droits d'enregistrement
Honoraires : 5% HT du prix de vente à la charge du vendeur
Prestations :
Accessibilité:
Bus Marcel Paul (50, 54, 159) - 73
Tramway Marcel Paul (3)
Route Accès périphérique : porte de Sautron (n°35)
Les informations sur les risques auxquels ce bien est exposé sont disponibles sur le site Géorisques : www.georisques.gouv.fr
Les locaux bénéficient d'une triple exposition et bénéficieront d'une belle luminosité après travaux. Vous bénéficierez également de 9 parkings aériens.
| Étage | Type | Surfaces | Dispo | Prix(m²) | Charges | Honoraires | Fiscal |
|---|---|---|---|---|---|---|---|
| RDC | Bureaux | 140,91 | Immédiate | n.c. | n.c. | 5% HT du prix de vente à la charge du vendeur | Droits d'enregistrement |
| Parkings | Immédiate | n.c. | n.c. | 5% HT du prix de vente à la charge du vendeur | Droits d'enregistrement |
Impôt Foncier : 24 €/m²/an HT
Régime Fiscal : Droits d'enregistrement
Honoraires : 5% HT du prix de vente à la charge du vendeur
Prestations :
- Plateau en bon état
- Facilement aménageable
- Faux plafond
- Murs peints
- Moquette au sol
- Cloisons mobiles
- Salle de réunion
- Sanitaires privatifs
- Prises RJ45, baie de brassage, goulottes
- Ratio parkings élevé (1/16 m²)
- Surface RDC : 140,91 m²
Accessibilité:
Bus Marcel Paul (50, 54, 159) - 73
Tramway Marcel Paul (3)
Route Accès périphérique : porte de Sautron (n°35)
Les informations sur les risques auxquels ce bien est exposé sont disponibles sur le site Géorisques : www.georisques.gouv.fr
Voir plus
Afficher les consommations énergétiques
Favoris
Exporter
Appeler
Contacter
Signaler cette annonce










