Arthur Loyd Bretagne est une société de conseil en immobilier d'entreprise de la métropole brestoise. Spécialiste de l’immobilier d’entreprise sur le Finistère, les Côtes-d’Armor, l’Ille et Vilaine ...
En savoir plus

3 200 m²
Prix sur demande
Bureau à vendre - 3200 m²
Quéven (56530)
Dernière mise à jour : Il y a 2 jours
A LOUER - LOCAL D'ACTIVITE ET BUREAUX DE 3200 M² - QUEVEN
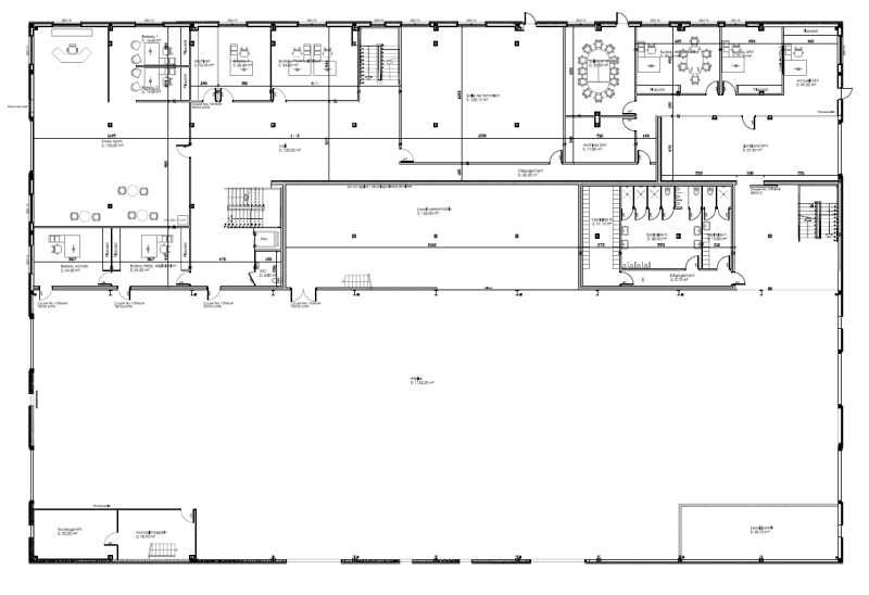
L'agence Arthur Loyd vous propose de découvrir ce local d'activités exceptionnel d'environ 3 200 m², édifié sur une parcelle de 6 860 m². Ce bien immobilier est idéal pour les entreprises recherchant des espaces de bureaux et de stockage de haute qualité.
Caractéristiques Principales :
Bureaux :
1 700 m² répartis sur deux niveaux (rez-de-chaussée et premier étage), offrant des espaces lumineux et fonctionnels.
Entrepôt :
1 500 m² également répartis sur deux niveaux, adaptés au stockage et à la logistique.
Accès :
8 portes sectionnelles facilitant les opérations de chargement/déchargement.
Extérieur :
Site clos, entièrement bitumé, avec de nombreuses places de stationnement.
Localisation :
Accès aisé, à proximité immédiate des grands axes routiers, idéal pour les activités nécessitant une bonne desserte.
Ne manquez pas cette opportunité unique de développer votre activité dans un cadre adapté et bien situé. Contactez-nous dès aujourd'hui pour plus d'informations ou pour organiser une visite.
Le PLU impose 25 % de « terre pleine », cela permet de développer une potentielle extension, le bâtiment actuel fait 2300 m2 au sol sur une parcelle de 6 300 m2. Les longueur et largeur actuelles sont respectivement de 59,76 m et 39,76m.
Prestations :
Les informations sur les risques auxquels ce bien est exposé sont disponibles sur le site Géorisques : www.georisques.gouv.fr
L'agence Arthur Loyd vous propose de découvrir ce local d'activités exceptionnel d'environ 3 200 m², édifié sur une parcelle de 6 860 m². Ce bien immobilier est idéal pour les entreprises recherchant des espaces de bureaux et de stockage de haute qualité.
Caractéristiques Principales :
Bureaux :
1 700 m² répartis sur deux niveaux (rez-de-chaussée et premier étage), offrant des espaces lumineux et fonctionnels.
Entrepôt :
1 500 m² également répartis sur deux niveaux, adaptés au stockage et à la logistique.
Accès :
8 portes sectionnelles facilitant les opérations de chargement/déchargement.
Extérieur :
Site clos, entièrement bitumé, avec de nombreuses places de stationnement.
Localisation :
Accès aisé, à proximité immédiate des grands axes routiers, idéal pour les activités nécessitant une bonne desserte.
Ne manquez pas cette opportunité unique de développer votre activité dans un cadre adapté et bien situé. Contactez-nous dès aujourd'hui pour plus d'informations ou pour organiser une visite.
Le PLU impose 25 % de « terre pleine », cela permet de développer une potentielle extension, le bâtiment actuel fait 2300 m2 au sol sur une parcelle de 6 300 m2. Les longueur et largeur actuelles sont respectivement de 59,76 m et 39,76m.
| Étage | Type | Surfaces | Dispo | Prix(m²) | Charges | Honoraires | Fiscal |
|---|---|---|---|---|---|---|---|
| Bureaux | 1700 | n.c. | n.c. | ||||
| Activités | 1500 | n.c. | n.c. |
Prestations :
- Surface terrain : 6860
Les informations sur les risques auxquels ce bien est exposé sont disponibles sur le site Géorisques : www.georisques.gouv.fr
Voir plus
Afficher les consommations énergétiques
Favoris
Exporter
Appeler
Contacter
Signaler cette annonce

