

310 m²
Bureau à vendre - 310 m²
Paris 15 (75015)
Dernière mise à jour : Hier
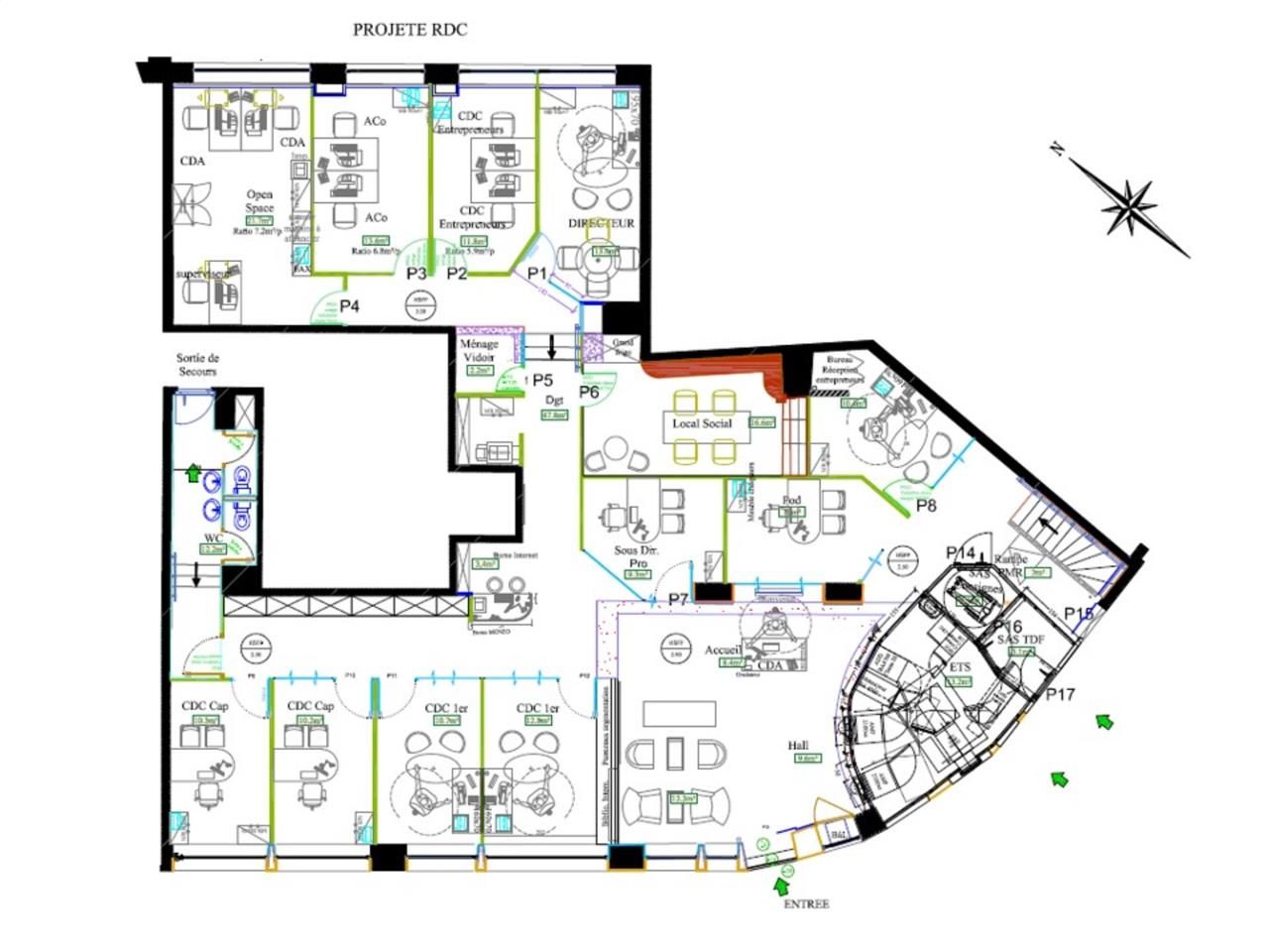
CBRE vous propose à la vente un local commercial/bureaux d'environ 310 m², situé dans un immeuble d'angle au coeur du 15e arrondissement de Paris, à proximité immédiate des transports. Bénéficiant d'un grand linéaire de façade, de deux accès sur rue, d'un accès PMR, de la climatisation réversible, du double vitrage et d'une belle hauteur sous plafond, ce bien traversant est ERPABLE et fonctionnel. Idéal pour tout type d'activité recevant du public.
Régime Fiscal : Droits d'enregistrement
Honoraires : A la charge de l'acquéreur
Prestations :
Accessibilité:
Bus HOPITAL DE VAUGIRARD (39, 80), CONVENTION - VAUGIRARD (62)
Metro Convention (12)
Tramway PORTE DE VERSAILLES-PARC DES E (T2), PORTE DE VERSAILLES - PARC DES (T3, T3a)
Les informations sur les risques auxquels ce bien est exposé sont disponibles sur le site Géorisques : www.georisques.gouv.fr
| Étage | Type | Surfaces | Dispo | Prix(m²) | Charges | Honoraires | Fiscal |
|---|---|---|---|---|---|---|---|
| SS | Bureaux | 40 | Immédiate | n.c. | 42 m²/an HT | A la charge de l'acquéreur | Droits d'enregistrement |
| RDC | Bureaux | 270 | Immédiate | n.c. | 42 m²/an HT | A la charge de l'acquéreur | Droits d'enregistrement |
Régime Fiscal : Droits d'enregistrement
Honoraires : A la charge de l'acquéreur
Prestations :
- ERP : ERPable
- Immeuble d'angle
- Grand linéaire de façade
- 2 Entrée indépendante sur rue
- Accès PMR
- Climatisation réversible
- Double vitrage
- Traversant
- Belle hauteur sous plafond
- Peu de contraintes porteuses
- Local technique
- Local ERPEABLE
- RDC :
- Open space
- Espace accueil
- 11 bureaux
- Local stockage
- Issue de secours
- Double sanitaire
- Cuisine
- SOUS-SOL :
- Local info
- Vestiaire
- Salle des coffres
- Surface et affectation : en cours de validation
- Surface RDC : 270 m²
Accessibilité:
Bus HOPITAL DE VAUGIRARD (39, 80), CONVENTION - VAUGIRARD (62)
Metro Convention (12)
Tramway PORTE DE VERSAILLES-PARC DES E (T2), PORTE DE VERSAILLES - PARC DES (T3, T3a)
Les informations sur les risques auxquels ce bien est exposé sont disponibles sur le site Géorisques : www.georisques.gouv.fr
Voir plus
Afficher les consommations énergétiques
Favoris
Exporter
Appeler
Contacter
Signaler cette annonce









