Conseil en immobilier d'entreprise, Cushman & Wakefield est un acteur incontournable au rayonnement international. Cushman & Wakefield offre des solutions dans toutes les étapes que comporte un p ...
En savoir plus

1 047 m² divisible dès 67 m²
Bureau à vendre - 1047 m²
Neuilly-sur-Seine (92200)
Dernière mise à jour : Il y a 2 mois
Neuilly - Plateaux de bureaux climatisés
Neuilly-sur-Seine / A proximité immédiate du métro Pont de Neuilly, nous vous proposons plusieurs surfaces de bureaux disponibles (immeuble indépendant dans sa totalité ou vente par étage) au sein d'un immeuble 100% tertiaire de bon standing.
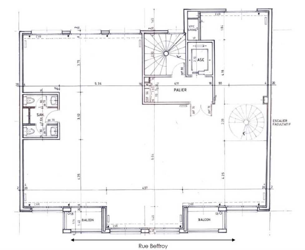
Disposant d'une parfaite organisation de l'espace, sans contrainte porteuse, les bureaux bénéficient d'une double exposition.
Possibilité de relier les étages via escalier intérieur (trémies et escalier préexistant pour certains niveaux).
Chaque niveau dispose d'un espace extérieur (jardin, balcons ou rooftop).
Plateaux climatisés
Possibilité d'acquérir des emplacements de parking dans l'immeuble (18 au total)
Régime Fiscal : Droits d'enregistrement
Honoraires : 5 % HT du prix de vente HD à la charge de l'acquéreur
Prestations :
Accessibilité:
Métro Pont de Neuilly (ligne 1)
Bus Lignes 43-82-93-174-176
Accès routier Quais de Seine
Accès routier A14-N13
Les informations sur les risques auxquels ce bien est exposé sont disponibles sur le site Géorisques : www.georisques.gouv.fr
Neuilly-sur-Seine / A proximité immédiate du métro Pont de Neuilly, nous vous proposons plusieurs surfaces de bureaux disponibles (immeuble indépendant dans sa totalité ou vente par étage) au sein d'un immeuble 100% tertiaire de bon standing.
Disposant d'une parfaite organisation de l'espace, sans contrainte porteuse, les bureaux bénéficient d'une double exposition.
Possibilité de relier les étages via escalier intérieur (trémies et escalier préexistant pour certains niveaux).
Chaque niveau dispose d'un espace extérieur (jardin, balcons ou rooftop).
Plateaux climatisés
Possibilité d'acquérir des emplacements de parking dans l'immeuble (18 au total)
| Étage | Type | Surfaces | Dispo | Prix(m²) | Charges | Honoraires | Fiscal |
|---|---|---|---|---|---|---|---|
| 6 | Bureaux | 109,5 | 15068,49 /m² HD.HT | n.c. | 5 % HT du prix de vente HD à la charge de l'acquéreur | Droits d'enregistrement | |
| 5 | Bureaux | 186,5 | 12600,54 /m² HD.HT | n.c. | 5 % HT du prix de vente HD à la charge de l'acquéreur | Droits d'enregistrement | |
| 4 | Bureaux | 171,1 | 11689,07 /m² HD.HT | n.c. | 5 % HT du prix de vente HD à la charge de l'acquéreur | Droits d'enregistrement | |
| 3 | Bureaux | 172,7 | 11291,26 /m² HD.HT | n.c. | 5 % HT du prix de vente HD à la charge de l'acquéreur | Droits d'enregistrement | |
| 2 | Bureaux | 171,2 | 11098,13 /m² HD.HT | n.c. | 5 % HT du prix de vente HD à la charge de l'acquéreur | Droits d'enregistrement | |
| 1 | Bureaux | 169,4 | 10920,9 /m² HD.HT | n.c. | 5 % HT du prix de vente HD à la charge de l'acquéreur | Droits d'enregistrement | |
| RdC | Bureaux | 66,5 | 11270 /m² HD.HT | n.c. | 5 % HT du prix de vente HD à la charge de l'acquéreur | Droits d'enregistrement | |
| Parkings | 40000 /place HD.HT | n.c. | 5 % HT du prix de vente HD à la charge de l'acquéreur | Droits d'enregistrement |
Régime Fiscal : Droits d'enregistrement
Honoraires : 5 % HT du prix de vente HD à la charge de l'acquéreur
Prestations :
- Élevé en R+6 sur 2 niveaux de sous-sol
- Bel immeuble mixte
- Belles parties communes
- Ascenseur et escalier reliant le R-2 au R+5
- Escalier intérieur pour le r+6
- Fibre optique
- Cour d'entrée privative à l'avant
- de l'immeuble
- Rampe d'accès au parking se situe à droite de l'immeuble
- Jardin et une terrasse privés en fond
- de parcelle
- Terrasse de 75 m² accessible au 6 ème étage
- Plateaux de bureaux lumineux et traversants
- Belle hauteur sous plafond
- Absence de contraintes porteuses
- Possibilité de relier les plateaux par escalier intérieur (trémies existantes)
- Deux jardins pour le rez-de-chaussée
- Deux balcons par étage
- Rofftop de 120 m² pour le triplex de 300 m²
- Bureaux climatisés
- Emplacements de parking
- Surface RDC : 66,5 m²
Accessibilité:
Métro Pont de Neuilly (ligne 1)
Bus Lignes 43-82-93-174-176
Accès routier Quais de Seine
Accès routier A14-N13
Les informations sur les risques auxquels ce bien est exposé sont disponibles sur le site Géorisques : www.georisques.gouv.fr
Voir plus
Afficher les consommations énergétiques
Localisation et transport aux alentours
Favoris
Exporter
Appeler
Contacter
Signaler cette annonce










