Créée en 1994, GSA Immobilier est acteur reconnu sur le marché de l’immobilier d’entreprise. Notre société s'est développée autour de deux métiers principaux : 1. Le Conseil en Immobilier d'Entrepr ...
En savoir plus

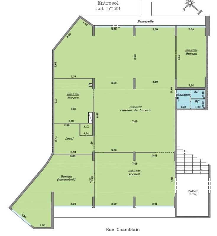
216 m²
Bureau à vendre - 216 m²
Melun (77000)
Dernière mise à jour : Il y a 2 jours
Bureaux à vendre sur axe passant
MELUN, GSA IMMOBILIER propose à la vente un local situé en entrée de ville.
Places de parkings.
Impôt Foncier : 6341 €//an (base 2024)
Régime Fiscal : Droits d'enregistrements
Honoraires : 5 % HT du prix de vente, en sus à la charge de l'acquéreur
Taxe Bureau : 1216 €/m²/an
Prestations :
Accessibilité:
RER Gare RER D MELUN à 750 m à pied
Autoroute Autoroute A5
Route D306 (vers Senart) à 4 km
Aéroport PARIS-ORLY à 39.2 km
Les informations sur les risques auxquels ce bien est exposé sont disponibles sur le site Géorisques : www.georisques.gouv.fr
MELUN, GSA IMMOBILIER propose à la vente un local situé en entrée de ville.
Places de parkings.
| Étage | Type | Surfaces | Dispo | Prix(m²) | Charges | Honoraires | Fiscal |
|---|---|---|---|---|---|---|---|
| Etage | Bureaux | 216 | Immédiate | 1342,59 m² HD | 14700 /an HT (provision) | 5 % HT du prix de vente, en sus à la charge de l'acquéreur | Droits d'enregistrements |
| SS | Parkings | n.c. | n.c. | 5 % HT du prix de vente, en sus à la charge de l'acquéreur | Droits d'enregistrements | ||
| Ext | Parkings | n.c. | n.c. | 5 % HT du prix de vente, en sus à la charge de l'acquéreur | Droits d'enregistrements |
Impôt Foncier : 6341 €//an (base 2024)
Régime Fiscal : Droits d'enregistrements
Honoraires : 5 % HT du prix de vente, en sus à la charge de l'acquéreur
Taxe Bureau : 1216 €/m²/an
Prestations :
- ***IMMEUBLE***
- Parking privatif sur l'arrière de l'immeuble
- Interphone
- ***BUREAUX***
- AGENCEMENT LOT--
- Locaux aménagés en :
- Accueil
- Espace ouvert
- Bureaux cloisonnés
- Local technique
- Sanitaires privatifs
- PRESTATIONS TECHNIQUES BUREAUX--
- Faux plafonds
- Sol PVC
- Câblage informatique et téléphonique
- Ventilation double-flux
- Chauffage urbain
- Cloisons semi-vitrées
- Fibre optique dans l'immeuble (raccordement à faire)
- Issue de secours privatisée
Accessibilité:
RER Gare RER D MELUN à 750 m à pied
Autoroute Autoroute A5
Route D306 (vers Senart) à 4 km
Aéroport PARIS-ORLY à 39.2 km
Les informations sur les risques auxquels ce bien est exposé sont disponibles sur le site Géorisques : www.georisques.gouv.fr
Voir plus
Afficher les consommations énergétiques
Localisation et transport aux alentours
Favoris
Exporter
Appeler
Contacter
Signaler cette annonce
