L’agence CBRE Lille conseille et accompagne les chefs d’entreprise dans leurs projets immobiliers quels que soient leur taille et leur secteur d’activité. Spécialistes de la transaction de bureaux, ...
En savoir plus

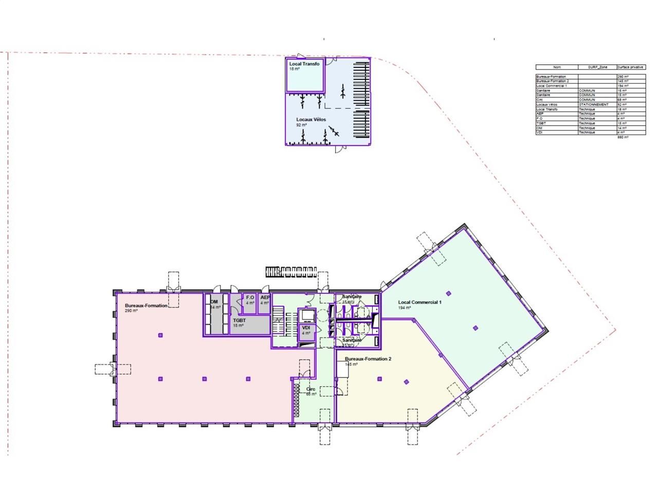
5 539 m² divisible dès 193 m²
Bureau à vendre - 5539 m²
Marquette-lez-Lille (59520)
Dernière mise à jour : Il y a 4 mois
Vos futurs bureaux, au coeur d'un écrin de modernité et de nature à Marquette-lez-Lille ! Découvrez deux immeubles neufs alliant confort et praticité : modularité des espaces pouvant s'adapter à vos besoins - Proximité immédiate de la Deûle et d'espaces verts pour travailler dans un cadre apaisant - Terrasses pour des pauses inspirantes - Accès vélo et parking pour tous vos déplacements. Le tramway à portée d'ici 2030 pour une accessibilité renforcée !
Des services de proximité (restaurants, commerces, crèches, équipements sportifs.) sont venus complétés cette offre de qualité, et permettent d'attirer de nouvelles entreprises chaque année à la recherche d'un bureau à louer à Marquette Lez Lille.
Régime Fiscal : T.V.A.
Dépôt de garantie : 3 mois de loyer HT/HC
Paiement Loyer : trimestriel
Honoraires : 5% HT du prix de vente HT à la charge de l'acquéreur
Prestations :
Accessibilité:
SNCF Gares à 10 mn en voiture
Aeroport Lille-Lesquin à 10 mn
Route Voie Rapide Urbaine
Les informations sur les risques auxquels ce bien est exposé sont disponibles sur le site Géorisques : www.georisques.gouv.fr
Des services de proximité (restaurants, commerces, crèches, équipements sportifs.) sont venus complétés cette offre de qualité, et permettent d'attirer de nouvelles entreprises chaque année à la recherche d'un bureau à louer à Marquette Lez Lille.
| Étage | Type | Surfaces | Dispo | Prix(m²) | Charges | Honoraires | Fiscal |
|---|---|---|---|---|---|---|---|
| RDC | Bureaux | 252,46 | 18 mois ap. déb. trx | 2950,82 m² HT | n.c. | 5% HT du prix de vente HT à la charge de l'acquéreur | T.V.A. |
| RDC | Commerce | 212,71 | 18 mois ap. déb. trx | 3000 m² HT | n.c. | 5% HT du prix de vente HT à la charge de l'acquéreur | T.V.A. |
| 1 | Bureaux | 363,66 | 18 mois ap. déb. trx | 2950,82 m² HT | n.c. | 5% HT du prix de vente HT à la charge de l'acquéreur | T.V.A. |
| 1 | Bureaux | 264,26 | 18 mois ap. déb. trx | 2950,82 m² HT | n.c. | 5% HT du prix de vente HT à la charge de l'acquéreur | T.V.A. |
| 2 | Bureaux | 364,87 | 18 mois ap. déb. trx | 2950,82 m² HT | n.c. | 5% HT du prix de vente HT à la charge de l'acquéreur | T.V.A. |
| 2 | Bureaux | 265,47 | 18 mois ap. déb. trx | 2950,82 m² HT | n.c. | 5% HT du prix de vente HT à la charge de l'acquéreur | T.V.A. |
| 3 | Bureaux | 364,87 | 18 mois ap. déb. trx | 2950,82 m² HT | n.c. | 5% HT du prix de vente HT à la charge de l'acquéreur | T.V.A. |
| 3 | Bureaux | 266,69 | 18 mois ap. déb. trx | 2950,82 m² HT | n.c. | 5% HT du prix de vente HT à la charge de l'acquéreur | T.V.A. |
| RDC | Bureaux | 308,98 | 18 mois ap. déb. trx | 2950,82 m² HT | n.c. | 5% HT du prix de vente HT à la charge de l'acquéreur | T.V.A. |
| RDC | Commerce | 198,99 | 18 mois ap. déb. trx | 3000 m² HT | n.c. | 5% HT du prix de vente HT à la charge de l'acquéreur | T.V.A. |
| RDC | Bureaux | 154,49 | 18 mois ap. déb. trx | 2950,82 m² HT | n.c. | 5% HT du prix de vente HT à la charge de l'acquéreur | T.V.A. |
| 1 | Bureaux | 358,36 | 18 mois ap. déb. trx | 2950,82 m² HT | n.c. | 5% HT du prix de vente HT à la charge de l'acquéreur | T.V.A. |
| 1 | Bureaux | 341,8 | 18 mois ap. déb. trx | 2950,82 m² HT | n.c. | 5% HT du prix de vente HT à la charge de l'acquéreur | T.V.A. |
| 1 | Bureaux | 139,56 | 18 mois ap. déb. trx | 2950,82 m² HT | n.c. | 5% HT du prix de vente HT à la charge de l'acquéreur | T.V.A. |
| 2 | Bureaux | 359,54 | 18 mois ap. déb. trx | 2950,82 m² HT | n.c. | 5% HT du prix de vente HT à la charge de l'acquéreur | T.V.A. |
| 2 | Bureaux | 344,17 | 18 mois ap. déb. trx | 2950,82 m² HT | n.c. | 5% HT du prix de vente HT à la charge de l'acquéreur | T.V.A. |
| 2 | Bureaux | 137,19 | 18 mois ap. déb. trx | 2950,82 m² HT | n.c. | 5% HT du prix de vente HT à la charge de l'acquéreur | T.V.A. |
| 3 | Bureaux | 359,54 | 18 mois ap. déb. trx | 2950,82 m² HT | n.c. | 5% HT du prix de vente HT à la charge de l'acquéreur | T.V.A. |
| 3 | Bureaux | 341,8 | 18 mois ap. déb. trx | 2950,82 m² HT | n.c. | 5% HT du prix de vente HT à la charge de l'acquéreur | T.V.A. |
| 3 | Bureaux | 139,56 | 18 mois ap. déb. trx | 2950,82 m² HT | n.c. | 5% HT du prix de vente HT à la charge de l'acquéreur | T.V.A. |
Régime Fiscal : T.V.A.
Dépôt de garantie : 3 mois de loyer HT/HC
Paiement Loyer : trimestriel
Honoraires : 5% HT du prix de vente HT à la charge de l'acquéreur
Prestations :
- Ascenseur
- Belle luminosité
- Bow-windows offrant de grandes ouvertures
- Coursives extérieures privatisables
- Etages tertiaires
- Espaces extérieurs végétalisés
- Deux bâtiments en R+3 totalisant 5 539 m²
- Grande terrasse commune végétalisée au RDC
- Local vélos
- Plateaux modulables et divisibles à partir de 137 m²
- Parking clôturé et sécurisé
- RDC commerciaux
- Toitures terrasses équipées de panneaux photovoltaïques
- Terrasses privatives :
- Bâtiment A : 224.70 m²
- Bâtiment B : 193.20 m²
- Certification BREEAM Very Excellent
- Places de parking :
- Bâtiment A : 48 places
- Bâtiment B : 40 places
- Loyer : 450 euros HT HC/U/an
- Prix de vente : 6 923,08 euros HT/U
- Surface RDC : 1127,63 m²
Accessibilité:
SNCF Gares à 10 mn en voiture
Aeroport Lille-Lesquin à 10 mn
Route Voie Rapide Urbaine
Les informations sur les risques auxquels ce bien est exposé sont disponibles sur le site Géorisques : www.georisques.gouv.fr
Voir plus
Afficher les consommations énergétiques
Favoris
Exporter
Appeler
Contacter
Signaler cette annonce




