L’agence CBRE Aix conseille et accompagne les chefs d’entreprise dans leurs projets immobiliers quels que soient leur taille et leur secteur d’activité. Spécialistes de la transaction de bureaux, d ...
En savoir plus

224 m²
Bureau à vendre - 224 m²
Gardanne (13120)
Dernière mise à jour : Il y a 2 jours
CBRE vous propose des bureaux à la vente ou à la location, dans un immeuble neuf, sur le Pôle Yvon Morandat à Gardanne.
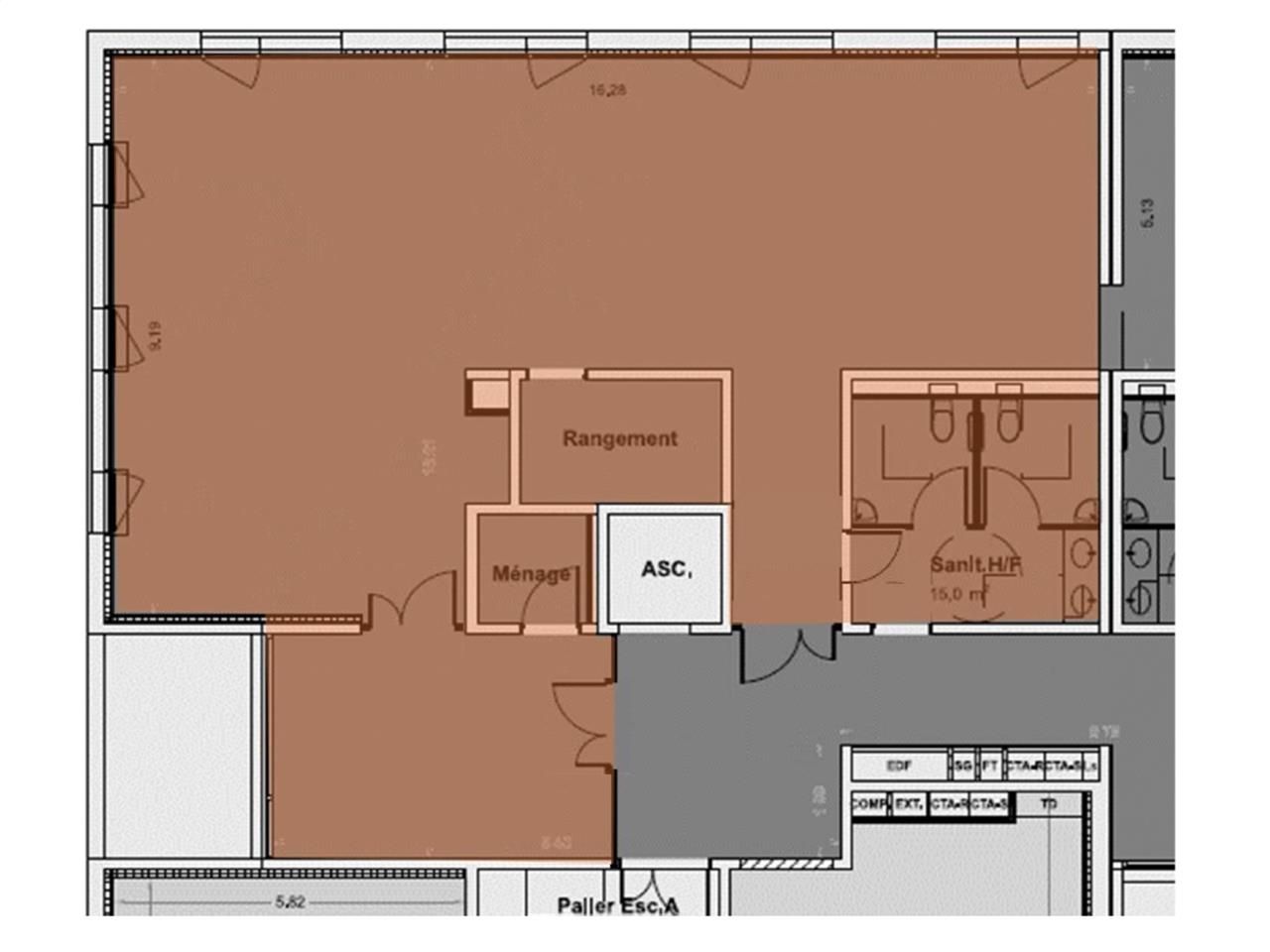
Le lot à vendre ou à louer se compose d'un bureau et d'un open space, avec possibilité de cloisonner en 7 bureaux.
Les bureaux bénéficient également de 4 places de parkings extérieures, ainsi que de sanitaires privatifs et d'un local technique.
N'hésitez pas à nous contacter pour les visiter ou pour tout complément d'information.
Régime Fiscal : T.V.A.
Dépôt de garantie : 3 mois de loyer HT/HC
Paiement Loyer : trimestriel
Honoraires : A la charge de l'acquéreur : 3 % HT du prix de vente HD + TVA 20 %
Information sur le Bail :
Surface utile : 161,98 m² Les parkings standards sont inclus dans le prix. La surface comprend la quote part de partie commune.
Prestations :
Accessibilité:
A51 et A8 à 10 minutes
Gare TGV d'Aix en Provence à 25 minutes
Aéroport Marseille Provence à 25 minutes
Nombreuses lignes de bus : 64 (Marseille/Trets/Cartreize), 184 (bus local de Gardanne) et bus à la demande du Pays d'Aix
Les informations sur les risques auxquels ce bien est exposé sont disponibles sur le site Géorisques : www.georisques.gouv.fr
Le lot à vendre ou à louer se compose d'un bureau et d'un open space, avec possibilité de cloisonner en 7 bureaux.
Les bureaux bénéficient également de 4 places de parkings extérieures, ainsi que de sanitaires privatifs et d'un local technique.
N'hésitez pas à nous contacter pour les visiter ou pour tout complément d'information.
| Étage | Type | Surfaces | Dispo | Prix(m²) | Charges | Honoraires | Fiscal |
|---|---|---|---|---|---|---|---|
| 1 | Bureaux | 223,71 | Immédiate | 2235,04 m² HT | 40 m²/an HT | A la charge de l'acquéreur : 3 % HT du prix de vente HD + TVA 20 % | T.V.A. |
Régime Fiscal : T.V.A.
Dépôt de garantie : 3 mois de loyer HT/HC
Paiement Loyer : trimestriel
Honoraires : A la charge de l'acquéreur : 3 % HT du prix de vente HD + TVA 20 %
Information sur le Bail :
Surface utile : 161,98 m² Les parkings standards sont inclus dans le prix. La surface comprend la quote part de partie commune.
Prestations :
- Un bureau et un open space (possibilité de cloisonner jusqu'à 7 bureaux)
- 4 places de parking extérieurs standards
- Sanitaires privatifs
- local technique et ménage
- Bureaux équipés non aménagés : moquette au sol, peinture aux murs et faux plafonds compris luminaires et ventilation, hors CFA et aménagements à charge du preneur.
- Chauffage et rafraichissement par géothermie.
- Espaces de coworking, Restauration et micro-crèche sur site.
- ERP 5ème catégorie
- Vue dégagée sur la Sainte Victoire, la chaîne de l'étoile et la montagne du Bau Trauqua.
- Parking public face à l'immeuble
Accessibilité:
A51 et A8 à 10 minutes
Gare TGV d'Aix en Provence à 25 minutes
Aéroport Marseille Provence à 25 minutes
Nombreuses lignes de bus : 64 (Marseille/Trets/Cartreize), 184 (bus local de Gardanne) et bus à la demande du Pays d'Aix
Les informations sur les risques auxquels ce bien est exposé sont disponibles sur le site Géorisques : www.georisques.gouv.fr
Voir plus
Afficher les consommations énergétiques
Favoris
Exporter
Appeler
Contacter
Signaler cette annonce
