Arthur Loyd est implantée depuis 1986 à Orléans, soit 35 ans de présence au quotidien sur le terrain et auprès des acteurs économiques du Loiret.Nous accompagnons les porteurs de projet, quelles qu ...
En savoir plus

3 591 m² divisible dès 380 m²
ILOT F4 - Bureau à vendre - 3591 m²
Fleury-les-Aubrais (45400)
Dernière mise à jour : Il y a 3 mois
INTERIVES - IMMEUBLE NEUF MIXTE BUREAUX / COMMERCE - 3 591 M2 À LA VENTE (2ème SEMESTRE 2027)
Immeuble ILOT F4
Centre d'affaires, Coworking, Salle de sports
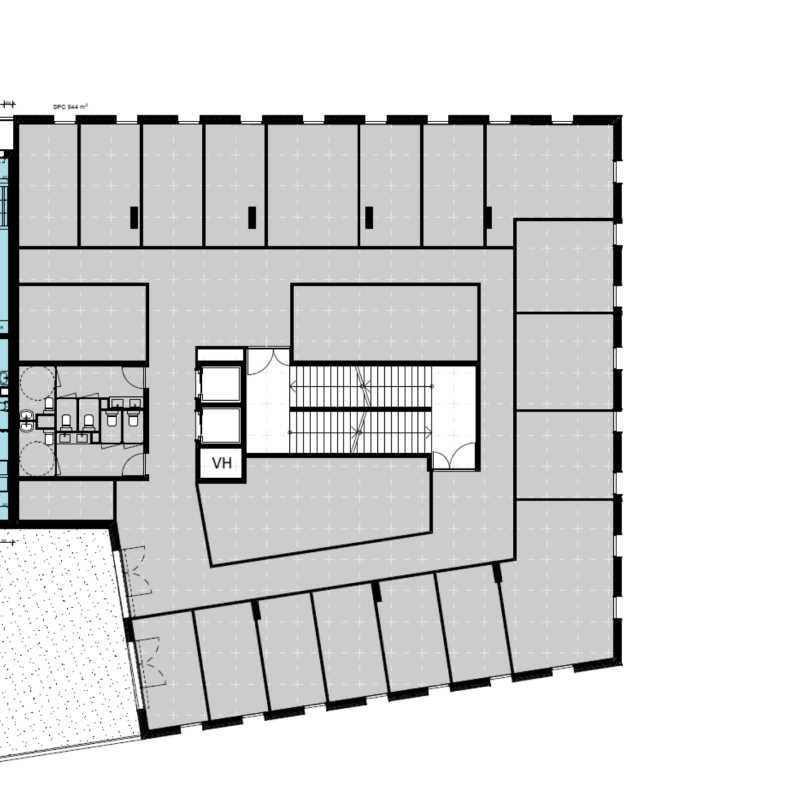
Au coeur du nouveau quartier d'affaires Interives, un immeuble à l'architecture contemporaine est en cours de développement. Le projet développe 3 591 m² sur 8 niveaux (sous-sol compris), comprenant une cellule commerciale en rez-de-chaussée de 380 m².
Les plateaux de bureaux seront livrés aménagés, non cloisonnés.
La cellule commerciale sera livrée brute de béton, fluides en attente, vitrines posées
62 places de stationnement au rez-de-chaussée et en sous-sol (ratio 1 place / 58 m²)
Un emplacement stratégique au sein d'un pôle tertiaire en plein essor, idéal pour des entreprises cherchant visibilité, accessibilité et modernité.
Prestations :
Accessibilité:
RD / RN sur l'axe RD2020 entrant et sortant du centre ville d'Orléans, à 5 minutes de l'échangeur autoroutier Orléans Nord.
Tram Ligne A Arrêt Libération
Autoroute à 1h de Paris (A10 à 10 min en voiture)
SNCF Gare des Aubrais proche à un arrpet de Tram
Bus Ligne 45 Arrêt INTERIVES
Les informations sur les risques auxquels ce bien est exposé sont disponibles sur le site Géorisques : www.georisques.gouv.fr
Immeuble ILOT F4
Centre d'affaires, Coworking, Salle de sports
Au coeur du nouveau quartier d'affaires Interives, un immeuble à l'architecture contemporaine est en cours de développement. Le projet développe 3 591 m² sur 8 niveaux (sous-sol compris), comprenant une cellule commerciale en rez-de-chaussée de 380 m².
Les plateaux de bureaux seront livrés aménagés, non cloisonnés.
La cellule commerciale sera livrée brute de béton, fluides en attente, vitrines posées
62 places de stationnement au rez-de-chaussée et en sous-sol (ratio 1 place / 58 m²)
Un emplacement stratégique au sein d'un pôle tertiaire en plein essor, idéal pour des entreprises cherchant visibilité, accessibilité et modernité.
| Étage | Type | Surfaces | Dispo | Prix(m²) | Charges | Honoraires | Fiscal |
|---|---|---|---|---|---|---|---|
| 6 | Bureaux | 492 | 1er octobre 2027 | 2500 m² HD | n.c. | ||
| 5 | Bureaux | 504 | 1er octobre 2027 | 2500 m² HD | n.c. | ||
| 4 | Bureaux | 525 | 1er octobre 2027 | 2500 HT/m2 | n.c. | ||
| 3 | Bureaux | 565 | 1er octobre 2027 | 2500 HT / m2 | n.c. | ||
| 2 | Bureaux | 565 | 1er octobre 2027 | 2500 HT/m2 | n.c. | ||
| 1 | Bureaux | 560 | 1er octobre 2027 | 2500 HT/m2 | n.c. | ||
| RDC | Commerce | 380 | 1er octobre 2027 | 2000 HT/m2 | n.c. | ||
| 1SS | Parkings | 1er octobre 2027 | 18000 place HT | n.c. | |||
| RDC | Parkings | 1er octobre 2027 | 18000 place HT | n.c. |
Prestations :
- ERP : 4ème catégorie
- Bâtiment classé ERP catégorie W & R capacitaire : 1 personne pour 10 m2 environ
- 2 ascenseurs
- Certification BREAM
- Livraison des bureaux aménagés non cloisonnés sauf en RDC :
- Moquette au sol,
- Faux plafond,
- Pré-câblé en courant fort, Raccordement à la FO
- Chauffage urbain et rafraîchissement d'air (groupe froid en toiture)
- Hauteur sous-plafond 2,70 mètres
- CTA Double flux
- Désemfumage naturel des plateaux
- Contrôle d'accès par badge et par Visiophone
- Surface RDC : 380 m²
Accessibilité:
RD / RN sur l'axe RD2020 entrant et sortant du centre ville d'Orléans, à 5 minutes de l'échangeur autoroutier Orléans Nord.
Tram Ligne A Arrêt Libération
Autoroute à 1h de Paris (A10 à 10 min en voiture)
SNCF Gare des Aubrais proche à un arrpet de Tram
Bus Ligne 45 Arrêt INTERIVES
Les informations sur les risques auxquels ce bien est exposé sont disponibles sur le site Géorisques : www.georisques.gouv.fr
Voir plus
Afficher les consommations énergétiques
Localisation et transport aux alentours
Favoris
Exporter
Appeler
Contacter
Signaler cette annonce




