Avec 14 années d’expérience en immobilier d’entreprises, l’agence Vacherand intervient sur l’ensemble des projets liés à ce secteur. Elle assure la commercialisation des biens, l’accompagnement à l ...
En savoir plus

250 m²
Bureau à vendre - 250 m²
Famars (59300)
Publiée : Il y a 1 mois
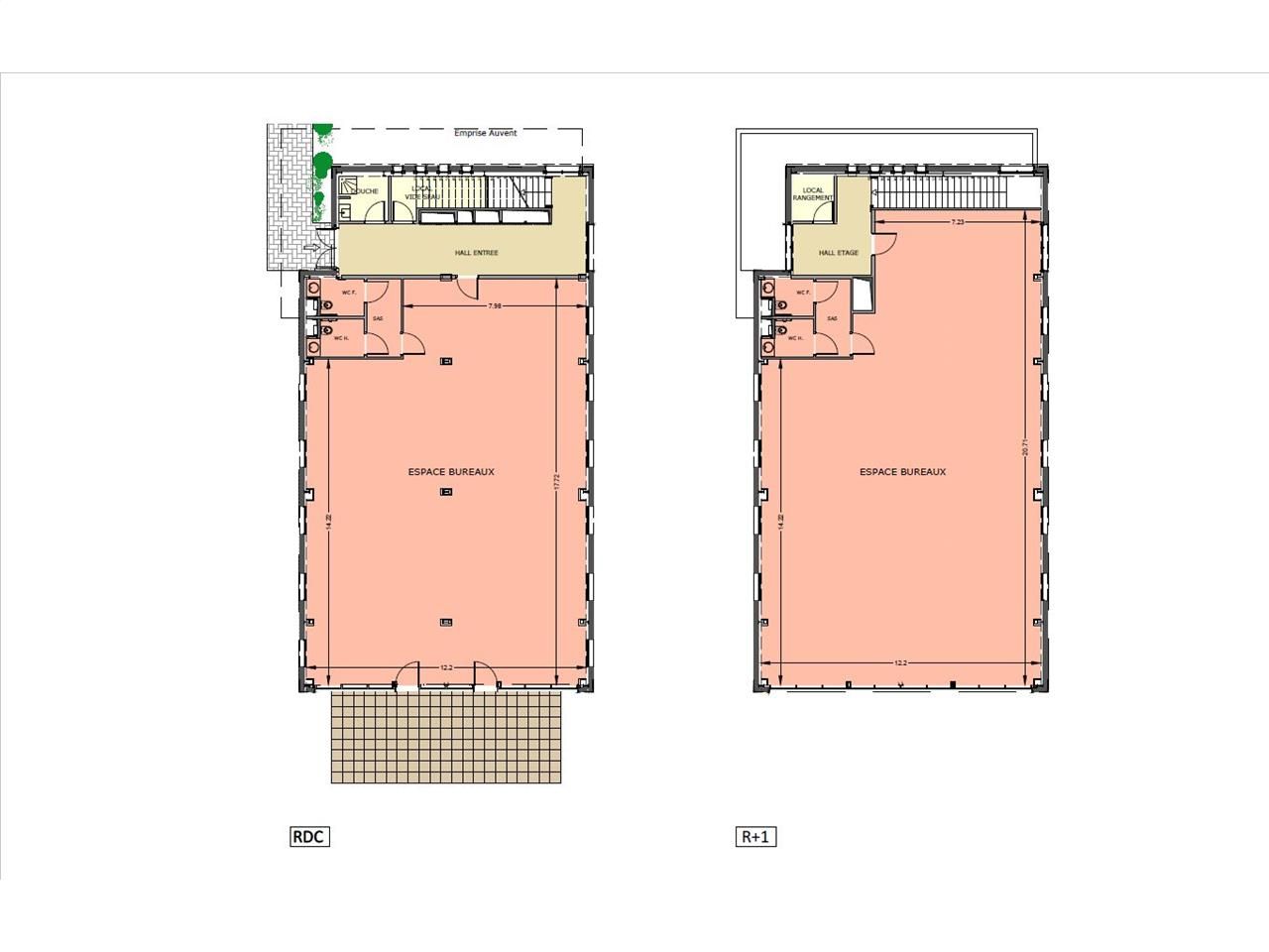
Bureaux Famars à partir de 250m²
Votre agence Vacherand immobilier entreprise vous propose à le vente un bâtiment neuf de 250m² environ de bureaux avec une terrasse à Famars.
Proche A2, Université Polytechnique, tram
Disponibilité : 9 mois après signature du contrat
Le plus place de parking à 4 000€ HT/unité
Possibilité d'acquérir le bâtiment entier de 500m² ou un bâtiment plus grand de 590m²
Surface : 250m² environ
Prix du bien : 540 750 € HT*
Prix du bien hors honoraires : 515 000 € HT*
Honoraire : 5 % HT soit 25 750 € HT Honoraires à la charge de l'acquéreur
Prix au m² : à partir de 2 060€ HT* Hors honoraires
* La divisibilité d'un immeuble en 2 lots génère un surcoût
Pour plus d'informations, vous pouvez contacter Florian BERNARD au 0652806930 ou sur [email protected]
Votre agence Vacherand immobilier entreprise vous propose à le vente un bâtiment neuf de 250m² environ de bureaux avec une terrasse à Famars.
Proche A2, Université Polytechnique, tram
Disponibilité : 9 mois après signature du contrat
Le plus place de parking à 4 000€ HT/unité
Possibilité d'acquérir le bâtiment entier de 500m² ou un bâtiment plus grand de 590m²
Surface : 250m² environ
Prix du bien : 540 750 € HT*
Prix du bien hors honoraires : 515 000 € HT*
Honoraire : 5 % HT soit 25 750 € HT Honoraires à la charge de l'acquéreur
Prix au m² : à partir de 2 060€ HT* Hors honoraires
* La divisibilité d'un immeuble en 2 lots génère un surcoût
Pour plus d'informations, vous pouvez contacter Florian BERNARD au 0652806930 ou sur [email protected]
Voir plus
Afficher les consommations énergétiques
Localisation et transport aux alentours
Favoris
Exporter
Appeler
Contacter
Signaler cette annonce





