RCG Bordeaux est un cabinet de conseil en immobilier d'entreprise est située au cœur du quartier des Chartrons au 107 cours Balguerie Stuttenberg à Bordeaux. Cette agence propose un large choix de ...
En savoir plus

158 m²
Bureau à vendre - 158 m²
Cenon (33150)
Dernière mise à jour : Il y a 2 jours
A VENDRE - IMMEUBLE INDEPENDANT DE 158 M² - CENON
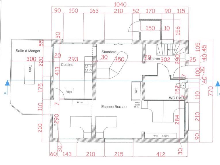
Dans le secteur du Haut-Cenon, RCG vous propose à la vente un immeuble indépendant de bureaux en R+1 d'une surface totale de 158 m² environ sur un terrain de 500 m² avec un parking privatif.
3 bureaux cloisonnés, un open space, une salle d'eau, un jardin.
A proximité de la rocade sortie 24, et de la ligne de tram A "La Marègue" et de lignes de bus 27/28/32
Impôt Foncier : 3600 €//an
Régime Fiscal : Droits d'enregistrement
Honoraires : 7% HT du prix de vente HD à la charge de l'acquéreur
Prestations :
Accessibilité:
Bus Rue de l'Union (Ligne 27, Ligne 51)
Tram La Morlette (Ligne A)
Les informations sur les risques auxquels ce bien est exposé sont disponibles sur le site Géorisques : www.georisques.gouv.fr
Dans le secteur du Haut-Cenon, RCG vous propose à la vente un immeuble indépendant de bureaux en R+1 d'une surface totale de 158 m² environ sur un terrain de 500 m² avec un parking privatif.
3 bureaux cloisonnés, un open space, une salle d'eau, un jardin.
A proximité de la rocade sortie 24, et de la ligne de tram A "La Marègue" et de lignes de bus 27/28/32
| Étage | Type | Surfaces | Dispo | Prix(m²) | Charges | Honoraires | Fiscal |
|---|---|---|---|---|---|---|---|
| RDC+Etage | Bureaux | 158 | Immédiate | 2373,42 m² HT | n.c. | 7% HT du prix de vente HD à la charge de l'acquéreur | Droits d'enregistrement |
Impôt Foncier : 3600 €//an
Régime Fiscal : Droits d'enregistrement
Honoraires : 7% HT du prix de vente HD à la charge de l'acquéreur
Prestations :
- Bâtiment indépendant
- Extérieur privatif
- Places de stationnement
- Balcon
- 2 Open spaces + alcôve
- 3 bureaux cloisonnés
- Salle de réunion
- Salle de pause avec coin cuisine
- Fenêtres double vitrage
- Volets roulantes électriques
- Chauffage au gaz
- Climatisation réversible au RDC
- Câblage informatique
- Baie de brassage
- Surface RDC : 158 m²
Accessibilité:
Bus Rue de l'Union (Ligne 27, Ligne 51)
Tram La Morlette (Ligne A)
Les informations sur les risques auxquels ce bien est exposé sont disponibles sur le site Géorisques : www.georisques.gouv.fr
Voir plus
Afficher les consommations énergétiques
Favoris
Exporter
Appeler
Contacter
Signaler cette annonce





