Leader mondial des services dédiés à l'immobilier d'entreprise, Cushman & Wakefield accompagne ses clients dans la transformation de leurs modes de travail, de consommation et de vie. Nos 43 000 co ...
En savoir plus

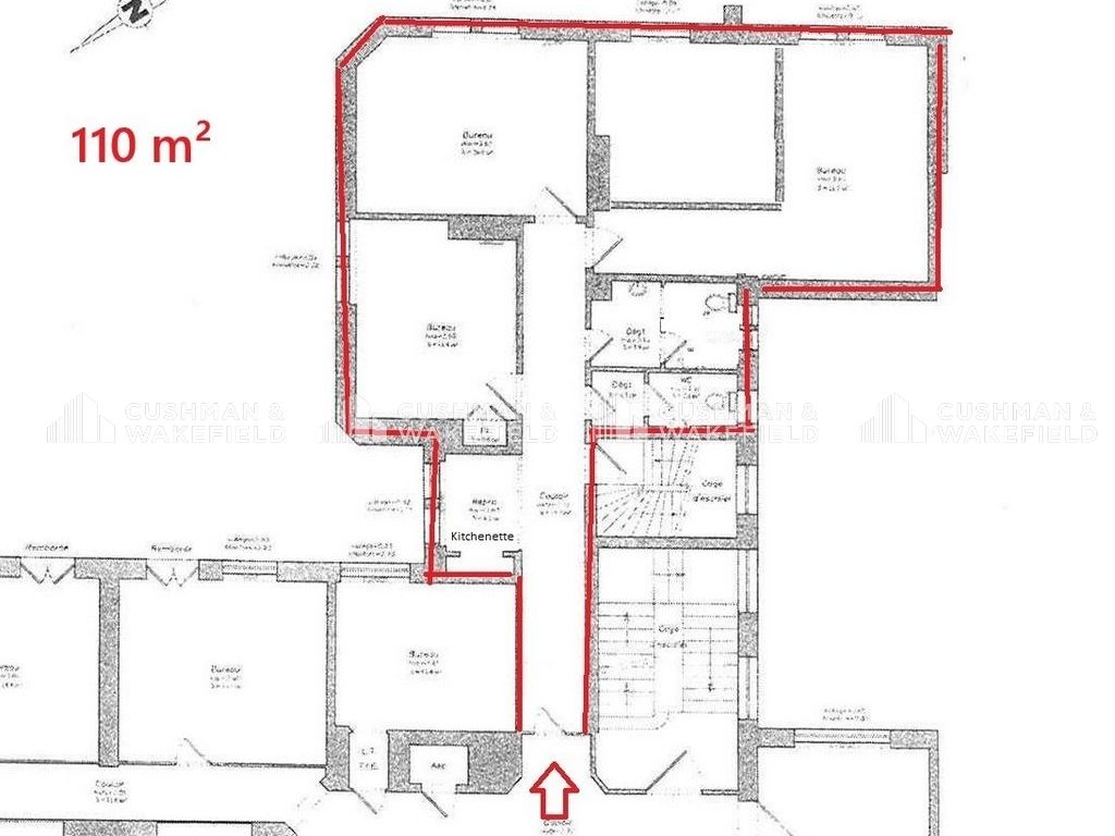
532 m² divisible dès 107 m²
HT HC
Location bureau - 532 m²
Strasbourg (67000)
Dernière mise à jour : Il y a 28 jours
Immeuble de bureaux de caractère, situé à proximité des institutions européennes et du quartier de l'Orangerie. Bureaux très lumineux avec une belle hauteur sous plafond. Le quartier de l'Orangerie se trouve au Nord-est de la Grande Ille de Strasbourg et fait partie du secteur dit Neustadt. Ce quartier regroupe les institutions européennes, et notamment le Parlement Européen et le Conseil de l'Europe. Le type d'architecture de ce secteur de Strasbourg est plutot de Style germanique de la fin du XIXè siècle Ce secteur est le quartier le plus vert de Strasbourg, avec le Parc de l'Orangerie (qui a donné son nom au quartier) d'une superficie de 26 hectares qui est la plus grande surface d'espaces verts de la ville. CUSHMAN & WAKEFIELD et plus particulièrement son département bureaux se tient à votre disposition pour vous présenter ce bien . Sol PVC type parquet . Murs mis en peinture . Faux plafonds avec luminaires ou plafonds lisses . Fenêtres double vitrage PVC avec stores . Sanitaires privatifs . Chauffage central et climatisation par splits Cloisonnement : 107 m² : 4 bureaux, sanitaires privatifs 110 m² : 4 bureaux - 1 kitchenette 315 m² : 12 Bureaux - Sanitaires privatifs - 1 kitchenette Ascenseur dans l'immeuble Bus : lignes 30, 72, L6 et 2 arrêt Dordogne Accès routier : accès autoroute place de Bordeaux
Voir plus
Afficher les consommations énergétiques
Surfaces divisibles : 3
| Surface | LoyerHT/HC/m²/an | Étage / Batiment |
| 110 m² | 210 € | 3 |
| 107 m² | 202 € | 2 |
| 315 m² | N.C | 2 |
Localisation et transport aux alentours
Favoris
Exporter
Appeler
Contacter
Signaler cette annonce










