Leader mondial des services dédiés à l'immobilier d'entreprise, Cushman & Wakefield accompagne ses clients dans la transformation de leurs modes de travail, de consommation et de vie. Nos 43 000 co ...
En savoir plus



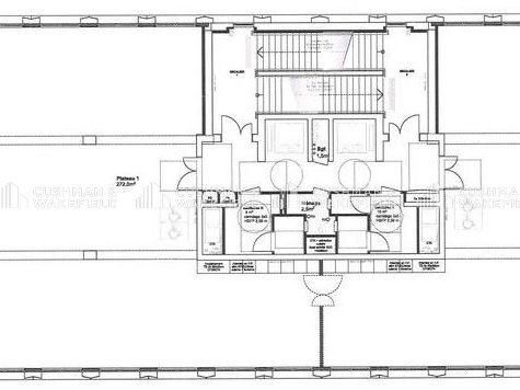
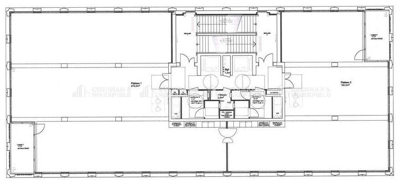
1 396 m² divisible dès 218 m²
HT HC
Location bureau - 1396 m²
Strasbourg (67000)
Dernière mise à jour : Il y a 4 mois
Immeuble dernière génération représentant 3 840 m², livré et disponible immédiatement au sein du Quartier d'Affaires International du Wacken, labellisé HQE Excellent, composé de surfaces tertiaires parfaitement divisibles. Immeuble dernière génération, livré et disponible de suite au sein du Quartier d'Affaires International du Wacken, labellisé HQE Excellent, composé de surfaces tertiaires : 3 840 m² Ces locaux, disponibles à la location, répondant aux normes HQE Excellent, label E+C-, vous offriront un cadre de travail très agréable. Vaste espace urbain très central dédié depuis un siècle aux foires et expositions, le Wacken devient aujourd'hui Archipel, quartier d'affaires et de vie d'une exceptionnelle qualité. C'est entre le quartier des Institutions Européennes et le quartier des banques, qui fait de Strasbourg la seconde place bancaire francaise, que se développe Archipel, quartier d''affaires à haut niveau de services, associant business et vie sociale, efficacité et détente, performance et développement durable. Une offre de services diversifiée à toute proximité : logements, commerces, services, hôtellerie, transports en commun, Le département Bureaux & Investissement de Cushman & Wakefield Strasbourg est à votre entière disposition pour vous apporter plus de précisions concernant ces bureaux à louer à Strasbourg. N'hésitez plus, contactez-nous ! Immeuble livré dans le quartier ARCHIPEL WACKEN, répondant aux normes HQE Excellent, label E+C-, sur un terrain d'une superficie de 44 ares. Il est composé exclusivement de surfaces tertiaires du R1 au R7+ mezzanines. L''accès au btiment se fait via la placette centrale légèrement réhaussée de la rue, avec accès PMR. Les bureaux sont entièrement aménagés (sols, murs, faux plafonds, courant fort, chauffage/rafraichissement.), non cloisonnés. Chaque lot bénéficie d'une terrasse privative. Effectif maximum bureaux : 1 personne pour 10 m² de surface utile Les parkings seront livrés en fevrier 2026. Bus : lignes 60, 50 et H BHNS (Bus à haut niveau de service) électrique qui relie la gare au Parlement Européen en 10 minutes, arrêts Parlement Européen/ Wacken Tram : lignes E et B, arrêts Parlement Européen/ Wacken Accès routier : A35 sortie Wacken
Voir plus
Afficher les consommations énergétiques
Surfaces divisibles : 5
| Surface | LoyerHT/HC/m²/an | Étage / Batiment |
| 218 m² | 220 € | 1 |
| 320 m² | 220 € | 2 |
| 320 m² | 220 € | 3 |
| 320 m² | 220 € | 1 |
| 218 m² | 220 € | 2 |
Localisation et transport aux alentours
- Wacken234m (4min à pied)BE
- Parlement Européen486m (7min à pied)E
Favoris
Exporter
Appeler
Contacter
Signaler cette annonce










