Evolis, votre partenaire en immobilier d’entreprise! Que vous soyez une entreprise, utilisateur de locaux professionnels, investisseur, ou propriétaire, Evolis met à votre service son expertise ...
En savoir plus

604 m² divisible dès 25 m²
HT HC
Location bureau - 604 m²
Ivry-sur-Seine (94200)
Dernière mise à jour : Il y a 11 jours
A LOUER - Bureaux - Ivry sur Seine (94)
Découvrez une opportunité immobilière de prestige proposée par EVOLIS, au coeur d'Ivry-sur-Seine. Ces bureaux à louer incarnent l'équilibre parfait entre confort moderne et fonctionnalité. Offrez à votre entreprise un environnement de travail idéal avec 604 m² d'espaces lumineux, divisibles dès 25 m², répondant aux exigences les plus spécifiques. La flexibilité de surfaces modulables, allant de 100 m² à 25 m², permet une adaptation optimale à vos besoins professionnels. Situés stratégiquement au pied du RER C, ces bureaux bénéficient d'une accessibilité exceptionnelle, tout en étant à proximité immédiate de nombreux commerces et restaurants, garantissant ainsi un cadre de vie professionnel stimulant. De plus, une place de parking en sous-sol est mise à disposition, ajoutant une touche de praticité à ce bien rare. Ne manquez pas cette occasion unique de dynamiser votre activité dans un cadre privilégié.
Impôt Foncier : 38 €/m²/an HT
Régime Fiscal : T.V.A.
Dépôt de garantie : 3 mois de loyer HT HC
Honoraires : 15% HT du loyer annuel HT HC à la charge du preneur
Taxe Bureau : 5,8 €/m²/an
Prestations :
Accessibilité:
Bus Molière (125, 323, 325)
RER Ivry-sur-Seine (C)
SNCF Ivry-Sur-Seine (Gare SNCF)
Autoroute A 4 (Entrée A 4), A 4 (Sortie A 4), A 6b (Entrée), A 6b (Sortie)
Rocade Quai d'Ivry (Périphérique Paris)
Borne de recharge SIGEIF - 5, avenue Spinoza - Ivry-sur-Seine (Bornes de recharge)
Les informations sur les risques auxquels ce bien est exposé sont disponibles sur le site Géorisques : www.georisques.gouv.fr
Découvrez une opportunité immobilière de prestige proposée par EVOLIS, au coeur d'Ivry-sur-Seine. Ces bureaux à louer incarnent l'équilibre parfait entre confort moderne et fonctionnalité. Offrez à votre entreprise un environnement de travail idéal avec 604 m² d'espaces lumineux, divisibles dès 25 m², répondant aux exigences les plus spécifiques. La flexibilité de surfaces modulables, allant de 100 m² à 25 m², permet une adaptation optimale à vos besoins professionnels. Situés stratégiquement au pied du RER C, ces bureaux bénéficient d'une accessibilité exceptionnelle, tout en étant à proximité immédiate de nombreux commerces et restaurants, garantissant ainsi un cadre de vie professionnel stimulant. De plus, une place de parking en sous-sol est mise à disposition, ajoutant une touche de praticité à ce bien rare. Ne manquez pas cette occasion unique de dynamiser votre activité dans un cadre privilégié.
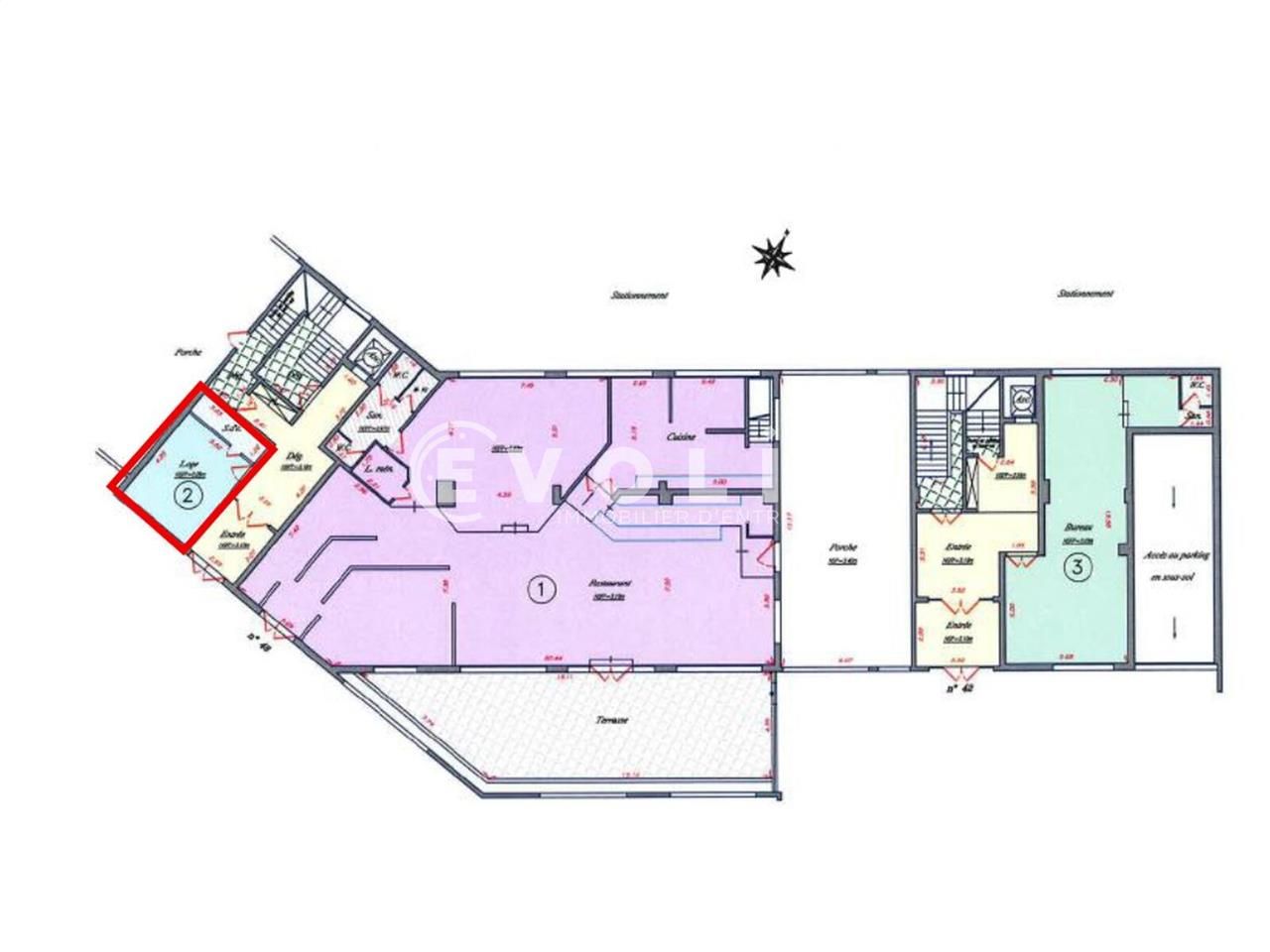
| Étage | Type | Surfaces | Dispo | Loyer | Charges | Type de bailRév. annuelle |
|---|---|---|---|---|---|---|
| 2 | Bureaux | 479 | 1er juin 2026 | 150 m²/an HT HC | 28 m²/an HT | Bail commercial 3-6-9 ansILAT Indice des Loyers des Activités Tertiaires |
| 1 | Bureaux | 100 | 1er avril 2026 | 160 m²/an HT HC | 28 m²/an HT | Bail commercial 3-6-9 ansILAT Indice des Loyers des Activités Tertiaires |
| RDC | Bureaux | 25 | 1er avril 2026 | 170 m²/an HT HC | 28 m²/an HT | Bail commercial 3-6-9 ansILAT Indice des Loyers des Activités Tertiaires |
Impôt Foncier : 38 €/m²/an HT
Régime Fiscal : T.V.A.
Dépôt de garantie : 3 mois de loyer HT HC
Honoraires : 15% HT du loyer annuel HT HC à la charge du preneur
Taxe Bureau : 5,8 €/m²/an
Prestations :
- Site sécurisé
- Ascenseur
- Bureaux lumineux
- Bureaux modulable
- Plinthe périphérique
- Fibre optique
- Climatisation
- Moquette ou sol PVC
- Parking en sous-sol
- Sanitaires
- Surface RDC : 25 m²
Accessibilité:
Bus Molière (125, 323, 325)
RER Ivry-sur-Seine (C)
SNCF Ivry-Sur-Seine (Gare SNCF)
Autoroute A 4 (Entrée A 4), A 4 (Sortie A 4), A 6b (Entrée), A 6b (Sortie)
Rocade Quai d'Ivry (Périphérique Paris)
Borne de recharge SIGEIF - 5, avenue Spinoza - Ivry-sur-Seine (Bornes de recharge)
Les informations sur les risques auxquels ce bien est exposé sont disponibles sur le site Géorisques : www.georisques.gouv.fr
Voir plus
Afficher les consommations énergétiques
Localisation et transport aux alentours
Favoris
Exporter
Appeler
Contacter
Signaler cette annonce










