

117 m²
Bureau à vendre - 117 m²
Paris 16 (75016)
Dernière mise à jour : Hier
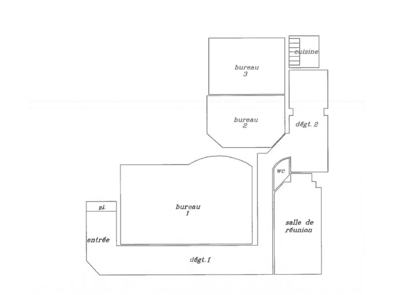
En exclusivité, CBRE, vous propose une surface de bureaux d'environ 117 m² située au rez-de-chaussée entre la Porte Dauphine et la Porte Maillot. Immeuble en pierre de taille, belles parties communes, plateaux rationnels, belle hauteur sous plafond. L'actif se développe avec 4 bureaux cloisonnés, 1 salle de réunion, cuisine, cave. Idéal pour les professions libérales.
Régime Fiscal : Droits d'enregistrement
Honoraires : 5% HT du prix de vente HD à la charge de l'acquéreur
Prestations :
Accessibilité:
Bus PALAIS DES CONGRES (73, 82, BALABUS), MARBEAU (PC3)
Metro Porte Dauphine (Maréchal de La (2), Porte Maillot (1)
RER Neuilly-Porte-Maillot (C)
Les informations sur les risques auxquels ce bien est exposé sont disponibles sur le site Géorisques : www.georisques.gouv.fr
| Étage | Type | Surfaces | Dispo | Prix(m²) | Charges | Honoraires | Fiscal |
|---|---|---|---|---|---|---|---|
| RDC | Bureaux | 117 | Immédiate | 12000 m² HD | n.c. | 5% HT du prix de vente HD à la charge de l'acquéreur | Droits d'enregistrement |
Régime Fiscal : Droits d'enregistrement
Honoraires : 5% HT du prix de vente HD à la charge de l'acquéreur
Prestations :
- Prestations surfaces :
- 4 bureaux cloisonnés
- 1 salle de réunion
- Une cuisine
- Une cave
- Surface et affectation : en cours de validation
- Surface RDC : 117 m²
Accessibilité:
Bus PALAIS DES CONGRES (73, 82, BALABUS), MARBEAU (PC3)
Metro Porte Dauphine (Maréchal de La (2), Porte Maillot (1)
RER Neuilly-Porte-Maillot (C)
Les informations sur les risques auxquels ce bien est exposé sont disponibles sur le site Géorisques : www.georisques.gouv.fr
Voir plus
Afficher les consommations énergétiques
Favoris
Exporter
Appeler
Contacter
Signaler cette annonce










