Depuis 2003, KEOPS Toulouse accompagne les entreprises dans leurs projets immobiliers sur toute l’aire urbaine toulousaine.Notre équipe de professionnels passionnés met à votre service sa connaissa ...
En savoir plus

2 641 m²
Activité/Entrepôt à vendre - 2641 m²
Muret (31600)
Dernière mise à jour : Il y a 5 jours
Bâtiment d'activités à vendre, situé à Muret, au sud de Toulouse
Impôt Foncier : 21812 €/Euros / an
Régime Fiscal : Droits de mutation
Honoraires : 5 % HT du prix de vente HD
Prestations :
Accessibilité:
Bus Pompiers (301)
Autoroute Par A64 sortie n° 35 "Muret"
Les informations sur les risques auxquels ce bien est exposé sont disponibles sur le site Géorisques : www.georisques.gouv.fr
| Étage | Type | Surfaces | Dispo | Prix(m²) | Charges | Honoraires | Fiscal |
|---|---|---|---|---|---|---|---|
| Activités | 2641 | Immédiate | 586,9 HT HD/ m² | n.c. | 5 % HT du prix de vente HD | Droits de mutation |
Impôt Foncier : 21812 €/Euros / an
Régime Fiscal : Droits de mutation
Honoraires : 5 % HT du prix de vente HD
Prestations :
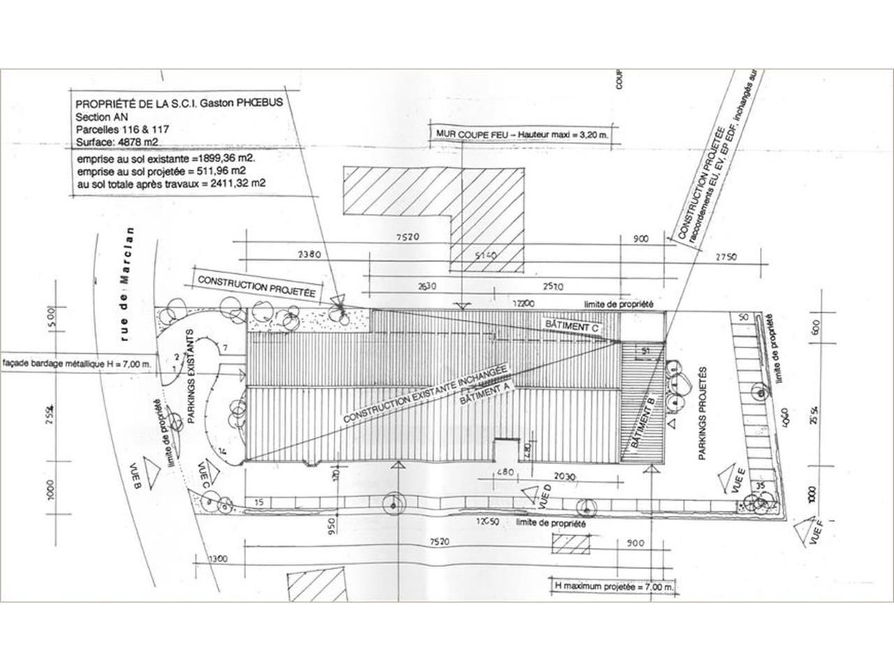
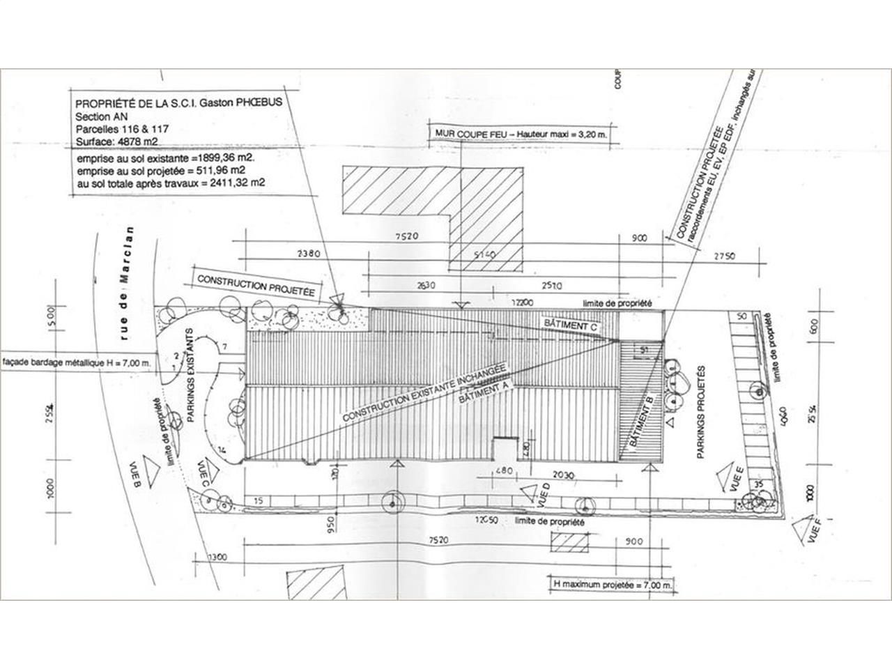
- Sur un terrain de 4 878 m², bâtiment d'activités d'une surface de 2 641 m²
- Partie bureaux d'une surface de 225 m²
- Partie atelier/stockage d'une surface de 1 685 m² avec une porte sectionnelle électrique et 5 portes d'accès.
- HSP de 4 à 6,22 m
- Extension réalisée en 2009 d'une surface de 440 m² sur deux niveaux comprenant locaux sociaux et bureaux
- Une zone extérieure de stockage bétonnée ainsi que 39 places de parking
- Terrain : 4 878 m²
- Entrepôt / atelier : 1 685 m²
- Bureaux 1 : 440 m²
- Stockage : 281 m²
- Bureaux 2 : 225 m²
- Bâtiment type structuré métallique, couverture éverite et bac acier, isolation shedisol, construction des années 1970/1980
Accessibilité:
Bus Pompiers (301)
Autoroute Par A64 sortie n° 35 "Muret"
Les informations sur les risques auxquels ce bien est exposé sont disponibles sur le site Géorisques : www.georisques.gouv.fr
Voir plus
Afficher les consommations énergétiques
Localisation et transport aux alentours
Favoris
Exporter
Appeler
Contacter
Signaler cette annonce










