Depuis 2003, KEOPS Toulouse accompagne les entreprises dans leurs projets immobiliers sur toute l’aire urbaine toulousaine.Notre équipe de professionnels passionnés met à votre service sa connaissa ...
En savoir plus

1 822 m²
Activité/Entrepôt à vendre - 1822 m²
Castanet-Tolosan (31320)
Dernière mise à jour : Il y a 2 jours
Bâtiment d'activités clé en main, au sud-est de Toulouse, dans une zone dynamique et labélisée HQE
Régime Fiscal : T.V.A.
Dépôt de garantie : 3 mois de loyer HT HC
Honoraires : 5 % HT du prix de vente HT
Prestations :
Accessibilité:
Accès : par périphérique sortie n° 19 "Le Palays"
Les informations sur les risques auxquels ce bien est exposé sont disponibles sur le site Géorisques : www.georisques.gouv.fr
| Étage | Type | Surfaces | Dispo | Prix(m²) | Charges | Honoraires | Fiscal |
|---|---|---|---|---|---|---|---|
| Activités | 1822 | 12 à 18 mois après signature | n.c. | n.c. | 5 % HT du prix de vente HT | T.V.A. |
Régime Fiscal : T.V.A.
Dépôt de garantie : 3 mois de loyer HT HC
Honoraires : 5 % HT du prix de vente HT
Prestations :
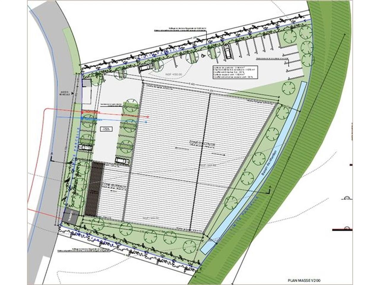
- Sur un terrain de 3 904 m², bâtiment à construire d'une surface de 1 822 m²
- Bureaux sur deux niveaux d'une surface de 350 m² avec terrasse Cloisonnement selon vos besoins Climatisation réversible, câblage informatique... Dépôt d'une surface de 1 471 m² Bâtiment type structure métallique Bardage double peau/panneau sandwich Zone d'activité HQE, arborée avec accès au canal
- PC obtenu et purgé, construction sous 12 à 18 mois
- Terrain : 3 904 m² Bureaux : 350 m² Dépôt : 1 471 m²
Accessibilité:
Accès : par périphérique sortie n° 19 "Le Palays"
Les informations sur les risques auxquels ce bien est exposé sont disponibles sur le site Géorisques : www.georisques.gouv.fr
Voir plus
Afficher les consommations énergétiques
Localisation et transport aux alentours
Favoris
Exporter
Appeler
Contacter
Signaler cette annonce










