BNP Paribas Real Estate, N°1 de la transaction en immobilier d''entreprise en France, vous propose un accompagnement de qualité pour l''acquisition, la vente ou la location d''un bien immobilier.Vo ...
En savoir plus

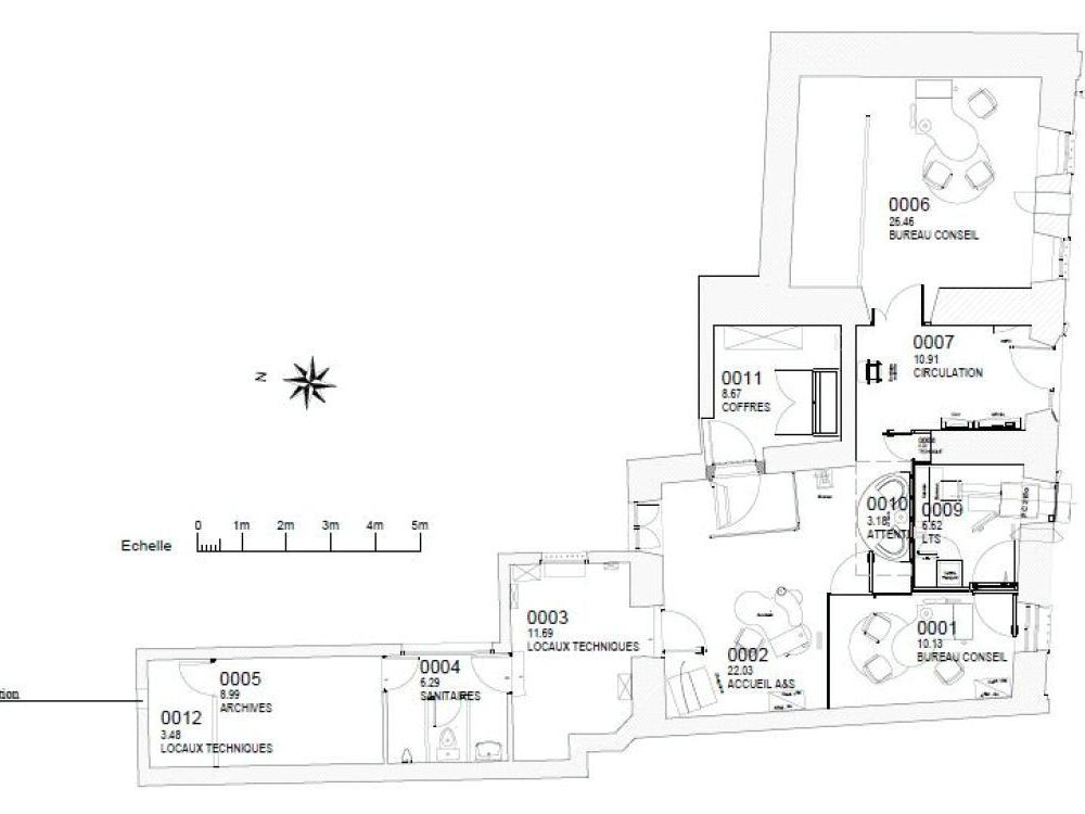
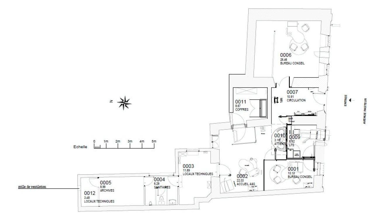
119 m²
Local commercial à vendre - 119 m²
Quillan (11500)
Dernière mise à jour : Il y a 2 jours
A VENDRE MURS COMMERCIAUX A VENDRE MURS COMMERCIAUX 120 m² environ ex-agence bancaire BNP locaux lumineux
Disponibilité: Nous consulter
Honoraires: Nous consulter. à la signature de l'acte
Honoraires: Nous consulter. à la signature de l'acte
Afficher les consommations énergétiques
Favoris
Exporter
Appeler
Contacter
Signaler cette annonce
