Nous sommes Immprove, une grande équipe de plus de 200 experts en immobilier d’entreprise, implantés localement avec plus de 20 agences sur tout le territoire.Depuis 2009, notre proximité, notre ét ...
En savoir plus

161 m²
Activité/Entrepôt à vendre - 161 m²
Les Essarts-le-Roi (78690)
Dernière mise à jour : Il y a 4 jours
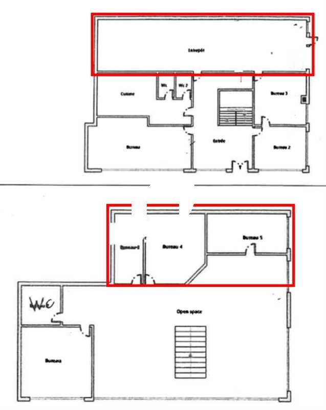
Située aux Essarts-le-Roi à proximité immédiate de nationale N10, Immprove vous propose à la vente une surface mixte composée d'environ 100 m² d'activités, accompagnée de bureaux rénovés en R+1 de 62 m². Au sein d'une zone artisanale, vous bénéficierez d'une surface d'activité avec porte sectionnelle de plain-pied et une porte piétonne, d'une surface de bureaux modulable et de TROIS places de stationnement en extérieur. Pour de plus amples informations ou demande de visites, n'hésitez pas à nous contacter.
Impôt Foncier : 12,72 €//m²/an HT
Régime Fiscal : Droits d'enregistrement
Honoraires : 5% HT du prix de vente HD à la charge de l'acquéreur
Prestations :
Accessibilité:
Route Nationale N10
Bus Ligne 12
Les informations sur les risques auxquels ce bien est exposé sont disponibles sur le site Géorisques : www.georisques.gouv.fr
| Étage | Type | Surfaces | Dispo | Prix(m²) | Charges | Honoraires | Fiscal |
|---|---|---|---|---|---|---|---|
| 1 | Bureaux | 62,83 | n.c. | n.c. | 5% HT du prix de vente HD à la charge de l'acquéreur | Droits d'enregistrement | |
| RDC | Activités | 98,24 | n.c. | n.c. | 5% HT du prix de vente HD à la charge de l'acquéreur | Droits d'enregistrement | |
| Total Cellule Lot 2 | Activités | 161,07 | 15 avril 2025 | 1458,99 m² HD HH | 8,85 m²/an HT | 5% HT du prix de vente HD à la charge de l'acquéreur | Droits d'enregistrement |
Impôt Foncier : 12,72 €//m²/an HT
Régime Fiscal : Droits d'enregistrement
Honoraires : 5% HT du prix de vente HD à la charge de l'acquéreur
Prestations :
- Immeuble ancien
- Accès véhicules légers
- Interphone
- Surface d'activités :
- Porte sectionnelle de plain-pied : 2,7 (H) x 2,9 (L)
- Porte piétonne
- Hauteur libre : 3 à 6 mètres
- Chauffage par aérotherme électrique
- Surface bureaux :
- Locaux à aménager
- 3 places de parking en extérieur : lots de copropriété numéros 19, 20 et 21
- Surface RDC : 98,24 m²
Accessibilité:
Route Nationale N10
Bus Ligne 12
Les informations sur les risques auxquels ce bien est exposé sont disponibles sur le site Géorisques : www.georisques.gouv.fr
Voir plus
Afficher les consommations énergétiques
Favoris
Exporter
Appeler
Contacter
Signaler cette annonce
