MCarré Conseil est une agence spécialiste de l'immobilier d’entreprise du sud de l’Île-de-France (en Essonne et dans le sud de la Seine-et-Marne et du Val-De-Marne). Elle vous accompagne à chaque é ...
En savoir plus

1 625 m²
Activité/Entrepôt à vendre - 1625 m²
Cheptainville (91630)
Dernière mise à jour : Hier
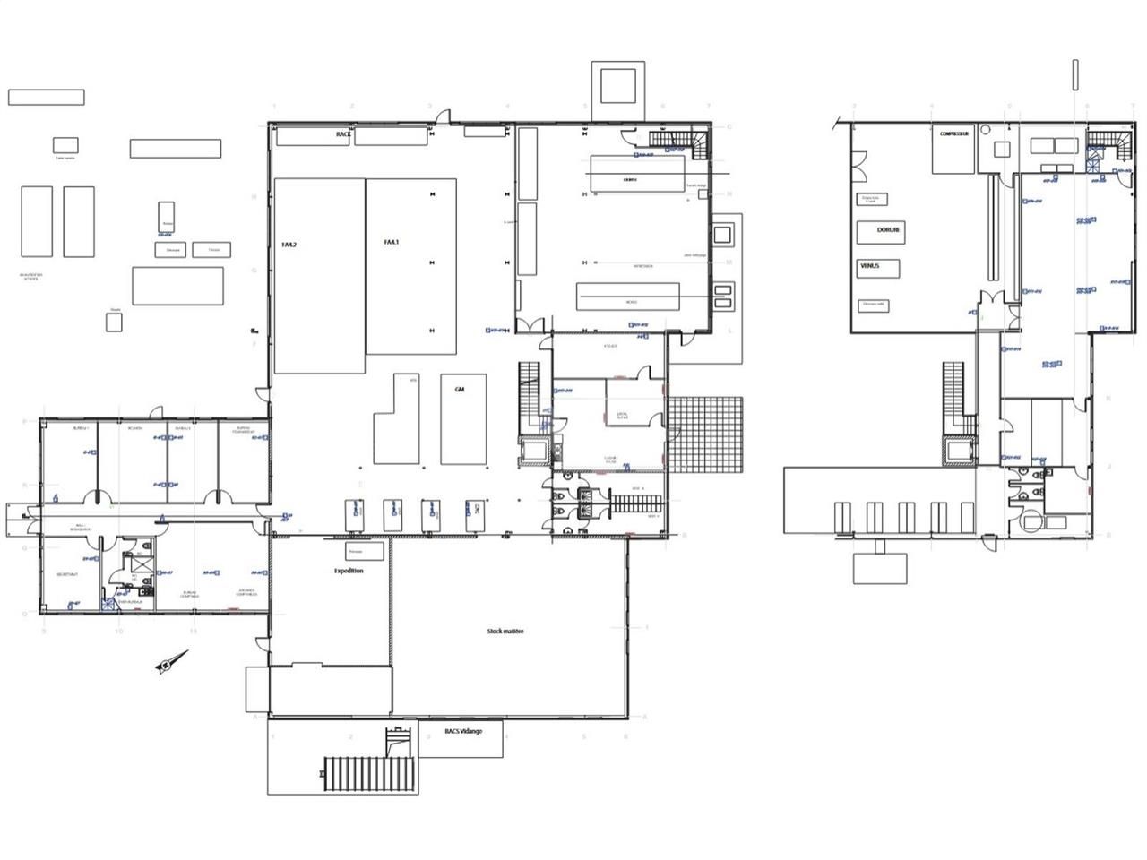
Sur un foncier d'environ 5 790 m², M'Carré Conseil vous propose l'acquisition d'un bâtiment indépendant de 1 625 m² à usage d'activité/stockage et bureaux d'accompagnement
Impôt Foncier : 15663 €//an
Régime Fiscal : Droits de mutation
Honoraires : 5% HT du prix de vente à la charge de l'Acquéreur
Prestations :
Accessibilité:
Route Nationale 20
Route Liaison Nationale 104 Francilienne
Route Départementale 19
RER Marolles-en-Hurepoix (C)
Bus Charbonneau (4553)
Les informations sur les risques auxquels ce bien est exposé sont disponibles sur le site Géorisques : www.georisques.gouv.fr
| Étage | Type | Surfaces | Dispo | Prix(m²) | Charges | Honoraires | Fiscal |
|---|---|---|---|---|---|---|---|
| MEZ | Activités | 355 | n.c. | n.c. | 5% HT du prix de vente à la charge de l'Acquéreur | Droits de mutation | |
| Rdc | Activités | 1071 | n.c. | n.c. | 5% HT du prix de vente à la charge de l'Acquéreur | Droits de mutation | |
| Rdc | Bureaux | 199 | n.c. | n.c. | 5% HT du prix de vente à la charge de l'Acquéreur | Droits de mutation | |
| Total Cellule | Activités | 1625 | 3 mois après accord | 1156,92 m² HD/HH | n.c. | 5% HT du prix de vente à la charge de l'Acquéreur | Droits de mutation |
Impôt Foncier : 15663 €//an
Régime Fiscal : Droits de mutation
Honoraires : 5% HT du prix de vente à la charge de l'Acquéreur
Prestations :
- Site clos et sécurisé
- 32 places de parking
- 1 500 m² de terrain exploitable
- Bureaux cloisonnés
- Climatisation réversible
- Fibre optique
- Courant fort / faible
- Sol PVC
- Faux plafond
- Cuisine / kitchenette
- Sanitaires H/F PMR
- Vestiaires, douches
- Ascenseur
- Sas de déchargement
- Mezzanine de stockage (3m sous mezza)
- Barrière écluse
- RIA
- Immeuble indépendant
- Surface RDC : 1270 m²
- Surface terrain : 5787
- Haut. libre min. ss poutre : 4 m
- Haut. libre max. ss poutre : 6,5 m
- Nbr de portes plain pied : 1
- Ossature : Métallique
- Murs périmétriques : Double bardage
- Couverture : Bac acier
Accessibilité:
Route Nationale 20
Route Liaison Nationale 104 Francilienne
Route Départementale 19
RER Marolles-en-Hurepoix (C)
Bus Charbonneau (4553)
Les informations sur les risques auxquels ce bien est exposé sont disponibles sur le site Géorisques : www.georisques.gouv.fr
Voir plus
Afficher les consommations énergétiques
Localisation et transport aux alentours
Favoris
Exporter
Appeler
Contacter
Signaler cette annonce





