SERGIC Immobilier Tertiaire et Commercial Paris est une agence spécialiste de l'immobilier à destination des entreprises faisant partie du groupe Sergic présent dans la moitié nord de la France : N ...
En savoir plus

50 m²
Local commercial à vendre - 50 m²
Paris 6 (75006)
Dernière mise à jour : Il y a 3 jours
À VENDRE - LOCAL COMMERCIAL LOUÉ - PARIS 6e
À VENDRE - LOCAL COMMERCIAL LOUÉ - PARIS 6e
Situé au coeur du 6e arrondissement de Paris, dans un environnement particulièrement recherché et dynamique, ce local commercial bénéficie d'un emplacement de qualité, au sein d'un quartier à fort pouvoir d'achat, mêlant commerces de proximité, enseignes établies et flux piéton régulier.
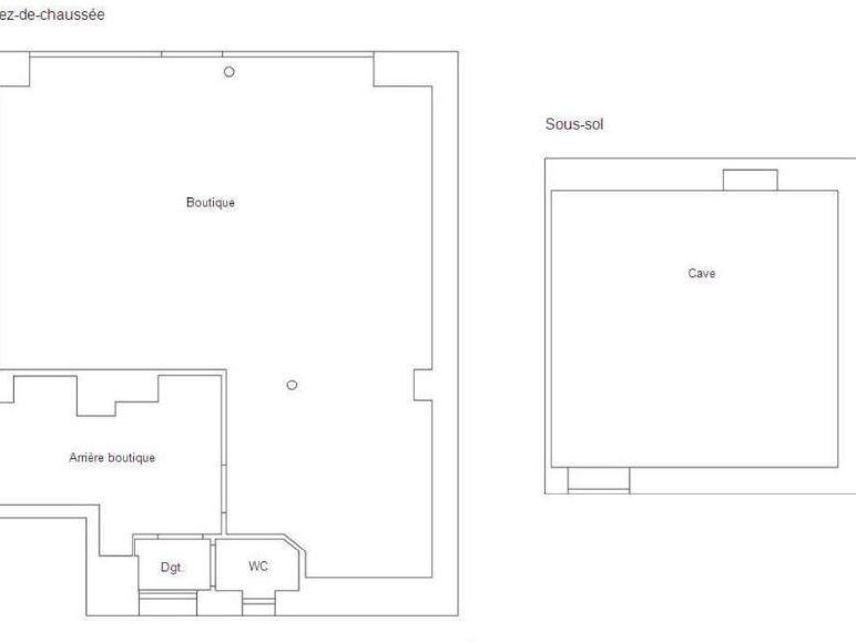
D'une surface de 50,8 m², ce bien est occupé par un serrurier en place depuis plus de 20 ans, gage de stabilité locative et de pérennité de l'exploitation.
Données clés :
Surface : 50,8 m²
Activité : serrurerie
Ancienneté locataire : +20 ans
Loyer annuel : 33 412 EUR HT HC
Cave : 19 m²
Prix : 590 000 EUR net vendeur
Rendement brut : 5,66 %
Un actif patrimonial sécurisé, bénéficiant d'un emplacement premium et d'un locataire fiable, idéal pour un investisseur recherchant un revenu immédiat et stable.
Dossier complet sur demande.
Tableau de Surfaces :
À VENDRE - LOCAL COMMERCIAL LOUÉ - PARIS 6e
Situé au coeur du 6e arrondissement de Paris, dans un environnement particulièrement recherché et dynamique, ce local commercial bénéficie d'un emplacement de qualité, au sein d'un quartier à fort pouvoir d'achat, mêlant commerces de proximité, enseignes établies et flux piéton régulier.
D'une surface de 50,8 m², ce bien est occupé par un serrurier en place depuis plus de 20 ans, gage de stabilité locative et de pérennité de l'exploitation.
Données clés :
Surface : 50,8 m²
Activité : serrurerie
Ancienneté locataire : +20 ans
Loyer annuel : 33 412 EUR HT HC
Cave : 19 m²
Prix : 590 000 EUR net vendeur
Rendement brut : 5,66 %
Un actif patrimonial sécurisé, bénéficiant d'un emplacement premium et d'un locataire fiable, idéal pour un investisseur recherchant un revenu immédiat et stable.
Dossier complet sur demande.
Tableau de Surfaces :
| Etage | Type de bien | Surface | Dispo | |
| RDC | Local commercial | 51 m² | Nous consulter |
Voir plus
Afficher les consommations énergétiques
Localisation et transport aux alentours
Favoris
Exporter
Appeler
Contacter
Signaler cette annonce


