Nous sommes Immprove, une grande équipe de plus de 200 experts en immobilier d’entreprise, implantés localement avec plus de 20 agences sur tout le territoire.Depuis 2009, notre proximité, notre ét ...
En savoir plus

105 m²
Local commercial à vendre - 105 m²
Paris 5 (75005)
Dernière mise à jour : Il y a 7 jours
Proximité jardin du Luxembourg
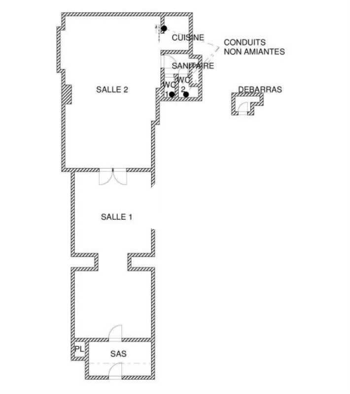
A proximité du Jardin du Luxembourg, Immprove vous propose à la vente une surface de 95m2 en rez-de-chaussée sur rue. Situé dans le 5ème arrondissement, ce local présente un bel espace d'accueil d'environ 35m2 et une salle principale de 55m2, auxquelles s'ajoute cuisine et sanitaire. Commerce et bureaux, à visiter sans tarder.
Impôt Foncier : 12,63 €/m²/an HT
Régime Fiscal : Droits d'enregistrement
Honoraires : 5% HT du prix de vente NV à la charge de l'acquéreur
Prestations :
Accessibilité:
Metro Raspail (4,6)
Metro Censier - Daubenton (7)
RER Port Royal (B)
Bus Port Royal - Saint-Jacques (83,91)
Bus Feuillantines (21,27)
Bus Val de Grâce (38)
Bus Auguste Comte (82)
Route Observatoire - Port-Royal (N01,N02,N122)
Route Val de Grâce (N14,N21)
Les informations sur les risques auxquels ce bien est exposé sont disponibles sur le site Géorisques : www.georisques.gouv.fr
A proximité du Jardin du Luxembourg, Immprove vous propose à la vente une surface de 95m2 en rez-de-chaussée sur rue. Situé dans le 5ème arrondissement, ce local présente un bel espace d'accueil d'environ 35m2 et une salle principale de 55m2, auxquelles s'ajoute cuisine et sanitaire. Commerce et bureaux, à visiter sans tarder.
| Étage | Type | Surfaces | Dispo | Prix(m²) | Charges | Honoraires | Fiscal |
|---|---|---|---|---|---|---|---|
| RDC | Locaux Commerciaux | 91 | Immédiate | n.c. | 23,68 m²/an HT | 5% HT du prix de vente NV à la charge de l'acquéreur | Droits d'enregistrement |
| SS | Locaux Commerciaux | 14 | Immédiate | n.c. | 23,68 m²/an HT | 5% HT du prix de vente NV à la charge de l'acquéreur | Droits d'enregistrement |
Impôt Foncier : 12,63 €/m²/an HT
Régime Fiscal : Droits d'enregistrement
Honoraires : 5% HT du prix de vente NV à la charge de l'acquéreur
Prestations :
- Immeuble ancien
- Façade en pierres de taille
- Accès PMR
- Accès privatif sur rue
- Climatisation
- Bon état
- Accueil
- Espace ouvert
- Cuisine
- Sanitaires privatifs
- Parquet
- Pré-câblage informatique et téléphonique
- Prises RJ45
- Climatisation
- Chauffage électrique
- Surface RDC : 91 m²
Accessibilité:
Metro Raspail (4,6)
Metro Censier - Daubenton (7)
RER Port Royal (B)
Bus Port Royal - Saint-Jacques (83,91)
Bus Feuillantines (21,27)
Bus Val de Grâce (38)
Bus Auguste Comte (82)
Route Observatoire - Port-Royal (N01,N02,N122)
Route Val de Grâce (N14,N21)
Les informations sur les risques auxquels ce bien est exposé sont disponibles sur le site Géorisques : www.georisques.gouv.fr
Voir plus
Afficher les consommations énergétiques
Favoris
Exporter
Appeler
Contacter
Signaler cette annonce

